Extension UnderBehandling Enebolig

Tilbygg, påbygg og trapp med ark på enebolig i Krikkenveien 14

📍 Krikkenveien 14 , 3780 SKÅTØY

Nøkkelinfo

Sakstype
Tilbygg
Bygningstype
Enebolig
Bruksareal
14 m²
Boenheter
1
Kommune
Kragerø
Fylke
Telemark
Gnr / Bnr
30 / 7
Saksnummer
2025/4408
Fase
Under behandling

Om byggesaken

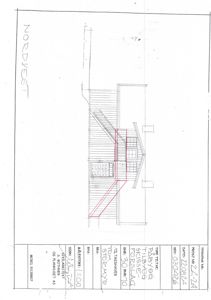
Ny tilbygg og påbygg på eksisterende enebolig i Krikkenveien 14 med samlet areal på ca. 13,5 m². Prosjektet inkluderer en ark over trappeløp for å øke takhøyden i 2. etasje, samt en ny trapp og en liten repos som fungerer som rømningsvei fra loftet. Tidligere terrasse er fjernet fra prosjektet. Bygget er i tre med saltak tekket med teglstein. Tilbygget og påbygget plasseres på baksiden av huset, på søyler over plen, og er tilpasset eksisterende bygningskropp. Tiltaket har betydning for å forbedre boforhold og sikkerhet, spesielt ved å etablere en trygg rømningsvei fra loftet. Prosjektet krever dispensasjon fra LNF-formål og byggeforbud i 100-metersbeltet mot sjø, men kommunen vurderer at fordelene ved tiltaket er klart større enn ulempene i dette konkrete tilfellet.

Produkter og materialer

Terrasse Repos/plattform

🧱 Tre

Antall: 1

Repos som fungerer som utgang fra 2. etasje til trapp, erstatter tidligere terrasse som er fjernet

Liten plattform som del av rømningsvei og utgang fra 2. etasje

Fasade Tre kledning

🧱 Tre

Tilbygg og påbygg kledd med tre, tilpasset eksisterende fasade

Kledning for tilbygg og påbygg i tre for å matche eksisterende bygg

Fasade Ark over trappeløp

🧱 Tre

Antall: 1

Ark som gir økt takhøyde i 2. etasje over trappeløp, mønehøyde 5,5 meter fra underkant gulv 1. etasje

Påbygg ark for å øke takhøyden og forbedre innvendig takhøyde i loftsrommet

Grunnarbeid Fundamentering på søyler

Fundamentering for påbygg og repos på søyler over plen

Grunnarbeid for å etablere søyler som bærer påbygg og repos

VVS Ingen løfteinnretninger

Antall: 0

Ingen planlagte løfteinnretninger i tiltaket

Ingen heis eller løfteinnretninger planlagt

Trapper Utvendig trapp med 38 graders fall

🧱 Tre

Antall: 1

Trapp med 38 graders fall, anbefalt maksimal bratthet, tilpasset som rømningsvei fra 2. etasje

Ny utvendig trapp som gir trygg og funksjonell adkomst og rømningsvei til 2. etasje

Tak Saltak med teglstein

🧱 Teglstein

Saltak tekket med teglstein, mønehøyde ca. 5,5 meter

Taktekking for påbygg og ark i samsvar med eksisterende tak

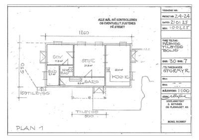
Plantegning

Enebolig 146.4 m²

Etasje 1 72.4 m²

Rom Areal Vinduer Dører
Stue 101 21.8 m² 3 2
Kjøkken 102 22.4 m² 1 1
Sov 103 11.8 m² 1 1
Bad 104 5.7 m² 0 1
Gang 105 8.5 m² 0 2
Teknisk rom 106 3.2 m² 0 1

Etasje 2 74.0 m²

Rom Areal Vinduer Dører
Sov SOV 6.8 m² 1 1
Sov SOV 10.5 m² 1 1
Sov SOV 22.8 m² 1 1
Loft LOFT 34.4 m² 0 0
Sov 201 0.0 m² 0 1
Loft 202 0.0 m² 0 0
Sov 203 0.0 m² 0 1
Sov 204 0.0 m² 0 1

Fasader

Enebolig

Nordvest
Materiale
Tre
Taktype
Saltak
Takmat.
Tegl
Vinduer
3
Dører
1
Balkonger
1
Synlige etasjer
2
Nordøst
Materiale
Tre
Taktype
Saltak
Vinduer
3
Dører
1
Balkonger
1
Synlige etasjer
2
Sørvest
Materiale
Tre
Taktype
Saltak
Vinduer
4
Dører
1
Balkonger
1
Synlige etasjer
2

Påbygg Tilbygg Bolig

Nordvest
Materiale
Tre
Taktype
Saltak
Vinduer
3
Dører
1
Balkonger
1
Synlige etasjer
2

Hendelser

21.04.2026 Ekstern høring - Gbnr. 30/7 - Krikkenveien 14 - Søknad om trapp, terrasse og ark. Dispensasjon
15.04.2026 Supplerende tegning - Gbnr. 30/7 - Krikkenveien 14 - Søknad om trapp, terrasse og ark. Dispensasjon
14.04.2026 Reviderte tegninger - Gbnr. 30/7 - Krikkenveien 14 - Søknad om trapp, terrasse og ark
14.04.2026 Gbnr 30/7 - Krikkenveien 14. Tegninger med farge - Trapp, terrasse og ark.
13.04.2026 Gbnr 30/7 - Krikkenveien 14 - Reviderte tegninger
07.04.2026 Reviderte tegninger - Gbnr. 30/7 - Krikkenveien 14 - Søknad om trapp, terrasse og ark. Dispensasjon
23.03.2026 Krikkenveien 14 - Søknad om trapp, terrasse og ark. Dispensasjon - Spørsmål
17.03.2026 Anmodning om møte - Gbnr. 30/7 - Krikkenveien 14 - Søknad om trapp, terrasse og ark. Dispensasjon
16.03.2026 Svar - 30/7 Krikkenveien 14 - Søknad om trapp, terrasse og ark. Dispensasjon - Spørsmål
19.11.2025 VS: 30/7 Krikkenveien 14 - Søknad om trapp, terrasse og ark. Dispensasjon - Spørsmål
11.11.2025 Bekreftelse på mottatt søknad - Gbnr. 30/7 - Krikkenveien 14 - Søknad om trapp, terrasse og ark. Dispensasjon
11.11.2025 Søknad om rammetillatelse - Gbnr. 30/7 - Krikkenveien 14 - Søknad om trapp, terrasse og ark. Dispensasjon