Extension Igangsettingstillatelse Enebolig

Tilbygg og fasadeendring på enebolig med ny garasje i Krokfossvegen 80

📍 Krokfossvegen 80 , 2067 JESSHEIM

Nøkkelinfo

Sakstype
Tilbygg
Bygningstype
Enebolig
Bruksareal
189 m²
Boenheter
1
Kommune
Ullensaker
Fylke
Akershus
Gnr / Bnr
144 / 14
Saksnummer
2024/8317
Fase
Igangsettingstillatelse

Om byggesaken

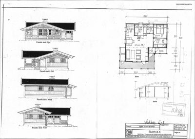
Prosjektet omfatter bruksendring fra tilleggsdel til hoveddel, fasadeendringer, oppføring av et tilbygg på 28,6 m² til eksisterende enebolig samt oppføring av en frittstående garasje på 54 m². Eneboligen har et samlet bruksareal på 188,7 m² og består av kjøkken/stue, gang, tre soverom, walk-in, to bad og to terrasser. Tilbygget plasseres på nordsiden av boligen med saltak, og garasjen oppføres med saltak og mønehøyde på 3,765 meter. Fasaden er i tre med liggende og stående kledning som beholdes og suppleres. Det er foretatt geoteknisk vurdering som dokumenterer tilfredsstillende områdestabilitet. Ny garasje skal ikke tilkobles vann og avløp. Det er innhentet nødvendige nabosamtykker og dispensasjoner fra veglovens byggegrenser. Eiendommene er sammenslått til ett gårds- og bruksnummer. Prosjektet er under gjennomføring med igangsettingstillatelse gitt for boligtiltaket, og det søkes midlertidig brukstillatelse for deler av tiltaket.

Produkter og materialer

Terrasse Treterrasse

🧱 Tre

Antall: 2

Terrasser på 16,5 m² og 27,9 m² tilknyttet bolig

To treterrasser tilknyttet eneboligen

VVS Sanitærinstallasjoner

Våtrom i tilbygg, sanitærinstallasjoner utført av Mester Bedriften Bratfos

Sanitærinstallasjoner i våtrom i tilbygg

Fasade Tre kledning

🧱 Tre, liggende og stående kledning

Kledning byttes der det er behov, erstattes med lignende kledning med samme uttrykk

Fasadeendring med ny og eksisterende kledning i tre, opprettholder oppdeling med liggende og stående kledning

Vinduer Fasadevindu

🧱 Tre/aluminium

Antall: 7

Nye vinduer i fasade, oppgradert med tanke på energi, størrelser i henhold til dagslyskrav

Nye vinduer til erstatning og tilbygg, inkludert vinduer på soverom

Betong Fundamenter og støttemurer

🧱 Betong

Fundamentering for tilbygg og garasje iht. geoteknisk vurdering

Betongfundamenter for tilbygg og garasje, tilpasset grunnforhold

Tømrer Bærekonstruksjoner og trekonstruksjoner

🧱 Tre

Endringer i bærekonstruksjoner, inkludert overdekning over nye vinduer, utført iht. preaksepterte løsninger

Tømrerarbeid for tilbygg, fasadeendringer og garasje, inkludert bærekonstruksjoner

Tak Saltak

🧱 Teglstein

Antall: 2

Saltak på tilbygg og garasje, flatt tak på deler av eksisterende bolig

Nytt saltak på tilbygg og garasje, takmateriale i teglstein

Mur Mur- og flisarbeid

Mur- og flisarbeid utført av ATH Mur & Flis AS

Mur- og flisarbeid i våtrom og andre områder

Elektro Elektriske varmekabler

Elektriske varmekabler i gulv

Varmefordeling med elektriske varmekabler i gulv

Dører Ytterdører og skyvedør

🧱 Tre

Antall: 5

Ytterdør flyttes ut, ny skyvedør i tilbygg, dører til terrasser

Nye ytterdører og skyvedør tilpasset ny planløsning og fasadeendring

Grunnarbeid Opparbeidelse av snuareal og gårdsplass

🧱 Belegningsstein, jord, gress

Ny gårdsplass med snuareal, ny avkjørsel, beplantning og terrassearealer

Opparbeidelse av uteområder med snuareal for biler, gangforbindelse og terrasser

Maling Utvendig maling

Maling av trefasader etter utskifting og reparasjon

Maling av fasade i tre for å opprettholde estetikk og beskyttelse

Plantegning

Enebolig 188.7 m²

Etasje 1 188.7 m²

Rom Areal Vinduer Dører
Kjøkken/Stue 101 35.9 m² 1 1
Gang 102 4.0 m² 0 2
Gang 103 4.6 m² 0 1
Soverom 104 14.0 m² 1 1
Walk-in 105 4.5 m² 0 1
Bad 106 4.2 m² 0 1
Soverom 107 9.3 m² 1 1
Soverom 108 7.3 m² 1 1
Bad 109 4.1 m² 0 1
Terrasse 110 16.5 m² 0 0
Terrasse 111 27.9 m² 0 0

Fasader

Enebolig

Vest
Materiale
Tre
Taktype
Saltak
Høyde
3.7 m
Mønehøyde
5.6 m
Vinduer
1
Dører
1
Synlige etasjer
1
Syd
Materiale
Tre
Taktype
Saltak
Vinduer
3
Dører
1
Balkonger
1
Synlige etasjer
1
Øst
Materiale
Tre
Taktype
Saltak
Vinduer
2
Dører
1
Balkonger
1
Synlige etasjer
1
Nord
Materiale
Tre
Taktype
Pulttak
Vinduer
2
Dører
0
Synlige etasjer
1
Sør/Nord
Materiale
Tre
Taktype
Flatt tak
Takmat.
Teglstein
Vinduer
0
Dører
0
Synlige etasjer
1

Annekset

Vest
Materiale
Tre
Vinduer
0
Dører
0
Synlige etasjer
1

Garasje

Vest
Materiale
Tre
Taktype
Saltak
Høyde
2.2 m
Mønehøyde
3.7 m
Vinduer
0
Dører
0
Synlige etasjer
1

Hendelser

17.04.2026 Søknad om midlertidig brukstillatelse - Gnr 144 bnr 14 og 15 - Krokfossvegen 80 - Bruksendring - Bærekonstruksjoner - Våtrom - Fasadeendringer - Tilbygg - Enebolig - Nybygg garasje
04.03.2026 Trekk av søknad om ferdigattest - Gnr 144 bnr 14 - Krokfossvegen 80 - Bruksendring - Bærekonstruksjoner - Våtrom - Fasadeendringer - Tilbygg enebolig - Nybygg garasje
04.03.2026 Trekk av søknad om ferdigattest - Gnr 144 bnr 14 - Krokfossvegen 80 - Bruksendring - Bærekonstruksjoner - Våtrom - Fasadeendringer - Tilbygg enebolig - Nybygg garasje
04.03.2026 Svar på trekk av søknad om ferdigattest - Gnr 144 bnr 14 - Krokfossvegen 80 - Bruksendring - Bærekonstruksjoner - Våtrom - Fasadeendringer - Tilbygg enebolig - Nybygg garasje
04.03.2026 Det må gis igangsettingstillatelse for hele tiltaket før det kan gis ferdigattest - Gnr 144 bnr 14 - Krokfossvegen 80 - Bruksendring - Bærekonstruksjoner - Våtrom - Fasadeendringer - Tilbygg - Enebolig - Nybygg garasje
04.03.2026 Bekreftelse på trekk av søknad om ferdigattest - Gnr 144 bnr 14 - Krokfossvegen 80 - Bruksendring - Bærekonstruksjoner - Våtrom - Fasadeendringer - Tilbygg enebolig - Nybygg garasje
26.02.2026 Søknad om ferdigattest - Gnr 144 bnr 14 - Krokfossvegen 80 - Bruksendring - Bærekonstruksjoner - Våtrom - Fasadeendringer - Tilbygg - Enebolig - Nybygg garasje
24.06.2025 Redegjørelse endring av bærekonstruksjoner - Gnr 144 bnr 14 og 15 - Krokfossvegen 80 - Bruksendring - Bærekonstruksjoner - Våtrom - Fasadeendringer - Tilbygg - Enebolig - Nybygg garasje
24.06.2025 Igangsettingstillatelse 01 - Gnr 144 bnr 14 - Krokfossvegen 80 - Bruksendring - Bærekonstruksjoner i bygg - Våtrom i bygg - Fasadeendringer - Tilbygg - Enebolig
24.06.2025 Vilkår må være oppfylt før IG - Gnr 144 bnr 14 og 15 - Krokfossvegen 80 - Bruksendring - Bærekonstruksjoner - Våtrom - Fasadeendringer - Tilbygg - Enebolig - Nybygg garasje
24.06.2025 Dialog vedrørende sammenføying - Gnr 144 bnr 14 og 15 - Krokfossvegen 80 - Bruksendring - Bærekonstruksjoner - Våtrom - Fasadeendringer - Tilbygg - Enebolig - Nybygg garasje
10.04.2025 Ber om redegjørelse - Gnr 144 bnr 14 og 15 - Krokfossvegen 80 - Bruksendring - Bærekonstruksjoner - Våtrom - Fasadeendringer - Tilbygg - Enebolig - Nybygg garasje
10.04.2025 Rammetillatelse - Gnr 144 bnr 14 - Krokfossvegen 80 - Bruksendring - Bærekonstruksjoner i bygg - Våtrom i bygg - Fasadeendringer - Tilbygg - Nybygg garasje
26.02.2025 Oppdatert situasjonskart og erklæringer - Gnr 144 bnr 14 og 15 - Krokfossvegen 80 - Bruksendring - Bærekonstruksjoner - Våtrom - Fasadeendringer - Tilbygg - Enebolig - Nybygg - Garasje
26.02.2025 Orienterer om videre saksgang og ber om nærmere beskrivelse - Gnr 144 bnr 14 - Krokfossvegen 80 - Bruksendring - Bærekonstruksjoner i bygg - Våtrom - Fasadeendringer - Tilbygg enebolig - Nybygg garasje
26.02.2025 Redegjørelse for omsøkte fasadeendring - Gnr 144 bnr 14 - Krokfossvegen 80 - Bruksendring - Bærekonstruksjoner i bygg - Våtrom - Fasadeendringer - Tilbygg enebolig - Nybygg garasje
26.02.2025 Ber om vurdering av plassering som følge av oppmålingsforretning - Gnr 144 bnr 14 - Krokfossvegen 80 - Bruksendring - Bærekonstruksjoner i bygg - Våtrom - Fasadeendringer - Tilbygg enebolig - Nybygg garasje
26.02.2025 Svar på spørsmål om oppmålingsforretning - Gnr 144 bnr 14 - Krokfossvegen 80 - Bruksendring - Bærekonstruksjoner i bygg - Våtrom - Fasadeendringer - Tilbygg enebolig - Nybygg garasje
26.02.2025 Søknad om igangsettingstillatelse - Gnr 144 bnr 14 og 15 - Krokfossvegen 80 - Bruksendring - Bærekonstruksjoner - Våtrom - Fasadeendringer - Tilbygg - Enebolig - Nybygg garasje
21.01.2025 Tillatelse til dispensasjon fra veglova - Gnr 144 bnr 14 og 15 - Krokfossvegen 80 - Bruksendring - Bærekonstruksjoner - Våtrom - Fasadeendringer - Tilbygg - Enebolig - Nybygg garasje
12.11.2024 Nybygg garasje skal ikke tilkobles VA - Gnr 144 bnr 14 - Krokfossvegen 80 - Bruksendring - Bærekonstruksjoner i bygg - Våtrom - Fasadeendringer - Tilbygg - Nybygg garasje
08.11.2024 Fortsatt mangler ved søknaden - Gnr 144 bnr 14 - Krokfossvegen 80 - Bruksendring - Bærekonstruksjoner i bygg - Våtrom i bygg - Fasadeendringer - Tilbygg - Nybygg garasje
08.11.2024 Supplering av søknad - Gnr 144 bnr 14 - Krokfossvegen 80 - Bruksendring - Bærekonstruksjoner i bygg - Våtrom - Fasadeendringer - Tilbygg - Nybygg garasje
08.11.2024 Til orientering - Gnr 144 bnr 14 og 15 - Krokfossvegen 80 - Bruksendring - Bærekonstruksjoner - Våtrom - Fasadeendringer - Tilbygg til enebolig - Nybygg garasje
31.10.2024 Redegjørelse til byggesøknad - Gnr 144 bnr 14 og 15 - Krokfossvegen 80 - Bruksendring - Bærekonstruksjoner - Våtrom - Fasadeendringer - Tilbygg - Enebolig - Nybygg garasje
30.10.2024 Kommunen oversender dispensasjonssøknad til fylkeskommunen - Gnr 144 bnr 14 - Krokfossvegen 80 - Bruksendring - Bærekonstruksjoner i bygg - Våtrom - Fasadeendringer - Tilbygg - Nybygg garasje
30.10.2024 Dispensasjon fra byggegrense etter veglovens § 29 - gnr 144 bnr 14 og 15
30.10.2024 Oversender søknad om dispensasjon fra veglova - Gnr 144 bnr 14 - Krokfossvegen 80 - Bruksendring - Bærekonstruksjoner i bygg - Våtrom i bygg - Fasadeendringer - Tilbygg - Nybygg garasje
30.10.2024 Tilbakemelding om mangler - Gnr 144 bnr 14 - Krokfossvegen 80 - Bruksendring - Bærekonstruksjoner i bygg - Våtrom i bygg - Fasadeendringer - Tilbygg - Nybygg garasje
17.10.2024 Søknad om rammetillatelse - gnr 144 bnr 14 - Krokfossvegen 80 - Bruksendring, fasadeendring og oppføring av tilbygg - enebolig