Extension UnderBehandling Enebolig

Tilbygg og fasadeendring på enebolig i Kurefjordveien 80

📍 Kurefjordveien 78 , 1580 RYGGE

Nøkkelinfo

Sakstype
Tilbygg
Bygningstype
Enebolig
Bruksareal
272 m²
Boenheter
1
Kommune
Moss
Fylke
Østfold
Gnr / Bnr
146 / 1
Saksnummer
2026/1405
Fase
Under behandling

Om byggesaken

Prosjektet omfatter oppføring av to takarker på loftet i 2. etasje på en enebolig fra 1800-tallet i Kurefjordveien 80, med tilhørende fasadeendringer som utskifting og forstørrelse av vinduer i gavlvegger, samt etablering av en åpen veranda over inngangspartiet. Det planlegges også en terrassedør i 1. etasje og opprettelse av våtrom i 2. etasje. Bygningen har saltak med teglstein og trekledning, og inngår i et kulturmiljø med SEFRAK-registrering og ligger innenfor Værne Kloster landskapsvernområde. Totalt areal for eneboligen er 272,4 m² fordelt på to etasjer. Tiltaket innebærer endringer i gesimshøyde og fasadeuttrykk, og det er lagt vekt på estetisk tilpasning og hensyn til kulturminner.

Produkter og materialer

Bad Våtrom i 2. etasje

🧱 Membran og fliser

Antall: 1

Etablering av våtrom i 2. etasje, membranarbeid skal kvalitetssikres før igangsetting

Nytt bad i 2. etasje for økt boligkomfort

Rekkverk Rekkverk på veranda

🧱 Tre eller metall

Antall: 1

Rekkverk på åpen veranda under takark i 2. etasje

Sikring av veranda med rekkverk

Vinduer Empirestil vinduer i gavlvegger

🧱 Tre med to rammer og to ruter i hver ramme

Antall: 4

Nye vinduer i 2. etasje gavlvegger, lavere enn eksisterende empirevinduer, med to ruter i hver ramme, tilpasset opprinnelig stil

Utskifting og forstørrelse av vinduer i gavlvegger for bedre lysinnslipp og rømningsvei

VVS Rørleggerarbeid for våtrom

Rørlegger ikke valgt ennå, men nødvendig for etablering av bad i 2. etasje

VVS-installasjoner for nytt bad

Dører Terrassedør i 1. etasje

🧱 Tre eller tilsvarende

Antall: 1

Terrassedør i 1. etasje som del av fasadeendring

Ny terrassedør for utgang til uteområde

Fasade Trekledning

🧱 Tre

Eksisterende trekledning opprettholdes og videreføres med respekt for husets stil

Fasadeendring med tilpasning til eksisterende trehusstil

Grunnarbeid Ingen nye grunnarbeider

Ingen konflikt med vann- eller avløpsledninger, ingen fare for flom eller skred

Ingen nye grunnarbeider nødvendig

Tak Takark med halvvalmet tak

🧱 Teglstein

Antall: 2

To takarker på loftet med halvvalmet tak som strekker seg opp til mønet, ca. 1/4 til 1/3 av takflatens lengde

Oppføring av to takarker på eksisterende saltak for å øke bruksarealet i 2. etasje

Elektro Oppgradering og tilpasning elektro

Oppgradering av elektrisk anlegg i forbindelse med påbygg og våtrom

Elektrisk installasjon tilpasses nye rom og funksjoner

Maling Utvendig og innvendig maling

🧱 Maling til treverk og innvendige overflater

Maling av fasade og innvendige flater for estetisk tilpasning

Overflatebehandling av treverk og innvendige flater

Trapper Innvendig trapp

🧱 Tre eller tilsvarende

Antall: 1

Eksisterende trapp opprettholdes, ingen nye trapper planlagt

Innvendig trapp mellom etasjer

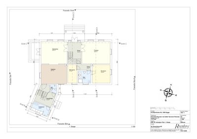
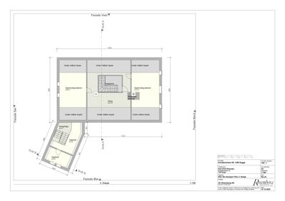
Plantegning

Enebolig 272.4 m²

Etasje 1 165.8 m²

Rom Areal Vinduer Dører
Spisestue 101 26.3 m² 3 1
Kjøkken 102 22.7 m² 1 1
Entre 103 13.3 m² 0 2
Finstue 104 28.5 m² 3 1
Gang 105 3.5 m² 0 2
Soverom 106 14.9 m² 1 1
Barnerom 107 7.7 m² 0 1
Bad 108 7.0 m² 0 1
Gang/trapp 109 13.5 m² 0 1
WC 110 2.4 m² 0 1
Vaskerom 111 7.6 m² 0 1

Etasje 2 106.6 m²

Rom Areal Vinduer Dører
Opphold 201 8.4 m² 0 1
Opphold 202 6.6 m² 0 1
Gang/trapp 203 6.4 m² 0 0
Trapperom 204 0.0 m² 0 0
Gang 205 23.5 m² 0 2
Opprinnelig pikerom 206 20.5 m² 2 1
Opprinnelig pikerom 207 21.2 m² 2 1

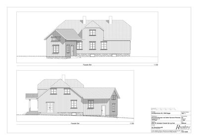
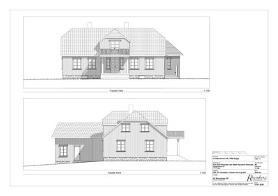
Fasader

Enebolig

Øst
Materiale
Tre
Taktype
Saltak
Takmat.
Tegl
Vinduer
5
Dører
1
Synlige etasjer
2
Sør
Materiale
Tre
Taktype
Saltak
Takmat.
Tegl
Vinduer
4
Dører
2
Balkonger
1
Synlige etasjer
2
Vest
Materiale
Tre
Taktype
Saltak
Takmat.
Tegl
Vinduer
5
Dører
2
Balkonger
1
Synlige etasjer
2
Nord
Materiale
Tre
Taktype
Saltak
Takmat.
Tegl
Vinduer
4
Dører
1
Balkonger
1
Synlige etasjer
2

Hendelser

14.04.2026 Kurefjordveien 80 - 146/1 - intern oversendelse for uttalelse - tilbygg og fasadeendring
08.04.2026 Kurefjordveien 80 - 146/1 - uttalelse til dispensasjonssøknad - tilbygg og fasadeendring
11.03.2026 Kurefjordveien 80 - 146/1 - foreløpig svar - tilbygg og fasadeendring
11.03.2026 Kurefjordveien 80 - 146/1 - oversending av søknad for uttalelse - tilbygg og fasadeendring
16.02.2026 Kurefjordveien 80 - 146/1 - ett-trinnssøknad om tilbygg og fasadeendring