Extension UnderBehandling Enebolig

Tilbygg og fasadeendring på enebolig i Kyrpingsvegen 173

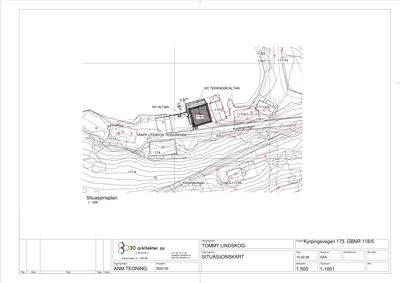
📍 Kyrpingsvegen 173 , 5590 ETNE

Nøkkelinfo

Sakstype
Tilbygg
Bygningstype
Enebolig
Bruksareal
41 m²
Boenheter
1
Kommune
Etne
Fylke
Vestland
Gnr / Bnr
118 / 5
Saksnummer
2026/938
Fase
Under behandling

Om byggesaken

Ny terrasse/altan på ca. 41 m² oppføres i to plan som erstatning for en eksisterende altan på ca. 10 m², med en netto økning i bebygd areal på ca. 31 m². Terrassene etableres mot nord og vest, delvis utenfor eksisterende byggegrense og i LNFR-område, med nødvendig dispensasjon. Fasadeendring inkluderer utskifting og etablering av nye vinduer med sprosser for et helhetlig uttrykk, samt en ny terrassedør og en ny utvendig trapp parallelt med eksisterende trapp. Bygget er en to-etasjes trebygget enebolig med saltak og pipe, opprinnelig oppført før 1850, og tiltaket vurderes å ivareta kulturmiljøet og forbedre bokvaliteten og bruken av utearealene.

Produkter og materialer

Dører Terrassedør

🧱 Tre/glass

Antall: 1

Ny terrassedør mot nord i 1. etasje

Etablering av ny terrassedør i forbindelse med terrasse/altan

Fasade Tre kledning

🧱 Tre

Fasade i tre med saltak, opprettholdes og tilpasses ved fasadeendring

Vedlikehold og tilpasning av trefasade i forbindelse med fasadeendring

Grunnarbeid Fundamentering for terrasse

Fundamentering og grunnarbeid for ny terrasse/altan

Grunnarbeid for oppføring av terrasse/altan

Trapper Utvendig trapp

🧱 Tre

Antall: 1

Ny utvendig trapp parallelt med eksisterende trapp, som delvis ligger utenfor teiggrense

Ny utvendig trapp til terrassen

Fasade Vinduer med sprosser

🧱 Tre/trevinduer med sprosser

Antall: 17

Utskifting og etablering av nye vinduer med sprosser for helhetlig uttrykk, større enn eksisterende

Nye vinduer med sprosser for fasadeendring og bedre bokvalitet

Terrasse Utendørs terrasse/altan i to plan

🧱 Tre

Ny terrasse/altan på ca. 41 m², delvis utenfor eksisterende byggegrense, erstatter eksisterende altan på ca. 10 m²

Oppføring av ny terrasse/altan i to plan mot nord og vest for bedre utnyttelse av uteareal

Tak Saltak

🧱 Taktekking ikke spesifisert

Eksisterende saltak opprettholdes

Tak med saltak over eneboligen

Brannvern Brannsikring ved fasadeendring

Tiltaket må følge gjeldende byggteknisk forskrift (TEK17) for brannsikring

Brannsikringstiltak i forbindelse med fasadeendring og tilbygg

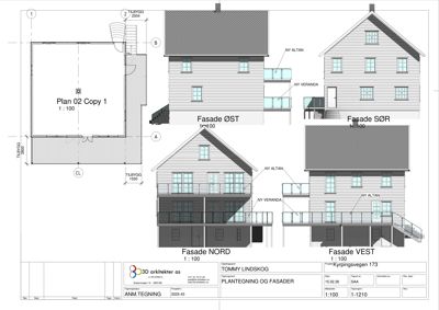
Fasader

Enebolig

Øst
Materiale
Tre
Taktype
Saltak
Vinduer
3
Dører
0
Balkonger
2
Synlige etasjer
2
Sør
Materiale
Tre
Taktype
Saltak
Vinduer
5
Dører
1
Balkonger
1
Synlige etasjer
2
Nord
Materiale
Tre
Taktype
Saltak
Vinduer
5
Dører
2
Balkonger
2
Synlige etasjer
2
Vest
Materiale
Tre
Taktype
Saltak
Vinduer
4
Dører
1
Balkonger
2
Synlige etasjer
2

Hendelser

13.04.2026 Søknad om dispensasjon frå byggegrense - gnr. 118 bnr. 005
07.04.2026 Tilbygg og fasadeendring - Dispensasjon - gnr. 118 bnr. 005 - Kyrpingsvegen 173
16.03.2026 Nabosamtykke - gnr. 118 bnr. 005 - Kyrpingsvegen 173
06.03.2026 Klarlegging av grenser
03.03.2026 Søknad om løyve til oppføring av tilbygg - gnr. 118 bnr. 005 - Kyrpingsvegen 173