Extension Ferdigattest Enebolig

Tilbygg, fasadeendring og bruksendring på Langarinden 356, Bergen

📍 Langarinden 356 , 5132 NYBORG

Nøkkelinfo

Sakstype
Tilbygg
Bygningstype
Enebolig
Bruksareal
302 m²
Boenheter
1
Kommune
Bergen
Fylke
Vestland
Gnr / Bnr
203 / 154
Saksnummer
BYGG-2025/13955
Fase
Ferdigattest

Om byggesaken

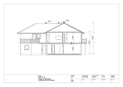
Ny tilbygg på 5 m² på nord/vestfasade i 2. etasje, utvidelse av kjøkken med 5 m², og ny altan på 13 m² på vestfasade i 2. etasje. Bruksendring av bod i kjeller til soverom og gang med innsetting av nytt vindu. Totalt areal etter tiltak er ca. 301,7 m² fordelt på to etasjer. Bygget har saltak med tegl takmateriale på sør- og østfasade, og trekledning på alle fasader. Fasader har flere vinduer og balkonger, samt pipe og garasjeport. Det er etablert ny trapp til altan for adkomst. Prosjektet er ferdigstilt med utstedt ferdigattest.

Produkter og materialer

Trapper Utvendig trapp til altan

Antall: 1

Ny trapp til altan for adkomst fra øvre plan

Trapp for adkomst til ny altan på vestfasade

Pipe Eksisterende pipe

Antall: 1

Eksisterende pipe på bygget

Pipe tilknyttet eksisterende bolig

Vinduer Fasadevindu

Antall: 17

Vinduer i fasader, inkludert nytt vindu i kjeller ved bruksendring

Nye og eksisterende vinduer i fasader og kjellerrom

Tømrer Tilbygg og innvendige arbeider

Innvendig bruksendring med nye rom, vegger og takflater

Tømrerarbeid for tilbygg, terrasse og bruksendring i kjeller

Betong Fundament og grunnmur

🧱 Betong

Fundament og grunnmur for tilbygg og terrasse

Garasjeport Eksisterende garasjeport

Antall: 1

Garasjeport på eksisterende garasje

Garasjeport tilknyttet boligens garasje

Tak Saltak med tegl

🧱 Tegl

Saltak med tegl takmateriale på sør- og østfasade

Taktekking med teglstein på eksisterende og nye takflater

Gulv Innvendige gulv

Nye gulv i tilbygget og bruksendret rom

VVS Sanitærinstallasjoner

Oppdatering av VVS i forbindelse med bruksendring av bod til soverom og gang

Fasade Tre kledning

🧱 Tre

Tilbygg på nord/vestfasade med trekledning

Materialer for ny trekledning på tilbygget og fasadeendringer

Maling Innvendig og utvendig maling

Maling av nye og endrede overflater utvendig og innvendig

Elektro Elektriske installasjoner

Elektriske installasjoner i tilbygg og bruksendret areal

Isolasjon Vegger og tak

Isolasjon i nye vegger og tak i tilbygget og bruksendret rom

Dører Ytterdører og balkongdører

Antall: 9

Dører i fasader, inkludert dør til ny altan

Ytterdører og dører til balkong/altan

Terrasse Altan

🧱 Tre

Antall: 1

Ny altan på 13 m² på vestfasade i 2. etasje

Altan for utendørs opphold og vedlikeholdstilgang

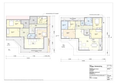
Plantegning

Enebolig 301.7 m²

Etasje 1 154.7 m²

Rom Areal Vinduer Dører
Stue 101 31.4 m² 3 2
Kjøkken 102 12.6 m² 1 1
Gang 103 8.0 m² 0 2
Sov 1 104 12.0 m² 1 1
Sov 2 105 11.0 m² 1 1
Bad 106 5.4 m² 0 1
Bod 107 4.0 m² 0 1
Bod 108 24.0 m² 1 1
WC 109 1.9 m² 0 1
Trapp 110 3.8 m² 0 0
Tilbygg 111 5.0 m² 0 0
Apent overbygget 112 9.5 m² 0 0

Etasje 2 147.0 m²

Rom Areal Vinduer Dører
Stue 201 28.7 m² 3 1
Kjøkken 202 15.0 m² 1 1
Forstue 203 11.4 m² 1 1
Sov 1 204 13.2 m² 1 1
Sov 2 205 14.2 m² 1 1
Gjestesrom 206 7.6 m² 1 1
Vaskerom 207 6.4 m² 0 1
WC 208 1.9 m² 0 1
Bad 209 6.8 m² 0 1
Vindf 210 2.4 m² 1 1

Fasader

Enebolig

Vest
Materiale
Tre
Taktype
Saltak
Vinduer
3
Dører
0
Balkonger
1
Synlige etasjer
2
Nord
Materiale
Tre
Taktype
Saltak
Vinduer
4
Dører
1
Balkonger
1
Synlige etasjer
2
Sør
Materiale
Tre
Taktype
Saltak
Takmat.
Tegl
Vinduer
4
Dører
2
Synlige etasjer
1
Øst
Materiale
Tre
Taktype
Saltak
Takmat.
Tegl
Vinduer
2
Dører
0
Balkonger
1
Synlige etasjer
2

Hendelser

12.11.2025 Ferdigattest 203/154 Langarinden 356
11.11.2025 Langarinden 356 Søknad om ferdigattest 203/154
29.07.2025 Fakturagrunnlag 2025
28.07.2025 Ubw ordre 20674170 Bruksendring og tilbygg med tilleggsdokumentasjon.
10.07.2025 Tillatelse til tiltak med ansvarsrett Langarinden 356 203/154
09.07.2025 Tilleggsopplysninger
23.06.2025 Behov for tilleggsopplysninger - 203/154/0/0 Langarinden 356, tilbygg bolig mm
18.06.2025 Langarinden 356 Søknad om tillatelse i ett trinn 203/154