Extension Avslatt Enebolig

Tilbygg og fasadeendring på enebolig i Langerekkja 76, Bergen

📍 Langerekkja 76 , 5262 ARNATVEIT

Nøkkelinfo

Sakstype
Tilbygg
Bygningstype
Enebolig
Bruksareal
46 m²
Boenheter
1
Kommune
Bergen
Fylke
Vestland
Gnr / Bnr
289 / 26
Saksnummer
BYGG-2025/13859
Fase
Avslått

Om byggesaken

Ny tilbygg på 28 m² i nordenden av eksisterende enebolig, utvidelse av vinterhage på 19,1 m² oppå eksisterende garasje, samt oppføring av ny utvendig redskapsbod på 18 m². Eksisterende bolig har et samlet bebygd areal på 144 m² inkludert garasje og sykkelbod. Det planlegges også fasadeendring med ny taktekking fra rød til svart stein. Bygget er i tre med pulttak på bod og saltak på hovedbygning. Det er ett trapperom i boligen, og fasadene får flere nye vinduer og dører i tilbygg og vinterhage. Totalt utnyttes tomten med 33,32 % BYA, under maksimal tillatt utnyttelse.

Produkter og materialer

Vinduer Fasadevindu

Antall: 7

Vinduer i tilbygg, vinterhage og bod, inkludert 3 vinduer i vinterhage og 1 vindu i bod

Nye vinduer i tilbygg, vinterhage og utebod

Dører Ytterdør

Antall: 4

Dører i tilbygg, vinterhage og bod

Nye ytterdører i tilbygg, vinterhage og utebod

Fasade Trepanel kledning

🧱 Tre

Ny fasade på tilbygg og utebod i tre

Utvendig kledning på tilbygg og bod i tre

Grunnarbeid Fundamentering og grunnmur

Fundamentering for tilbygg og utebod

Grunnarbeid for nytt tilbygg og utebod

Tømrer Tømrerarbeid

🧱 Tre

Tømrerarbeid for tilbygg, vinterhage og utebod

Tømrerarbeid for konstruksjon og innredning

Fasade Taktekking

🧱 Skifer eller tilsvarende svart stein

Ny taktekking på bolig fra rød til svart stein

Taktekking på eksisterende bolig og tilbygg med svart stein

Maling Utvendig maling

Maling av trepanel på fasade

Overflatebehandling av ny kledning

Ventilasjon Mekanisk ventilasjon

Ventilasjon i tilbygg og vinterhage

Tekniske installasjoner for ventilasjon

Betong Betongarbeid

Betongarbeid for fundament og eventuelle bjelkelag

Betongarbeid i tilbygg og utebod

Isolasjon Bygningsisolasjon

Isolasjon i vegger, tak og gulv i tilbygg og vinterhage

Isolasjon for varme og lyd

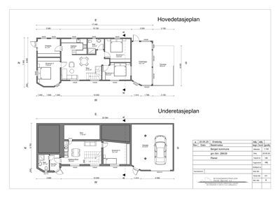
Plantegning

Enebolig 225.5 m²

Etasje 1 120.5 m²

Rom Areal Vinduer Dører
Inngang 101 9.1 m² 0 1
Kjøkken 102 9.0 m² 0 1
Stue 103 21.5 m² 2 1
Soverom 1 104 12.9 m² 1 1
Soverom 2 105 10.3 m² 1 1
Soverom 3 106 13.8 m² 1 1
Bad 107 4.8 m² 0 1
Vinterhage 108 19.1 m² 3 1
Terrasse 109 18.9 m² 0 0

Etasje 0 105.0 m²

Rom Areal Vinduer Dører
Korridor 001 3.3 m² 0 1
Bad 002 3.7 m² 0 1
Kjøkken/Stue 003 15.4 m² 0 1
Soverom 3 004 13.1 m² 1 1
Bod 005 11.6 m² 0 1
Garasje 006 41.9 m² 1 1

Fasader

Bod

Øst
Materiale
Tre
Taktype
Pulttak
Høyde
2.4 m
Mønehøyde
2.7 m
Vinduer
1
Dører
1
Synlige etasjer
1
Nord
Materiale
Tre
Taktype
Flatt tak
Høyde
2.7 m
Mønehøyde
2.7 m
Vinduer
0
Dører
0
Synlige etasjer
1
Sør
Materiale
Tre
Taktype
Flatt tak
Høyde
2.4 m
Mønehøyde
2.4 m
Vinduer
1
Dører
0
Synlige etasjer
1
Vest
Materiale
Tre
Taktype
Pulttak
Høyde
2.4 m
Mønehøyde
2.7 m
Vinduer
0
Dører
0
Synlige etasjer
1

Hendelser

01.09.2025 Fakturagrunnlag - Avvist - 289/26/0/0 Langerekkja 76, tilbygg og fasadeendring
01.09.2025 ubw ordre 20675704/avvist
15.08.2025 Søknaden avvises, 289/26, Langerekkja 76
23.06.2025 Langerekkja 76, foreløpig tilbakemelding på søknad om tilbygg og fasadeendring
16.06.2025 Bekreftelse på mottatt søknad
13.06.2025 Langerekkja 76 Søknad om tillatelse i ett trinn 289/26