Extension Rammetillatelse Enebolig

Tilbygg, fasade- og bruksendring på enebolig, Leitet 12, Bergen

📍 Leitet 12 , 5018 BERGEN

Nøkkelinfo

Sakstype
Tilbygg
Bygningstype
Enebolig
Bruksareal
330 m²
Boenheter
6
Kommune
Bergen
Fylke
Vestland
Gnr / Bnr
166 / 1013
Saksnummer
BYGG-2025/17645
Fase
Rammetillatelse

Om byggesaken

Ny tilbygg på eksisterende enebolig på Leitet 12 i Bergen med endret planløsning i underetasje for felles gjennomgang til bakplass, bruksendring fra tilleggsdel til hoveddel i underetasjen, samt tilbakeføring av fasader og balkong i 2. etasje. Prosjektet inkluderer oppgradering av bad med plass til vask/tørk, montering av 3 nye Velux takvinduer, og oppgradering av lyd- og brannskiller inkl. dører og rømningsvei. Det etableres sportsboder til hver boenhet i underetasjen. Eiendommen består av totalt 6 boenheter fordelt på kjeller, 1., 2. etasje og loft. Fasadeendringene innebærer tilbakeføring til opprinnelig utforming med trepanel og saltak. Rømningstrapp tilbakeføres fra 2. etasje til loft. Tiltaket er vurdert å ha liten konsekvens for rasfare og personsikkerhet, og det er gitt delvis rammetillatelse med vilkår.

Produkter og materialer

Bad Oppgradering bad

Oppgradering av bad med plass til vask og tørk

Oppgradering av bad i flere etasjer med nye sluker og sanitærinstallasjoner

Gulv Sportboder gulv

Etablering av sportsboder til hver boenhet i underetasjen iht. TEK17

Nye sportsboder med gulv i underetasjen

Maling Innvendig og utvendig maling

Maling av nye og eksisterende overflater etter ombygging og fasadeendring

Maling av fasade og innvendige flater

Tømrer Innvendig ombygging

Endret planløsning i underetasje, plan 1, 2 og loft, inkl. lyd- og brannskiller

Innvendig ombygging med nye vegger, dører og oppgradering av brann- og lydskiller

VVS Sanitærinstallasjon

Nye sluker og sanitærinstallasjoner i forbindelse med bad og bruksendring

Oppgradering og endring av sanitærinstallasjoner i underetasje og øvrige plan

Fasade Trepanel fasade

🧱 Tre

Tilbakeføring av fasader til opprinnelig utforming med trepanel og saltak

Fasadeendring med tilbakeføring av fasader og balkong i 2. etasje

Elektro Elektrisk installasjon

Oppgradering av elektriske installasjoner i forbindelse med ombygging

Elektrisk arbeid i tilbygg og ombygde arealer

Trapper Rømningstrapp

Antall: 1

Tilbakeføring av baktrapp fra 2. etasje til loft

Etablering av innvendig rømningstrapp i tråd med brannkrav

Grunnarbeid Drenering og fundamentering

Grunnarbeid for tilbygg og endringer i underetasje

Grunnarbeid i forbindelse med tilbygg og bruksendring i underetasjen

Vinduer Takvindu

Antall: 3

Velux takvinduer

Montering av 3 nye Velux takvinduer i taket

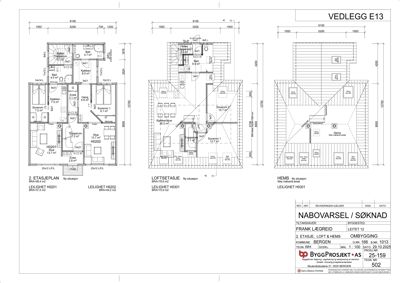
Plantegning

Enebolig 0.0 m²

Etasje 0 0.0 m²

Rom Areal Vinduer Dører
Kjeller 001 0.0 m² 0 0
Vaskerom 002 0.0 m² 0 0
Bad 003 0.0 m² 0 0
Teknisk rom 004 0.0 m² 0 0
Kjeller 005 0.0 m² 0 0

Leilighet 175.0 m²

Etasje 2 96.4 m²

Rom Areal Vinduer Dører
Stue H0201 13.7 m² 2 1
Kjøkken H0201 7.5 m² 0 1
Soverom H0201 7.2 m² 1 1
Bad H0201 4.5 m² 0 1
Trapperom H0201 5.1 m² 0 1
Stue H0202 13.7 m² 2 1
Kjøkken H0202 6.0 m² 0 1
Soverom 1 H0202 9.1 m² 1 1
Soverom 2 H0202 10.7 m² 1 1
Bad H0202 4.7 m² 0 1
Gang H0202 5.6 m² 0 2
Entré H0202 3.1 m² 0 1

Etasje 3 78.6 m²

Rom Areal Vinduer Dører
Kjøkken/stue H0301 36.2 m² 2 1
Soverom 1 H0301 13.7 m² 1 1
Soverom 2 H0301 10.7 m² 1 1
Bad H0301 6.9 m² 0 1
Trapperom H0301 3.0 m² 0 1
Entré H0301 1.1 m² 0 1

Fasader

Enebolig

Sør-Vest
Materiale
Tre
Taktype
Saltak
Høyde
4.7 m
Vinduer
6
Dører
2
Balkonger
1
Synlige etasjer
2
Sør-Øst
Materiale
Tre
Taktype
Saltak
Høyde
4.7 m
Vinduer
3
Dører
1
Balkonger
1
Synlige etasjer
2

Hendelser

25.03.2026 Ubw ordre 20692819
25.03.2026 Fakturagrunnlag: 166/1013 Leitet 12
24.03.2026 Delvis tillatelse med ansvarsrett på vilkår 166/1013, Leitet 12
24.03.2026 Søknaden avvises delvis: 166/1013, Leitet 12
12.03.2026 Leitet 12 Supplering av søknad 166/1013
04.03.2026 Leitet 12, foreløpig tilbakemelding på søknad
14.01.2026 Byantikvarens uttalelse i sak 166/1013, Leitet 12, BYGG-2025/17645, Bruks- og fasadeendring, tilbygg
13.01.2026 Bergenhus. Gnr 166 bnr 1013, Leitet 12. Søknad om dispensasjon fra byggegrense langs kommunal veg. Vedtak fra Bymiljøetaten.
13.01.2026 Leitet 12 Supplering av søknad 166/1013
18.12.2025 Leitet 12, foreløpig tilbakemelding på søknad
17.12.2025 Intern høring - 166/1013, Leitet 12, BYGG-2025/17645, Bruks- og fasadeendring, tilbygg
20.11.2025 Bekreftelse på mottatt søknad
19.11.2025 Leitet 12 Søknad om tillatelse i ett trinn 166/1013