Extension Igangsettingstillatelse Enebolig

Tilbygg og carport på enebolig i Lervikveien 99, Fredrikstad

📍 Lervikveien 99 , 1626 MANSTAD

Nøkkelinfo

Sakstype
Tilbygg
Bygningstype
Enebolig
Bruksareal
396 m²
Boenheter
1
Kommune
Fredrikstad
Fylke
Østfold
Gnr / Bnr
119 / 53
Saksnummer
2022/15388
Fase
Igangsettingstillatelse

Om byggesaken

Prosjektet omfatter oppføring av et tilbygg til eksisterende enebolig i Lervikveien 99, Fredrikstad, med et samlet bruksareal på ca. 160 m² fordelt på to etasjer. Tilbygget er plassert mot sør/sørvest, følger fjellkanten på tomten og er tilbaketrukket for å minimere synlighet fra sjøen og omkringliggende bebyggelse. Det inkluderer også oppføring av en ny carport på 31 m² og bod, samt riving av eksisterende garasje på 40 m². Bygningen har saltak og tre som fasademateriale, og fasadelengden mot vest (sjøen) blir ca. 25,2 meter. Prosjektet er tilpasset som en generasjonsbolig med felles inngang og livsløpsstandard, og det er lagt vekt på å bevare det opprinnelige bolighusets karakter. Tiltaket ligger i et LNF-område og innenfor 100-metersbeltet mot sjø, og det er gitt dispensasjon fra byggeforbudet med vilkår om materialvalg og fargesetting for å redusere eksponering i landskapet.

Produkter og materialer

VVS Sanitærinstallasjoner

Nye sanitærinstallasjoner i tilbygg, inkludert bad og wc

Sanitærinstallasjoner for tilbyggets bad og wc

Kjøkken Nytt kjøkken i tilbygg

Antall: 1

Nytt kjøkken med moderne fasiliteter i tilbygg, i tillegg til eksisterende kjøkken

Kjøkkeninnredning for tilbyggets boenhet

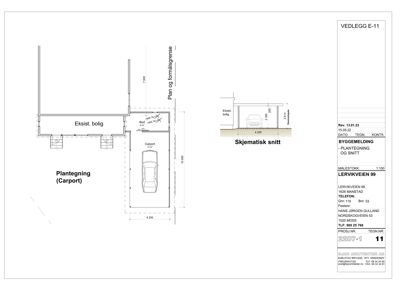
Garasjeport Carport

Antall: 1

Ny carport på 31 m² med flatt tak, lav høyde for å dempe uttrykket

Carport som tilbygg til bolig, erstatter eksisterende garasje som rives

Tømrer Tømrerarbeider

Tømrerarbeider for oppføring av tilbygg, carport og bod

Tømrerarbeid inkludert konstruksjon og kledning

Tak Saltak

🧱 Taktekking ikke spesifisert

Antall: 1

Saltak på eksisterende bolig og tilbygg, mønehøyde ca. 4,5 m på tilbygg

Taktekking for bolig og tilbygg med saltak

Trapper Innvendig trapp

Antall: 1

Innvendig trapp mellom etasjer i bolig og tilbygg

Trapp for intern kommunikasjon i bolig

Vinduer Fasadevindu

🧱 Tre med mørke rammer

Antall: 22

Vinduer i eksisterende bolig og tilbygg, fargesatt for minimal eksponering

Vinduer til bolig og tilbygg, inkludert større vinduer i kjeller som krever dokumentasjon

Dører Ytterdører og terrassedører

🧱 Tre/Glass

Antall: 20

Dører i bolig og tilbygg, inkludert to dører mellom eksisterende bolig og tilbygg, samt hovedinngangsdør

Dører for adkomst og intern forbindelse mellom eksisterende bolig og tilbygg

Elektro Elektrisk installasjon

Elektriske installasjoner i tilbygg og carport

Elektrisk anlegg for nytt tilbygg og carport

Bad Bad og dusjrom

Antall: 2

Nytt bad og dusjrom i tilbygg, inkludert toalett og dusj

Bad og sanitærrom i tilbygg

Terrasse Terrasse på terreng

Antall: 1

Terrasse på 30 m² i 1. etasje, samt takterrasse på 23 m²

Utendørs terrassearealer tilknyttet bolig og tilbygg

Fasade Tre kledning

🧱 Tre

Tre kledning på eksisterende bolig og tilbygg, fargesatt i gråbrunt for å gli inn i landskapet

Fasademateriale for bolig og tilbygg

Grunnarbeid Fundamentering og grunnarbeid

Grunnarbeid og fundamentering tilpasset stedlige forhold, inkludert geoteknisk vurdering

Grunnarbeid for tilbygg og carport

Gulv Innvendige gulv

Gulv i tilbygg med livsløpsstandard, detaljer ikke spesifisert

Innvendige gulv i tilbygg

Maling Utvendig og innvendig maling

Maling i farger som gjør tilbygget lite synlig i landskapet, gråbrunt med mørke vindusrammer

Overflatebehandling for fasade og vinduer

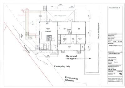
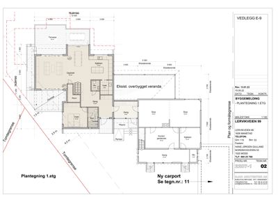
Plantegning

Carport 31.0 m²

Etasje 1 31.0 m²

Rom Areal Vinduer Dører
Carport Carport 31.0 m² 0 0

Enebolig 396.5 m²

Etasje 1 288.0 m²

Rom Areal Vinduer Dører
Opphold 101 42.0 m² 3 2
Kjøkken 102 13.0 m² 0 1
Wc 103 2.0 m² 0 1
Vask 104 4.0 m² 0 1
Repos 105 0.0 m² 0 1
Gang 106 15.0 m² 0 2
Vask 107 12.0 m² 0 1
Bad 108 5.0 m² 0 1
Gang 109 9.0 m² 0 1
Repos 110 0.0 m² 0 1
Stue 111 19.0 m² 1 1
Stue 112 19.0 m² 1 1
Kontor/garderobe 113 16.0 m² 0 1
Kjøkken 114 10.0 m² 0 1
Gang 115 15.0 m² 0 1
Wc 116 2.0 m² 0 1
Terrasse 117 30.0 m² 0 1

Etasje 2 108.5 m²

Rom Areal Vinduer Dører
Opphold 201 15.0 m² 2 2
Sov 1 202 11.0 m² 1 1
Gard 203 5.0 m² 0 1
Bad 204 11.0 m² 0 1
Repos 205 2.0 m² 0 1
Disp 206 12.5 m² 0 1
Balkong 207 4.0 m² 0 1
Balkong 208 6.0 m² 0 1
Takterrasse 209 23.0 m² 0 0

Fasader

Eksisterende bolig

Nord
Materiale
Tre
Taktype
Saltak
Vinduer
4
Dører
0
Synlige etasjer
2
Øst
Materiale
Tre
Taktype
Saltak
Vinduer
4
Dører
2
Synlige etasjer
2
Sør
Materiale
Tre
Taktype
Saltak
Vinduer
6
Dører
1
Balkonger
1
Synlige etasjer
2
Vest
Materiale
Tre
Taktype
Saltak
Vinduer
6
Dører
1
Balkonger
1
Synlige etasjer
2

Hendelser

20.04.2026 Tilbakemelding til kommunen - Lervikveien 99
30.03.2026 Tilbakemelding på søknad om midlertidig brukstillatelse - Tilbygg over 50 m² - Lervikveien 99 - Eiendom 119/53
09.03.2026 Søknad om midlertidig brukstillatelse - Lervikveien 99 - Eiendom 119/53
09.09.2024 Sak til matrikkelføring - Tilbygg over 50 m² - Lervikveien 99 - Eiendom 119/53
09.09.2024 Igangsettingstillatelse - Tilbygg over 50 m² - Lervikveien 99 - Eiendom 119/53
04.09.2024 Søknad om igangsettingstillatelse - Lervikveien 99
27.10.2023 Oversender uttalelser for orientering
23.10.2023 Ny uttalelse til revidert søknad om dispensasjon for oppføring av tilbygg til bolig - Eiendom 119/53
26.09.2023 2.gangs uttalelse - søknad om oppføring av tilbygg til bolighus
06.09.2023 Tilleggsopplysninger - Lervikveien 99 - Søknad om oppføring av tilbygg til bolighus
09.06.2023 Lervikveien 99 - oversendelse av uttalelser
06.06.2023 Uttalelse til søknad om dispensasjon for oppføring av tilbygg til bolig - Eiendom 119/53
30.05.2023 Uttalelse til søknad om dispensasjon fra 100-metersbelte for oppføring av tilbygg til bolig - Lervikveien 99 - Eiendom 119/53
23.05.2023 Anmodning om uttalelse - Tilbygg over 50 m² - Lervikveien 99 - Eiendom 119/53
09.05.2023 Uttalelse fra Miljø og landbruk til søknad om tilbygg - Eiendom 119/53
02.05.2023 Anmodning om uttalelse - Rammesøknad - Lervikveien 99 - Eiendom 119/53
02.05.2023 Bilder fra Lervik
06.03.2023 Tilleggsdokumentasjon - Lervikveien 99 - Generasjonsbolig - tilbygg
12.09.2022 Mangelfull søknad - Tilbygg over 50 m² - Lervikveien 99 - Eiendom 119/53
11.07.2022 Bekreftelse på mottatt søknad - Tilbygg over 50 m² - Lervikveien 99 - Eiendom 119/53