Extension UnderBehandling Enebolig

Tilbygg og levegg til bolig og garasje i Liljevegen 44

📍 Liljevegen 44 , 4350 KLEPPE

Nøkkelinfo

Sakstype
Tilbygg
Bygningstype
Enebolig
Bruksareal
26 m²
Boenheter
1
Kommune
Klepp
Fylke
Rogaland
Gnr / Bnr
1 / 1139
Saksnummer
26/00288
Fase
Under behandling

Om byggesaken

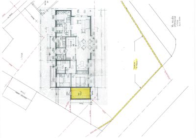
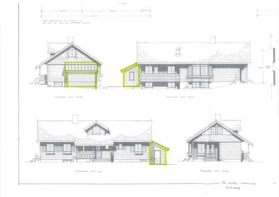
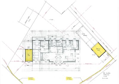
Ny tilbygg på totalt 26,2 m² til eksisterende enebolig og garasje i Liljevegen 44. Tilbygget inkluderer en utvendig bod på boligen og en hagestue på garasjen. I tillegg oppføres en levegg på 1,5 meters høyde i tomtegrensen for å skjerme mot støy, innsyn og vind. Leveggen skal ha stående kledning og plasseres innenfor frisiktsonen, men krever dispensasjon fra regulert byggegrense. Tilbygget er i tre med saltak på boligen og flatt tak på garasjen. Prosjektet inkluderer også oppdatering av fasader og terrengtilpasning uten vesentlige terrengendringer.

Produkter og materialer

Tilbygg Hagestue på garasje

🧱 Tre

Tilbygg på garasje som hagestue, del av samlet tilbyggareal 26,2 m²

Hagestue som tilbygg til garasje

Tak Saltak og flatt tak

🧱 Tre og taktekking

Saltak på bolig, flatt tak på garasje

Tak på tilbygg og eksisterende bygg

Tømrer Tømrerarbeid

🧱 Treverk

Tømrerarbeid for tilbygg og levegg

Bygging av trekonstruksjoner for tilbygg og levegg

VVS Innvendig rørleggerarbeid

Innvendig VVS-arbeid i tilbygg (vaskerom, bad)

Rørleggerarbeid for sanitærinstallasjoner i tilbygg

Tilbygg Utvendig bod på bolig

🧱 Tre

Tilbygg på bolig med areal inkludert i totalt 26,2 m²

Utvendig bod som del av tilbygg til enebolig

Grunnarbeid Fundamentering og grunnarbeid

Grunnarbeid for tilbygg og levegg

Fundamentering og grunnarbeid for nye konstruksjoner

Fasade Levegg

🧱 Stående trepanel

Levegg 1,5 m høy, plassert i tomtegrense, innenfor frisiktsonen, med stående kledning

Levegg for skjerming mot støy, innsyn og vind, krever dispensasjon fra byggegrense

Dører Ytterdører

🧱 Tre

Ytterdører i tilbygg og fasadeendringer

Dører i tilbygg og fasadeendringer

Vinduer Fasadevindu

🧱 Tre/aluminium

Nye vinduer i tilbygg og fasadeendringer

Vinduer i tilbygg og fasadeendringer

Plantegning

Kryperom 0.0 m²

Etasje 0 0.0 m²

Rom Areal Vinduer Dører
Kryperom 001 0.0 m² 1 1

Enebolig 63.0 m²

Etasje 1 63.0 m²

Rom Areal Vinduer Dører
Stue 101 32.0 m² 1 1
Kjøkken 102 10.0 m² 1 1
Bad 103 4.0 m² 0 1
Gang 104 4.0 m² 0 2
Sove 1 105 10.0 m² 1 1
Sove 2 106 10.0 m² 1 1
Vaskerom 107 2.0 m² 0 1
Hagestue 108 13.6 m² 0 0
Sove 3 109 12.0 m² 1 1
Bod 110 9.0 m² 1 1

Fasader

Enebolig

Sør
Materiale
Tre
Taktype
Saltak
Høyde
4.1 m
Mønehøyde
7.2 m
Vinduer
3
Dører
1
Synlige etasjer
1
Øst
Materiale
Tre
Taktype
Flatt tak
Høyde
4.1 m
Mønehøyde
7.2 m
Vinduer
3
Dører
1
Synlige etasjer
1
Nord
Materiale
Tre
Taktype
Saltak
Høyde
4.1 m
Mønehøyde
7.2 m
Vinduer
4
Dører
1
Synlige etasjer
2
Vest
Materiale
Tre
Taktype
Saltak
Høyde
4.1 m
Mønehøyde
7.2 m
Vinduer
6
Dører
1
Balkonger
1
Synlige etasjer
2

Uthus

Nordvest
Materiale
Tre
Taktype
Flatt tak
Høyde
3.5 m
Vinduer
1
Dører
2
Synlige etasjer
1
Sør
Materiale
Tre
Taktype
Flatt tak
Høyde
3.5 m
Vinduer
0
Dører
0
Synlige etasjer
1
Nordøst
Materiale
Tre
Taktype
Flatt tak
Høyde
3.5 m
Vinduer
1
Dører
0
Synlige etasjer
1
Sørvest
Materiale
Tre
Taktype
Flatt tak
Høyde
3.5 m
Vinduer
0
Dører
0
Synlige etasjer
1

Redskap

Øst
Materiale
Tre
Taktype
Saltak
Vinduer
2
Dører
0
Synlige etasjer
1

Hendelser

16.04.2026 26/00288-10 Uttalelse til søknad om dispensasjon for fasadeendring - 63/16/0/0 - Holmen 47 - dispensasjon - fasadeendring eksisterende fritidsbolig
14.04.2026 26/00288-9 Ber om uttalelse - tilbygg til bolig og garasje. Oppføring av leevegg - gnr/bnr 1/1139 - dispensasjon fra regulert byggegrense
13.04.2026 26/00288-7 Kommunalteknisk avdeling ved samferdsel - 2 tilbygg og levegg - gnr/bnr 1/1139 - uttale
13.04.2026 26/00288-6 Ber om uttale - 2 tilbygg og levegg - gnr/bnr 1/1139 - dispensasjon fra regulert byggegrense
19.03.2026 26/00288-8 Anmodning om uttalelse - 63/16/0/0 - Holmen 47 - dispensasjon - fasadeendring eksisterende fritidsbolig
16.02.2026 26/00288-5 Tilleggsopplysning - Tilbygg til bolig og garasje - gnr/bnr 1/1139
05.02.2026 26/00288-3 Ett-trinns søknad - 2 tilbygg og levegg - gnr/bnr 1/1139
05.02.2026 26/00288-4 Tilleggsopplysning - Tilbygg til bolig og garasje. Oppføring av leevegg - gnr/bnr 1/1139
02.02.2026 26/00288-2 Merknader til revidert nabovarsel - Tilbygg og levegg - gnr/bnr 1/1139
26.01.2026 26/00288-1 Svar på nabovarsel - Tilbygg og levegg - gnr/bnr 1/1139