Extension UnderBehandling Enebolig

Bruksendring, tilbygg og fasadeendring på enebolig i Løbergsveien 73A

📍 Løbergsveien 73A , 5055 BERGEN

Nøkkelinfo

Sakstype
Tilbygg
Bygningstype
Enebolig
Bruksareal
47 m²
Boenheter
1
Kommune
Bergen
Fylke
Vestland
Gnr / Bnr
159 / 592
Saksnummer
BYGG-2022/18639
Fase
Under behandling

Om byggesaken

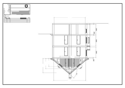
Prosjektet omfatter bruksendring og ombygging av loftsetasje og kjelleretasje fra tilleggsdel til hoveddel i en eksisterende enebolig, med tilførsel av areal til boenheten via nye interne trapper. Det bygges et tilbygg som takoverbygg for inngang til kjeller på sørfasade på 6,5 m² BRA, samt et nytt frittstående utvendig bodbygg på 10 m² BRA. Fasadeendringer inkluderer montering av fire nye takvinduer (to mot nord og to mot øst) med mål 500 x 1000 mm. Bygget har ett trapperom og flere rom i kjelleretasjen som vaskerom, bad og boder. Prosjektet har gjennomgått endringer hvor bruksendring av kjelleretasjen er tatt ut av tiltaket foreløpig. Det er utarbeidet brannkonsept og gjennomført uavhengig kontroll. Tiltaket er under behandling med igangsettingstillatelse gitt og søknad om ferdigattest pågående.

Produkter og materialer

Elektro Elektriske installasjoner

Elektriske installasjoner i tilbygg og ombygde arealer

VVS Sanitærinstallasjoner

Sanitærarbeider i bad og vaskerom i kjeller

Oppgradering og ombygging av sanitærinstallasjoner i kjeller

VVS Ventilasjon

Ventilasjonsarbeider i kjeller og øvrige deler av tiltaket

Ventilasjonsarbeider i forbindelse med ombygging og bruksendring

Tømrer Bygningsarbeider

Tømrerarbeider for tilbygg, takoverbygg og bodbygg

Tømrerarbeider knyttet til tilbygg og fasadeendringer

Isolasjon Isolasjon for tilbygg og takoverbygg

Isolasjon i nye bygningsdeler for varme og lyd

Gulv Gulvbelegg

Gulvbelegg i ombygde rom og tilbygg

Fasade Bodbygg

Antall: 1

Frittstående utvendig bodbygg, 10 m² BRA

Ny frittstående bod utenfor hovedbygget

Brannvern Brannkonsept og prosjektering

Brannkonsept og brannprosjektering med uavhengig kontroll

Brannvernprosjektering i tiltaksklasse 2 for bruksendring og tilbygg

Trapper Innvendig trapp

Antall: 1

Ny interntrapp mellom loft og 2. etasje, og mellom kjeller og 1. etasje (kjellertrapp tatt ut av endring nå)

Nye interne trapper for sammenføyning av etasjer ved bruksendring

Fasade Takoverbygg

Antall: 1

Tilbygg takoverbygg for inngang kjeller, 6,5 m² BRA

Takoverbygg som tilbygg på sørfasade ved inngang til kjeller

Dører Innvendige dører

Antall: 7

Innvendige dører i kjeller og øvrige rom (7 dører totalt i kjeller)

Dører til soverom, bad, vaskerom og boder i kjeller

Vinduer Takvindu

Antall: 4

Takvinduer 500 x 1000 mm, 2 stk mot nord og 2 stk mot øst

Nye takvinduer for fasadeendring på takflater

Plantegning

Enebolig 104.2 m²

Etasje 0 104.2 m²

Rom Areal Vinduer Dører
Soverom 001 12.7 m² 1 1
Soverom 002 13.0 m² 1 1
Gang 003 7.2 m² 0 2
Gang 004 6.6 m² 0 1
Bad 005 7.0 m² 1 1
Bod 006 2.7 m² 0 1
Bod 007 5.0 m² 0 1
Vaskerom 008 5.8 m² 0 1

Hendelser

10.04.2026 Løbergsveien 73A Søknad om endring av gitt tillatelse eller godkjenning 159/592
22.09.2025 Tilbakemelding på spørsmål om tilleggsopplysninger
22.09.2025 Spørsmål om tilleggsopplysninger
09.07.2025 Korrespondanse vedrørende behov for utsatt frist
23.06.2025 Behov for tilleggsopplysninger ved søknad om ferdigattest i sak BYGG-2022/18639 - Løbergsveien 73A
06.06.2025 Søknad om ferdigattest- 159/592/0/0 Løbergsveien 73A, bruksendring og ombygging bolig, tilbygg, fasadeendring, frittstående bodbygg
24.02.2023 Igangsettingstillatelse, Løbergsveien 73A.
24.02.2023 Oversendelse igangsettingstillatelse - 159/592/0/0 Løbergsveien 73A, bruksendring og ombygging bolig, tilbygg, fasadeendring, frittstående bodbygg
15.02.2023 Søknad igangsettingstillatelse- 159/592/0/0