Extension Rammetillatelse Enebolig

Tilbygg med garasje og takterrasse på Lokketodalen 1B, Bergen

📍 Lokketodalen 1B , 5136 MJØLKERÅEN

Nøkkelinfo

Sakstype
Tilbygg
Bygningstype
Enebolig
Bruksareal
40 m²
Boenheter
1
Kommune
Bergen
Fylke
Vestland
Gnr / Bnr
182 / 327
Saksnummer
BYGG-2025/16927
Fase
Rammetillatelse

Om byggesaken

Ny tilbygg på eksisterende enebolig i Lokketodalen 1B, Bergen, med et samlet tilleggsareal på ca. 40 m². Tilbygget inkluderer en ny garasje med tilhørende takterrasse. Det utføres fasadeendringer mot flere himmelretninger, inkludert flytting og endring av vinduer og dører, samt bruksendring av eksisterende garasje til soverom og kjellerstue. Bygget har trekledning og saltak med tegl som takmateriale. Tiltaket er plassert med redusert avstand til nabogrense etter samtykke, og har pipe og garasjeport integrert i fasaden.

Produkter og materialer

Tømrer Bærende konstruksjoner og innvendige arbeider

🧱 Tre

Tømrerarbeid for tilbygg, inkludert bærende konstruksjoner og innvendige vegger

Tømrerarbeid for oppføring av tilbygg og garasje

Fasade Tre kledning

🧱 Tre

Fasade i tre med saltak og tegl takmateriale

Kledning for tilbygg og fasadeendringer på eksisterende enebolig

Gulv Innvendige gulvflater

Gulvbelegg i tilbygg, inkludert kjellerstue og soverom

Innvendige gulvflater i tilbygg og ombygde rom

Elektro Elektriske installasjoner

Elektriske installasjoner i tilbygg og garasje

El-installasjoner for belysning, strøm og tekniske anlegg

Rekkverk Takterrasse rekkverk

Rekkverk for takterrasse på garasjetilbygg

Sikkerhetsrekkverk for takterrasse

VVS Sanitær og tekniske installasjoner

VVS-installasjoner for nytt bad, vaskerom og garasje

Sanitærinstallasjoner og tekniske anlegg i tilbygg

Betong Betongplate og støttemurer

Betongarbeid for fundament og gulv i tilbygg og garasje

Betongarbeid for tilbyggets bærende konstruksjoner

Grunnarbeid Fundamentering og grunnmur

Grunnarbeid for tilbygg og garasje

Fundamentering og grunnmur for nytt tilbygg og garasje

Dører Ytterdør og garasjeport

Antall: 3

Ny ytterdør, endring av eksisterende garasjeport til vindu, og ny garasjeport i tilbygg

Dører og garasjeport for tilbygg og fasadeendringer

Vinduer Fasadevindu

Antall: 6

Nye og endrede vinduer i fasade mot vest, sør, øst og nordøst

Vinduer for tilbygg og fasadeendringer, inkludert endring av plassering og størrelse

Maling Innvendig og utvendig maling

Maling av fasade og innvendige overflater i tilbygg

Overflatebehandling for fasade og innvendige vegger

Vinduer Takvindu

Takvindu i tilbyggets takterrasse (antatt)

Takvindu for lysinnslipp i takterrasse over garasje

Tak Saltak med tegl

🧱 Tegl

Saltak med tegl som takmateriale på tilbygg og eksisterende bygg

Taktekking for tilbygg og eksisterende bygg

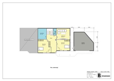
Plantegning

Enebolig 120.9 m²

Etasje 0 120.9 m²

Rom Areal Vinduer Dører
Vask/tekn. 001 12.1 m² 0 1
Gang 002 0.0 m² 0 3
Bad/wc 003 0.0 m² 0 1
Kjellerstue 004 19.2 m² 1 1
Soverom 005 19.6 m² 1 1
Soverom 006 18.7 m² 1 1

Etasje 1 0.0 m²

Rom Areal Vinduer Dører
Stue 101 34.5 m² 0 0
Stue 102 33.0 m² 0 0
Kjøkken 103 0.0 m² 0 0
Vask 104 0.0 m² 0 0
Bad 105 0.0 m² 0 0
Sov 1 106 0.0 m² 0 0
Sov 2 107 0.0 m² 0 0
Konfor 108 0.0 m² 0 0
Toalett 109 0.0 m² 0 0

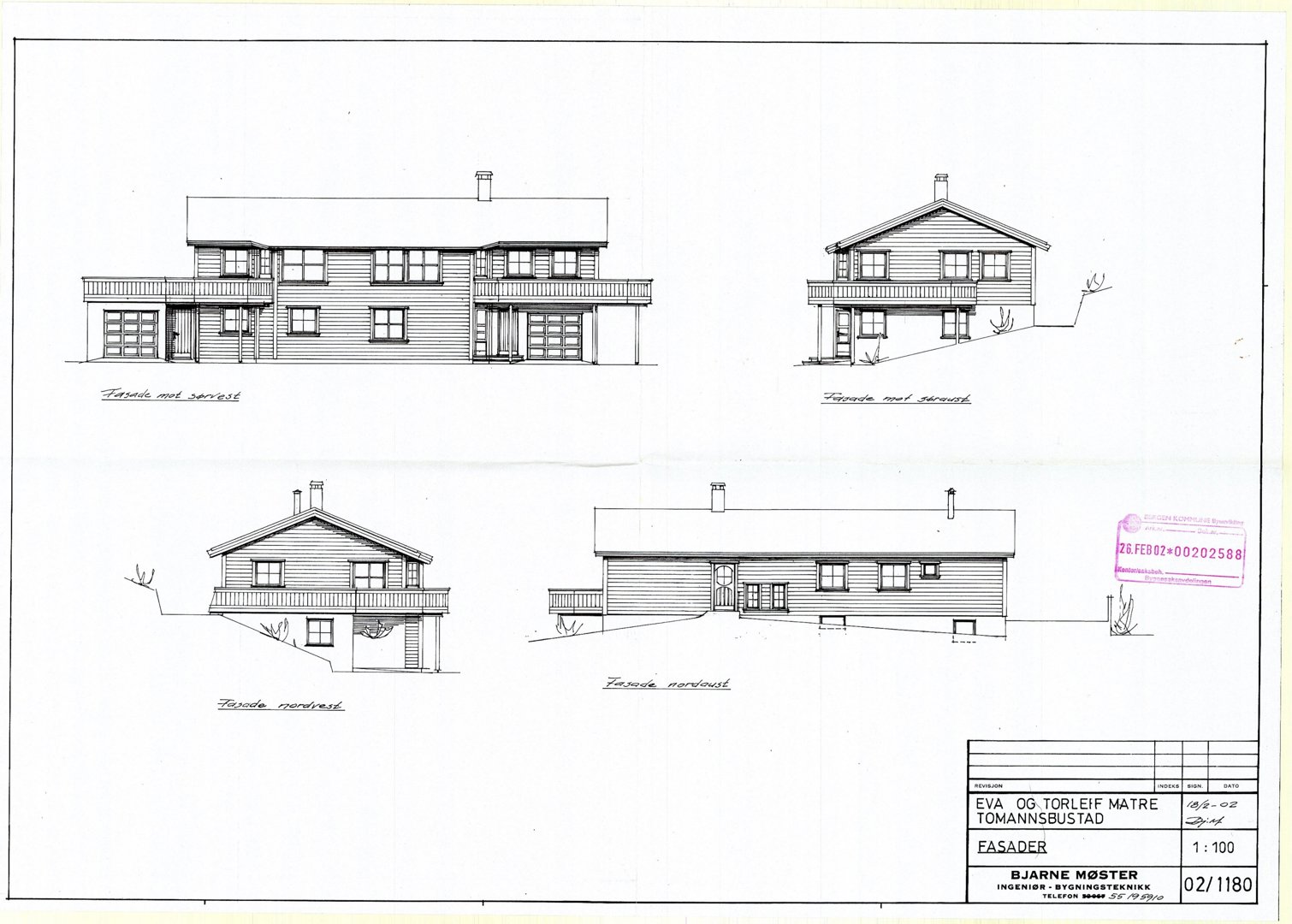
Fasader

Enebolig

Sørvest
Materiale
Tre
Taktype
Saltak
Vinduer
4
Dører
2
Balkonger
1
Synlige etasjer
2
Søraust
Materiale
Tre
Taktype
Saltak
Vinduer
3
Dører
1
Balkonger
1
Synlige etasjer
2
Nordvest
Materiale
Tre
Taktype
Saltak
Vinduer
3
Dører
1
Balkonger
1
Synlige etasjer
2
Nordøst
Materiale
Tre
Taktype
Flatt tak
Vinduer
4
Dører
1
Balkonger
1
Synlige etasjer
1
Vest
Materiale
Tre
Taktype
Saltak
Vinduer
6
Dører
1
Balkonger
1
Synlige etasjer
2
Sør
Materiale
Tre
Taktype
Saltak
Vinduer
3
Dører
1
Balkonger
1
Synlige etasjer
2
Øst
Materiale
Tre
Taktype
Saltak
Takmat.
Tegl
Vinduer
2
Dører
1
Synlige etasjer
1

Hendelser

13.11.2025 Fakturagrunnlag
13.11.2025 Ubw ordre 20681724
04.11.2025 Rammetillatelse.
27.10.2025 Bekreftelse på mottatt søknad
23.10.2025 Lokketodalen 1B Søknad om rammetillatelse 182/327