Extension Ferdigattest Enebolig

Tilbygg med balkong, ny garasje og piperehabilitering i Løytnant Lems veg 8

📍 Løytnant Lems veg 8 , 6885 ÅRDALSTANGEN

Nøkkelinfo

Sakstype
Tilbygg
Bygningstype
Enebolig
Bruksareal
126 m²
Boenheter
1
Kommune
Årdal
Fylke
Vestland
Gnr / Bnr
27 / 102
Saksnummer
2023/755
Fase
Ferdigattest

Om byggesaken

Prosjektet omfatter et tilbygg med balkong på eksisterende enebolig, en ny frittliggende garasje på 45,2 m², fasadeendringer på eneboligen, samt rehabilitering av pipe. Tilbygget med balkong har et bebygd areal på 26,5 m² og inkluderer rom som mottak/stellerom for kattepensjonat. Garasjen er plassert nærmere enn 15 meter til kommunal veg etter innvilget dispensasjon. Piperehabiliteringen benytter Schiedel keramikk- og stålsystemer for å sikre forskriftsmessig og funksjonell oppgradering. Bygningen har saltak med teglstein, trekledning, flere vinduer og dører, samt en pipe. Tomten er på 1163 m² med god uteoppholdsareal. Tiltakene er godkjent i tiltaksklasse 1 og har gjennomføringsplaner og ansvarlige foretak for prosjektering og utførelse.

Produkter og materialer

Tømrer Bygging av tilbygg og garasje

🧱 Tre

Tømrerarbeid for tilbygg, balkong og garasje

Tømrerarbeid for oppføring av tilbygg med balkong og ny garasje

Maling Utvendig maling av treverk

🧱 Maling

Maling av trefasader og eventuelt balkongrekkverk

Overflatebehandling av treverk utvendig

Garasjeport Port til frittliggende garasje

Antall: 1

Garasje på 45,2 m² med garasjeport, plassert nærmere enn 15 meter til kommunal veg etter dispensasjon

Garasjeport til ny frittliggende garasje

Balkong Balkong med rekkverk

🧱 Tre

Antall: 1

Balkong på sørøst og sørvest fasade, bebygd areal 26,5 m²

Balkong med rekkverk som del av tilbygg

Tak Saltak med teglstein

🧱 Teglstein

Saltak med teglstein på sørøst og nordvest fasade

Saltak med teglstein som takmateriale

Ventilasjon Luftespalte og ventilering i pipe

Luftespalte for kjøling av pipeforing og ventilert toppdekning

Ventilasjon og lufting i piperehabilitering

Gulv Innvendig gulv i tilbygg

Gulv i tilbygg og mottak/stellerom for kattepensjonat

Innvendige gulvflater i tilbygg

Fasade Tre kledning

🧱 Tre

Fasade i tre med saltak og teglstein

Tre kledning på alle fasader med saltak teglstein som takmateriale

Vinduer Fasadevindu

🧱 Tre/aluminium ramme

Antall: 17

Vinduer fordelt på 4 nord-øst, 5 sør-øst, 5 sør-vest og 3 nord-vest fasade

Fasadevinduer i tre med muligens aluminium ramme

Pipe Piperehabilitering med keramikk og stål

🧱 Keramikk og stål

Antall: 1

Rehabilitering av pipe med Schiedel keramikk- og stålsystem, inkl. foringsrør, sotlukerør og kondenspotte

Piperehabilitering for eksisterende pipe i enebolig

Grunnarbeid Tomtearbeid for garasje og tilbygg

Tomtearbeid for fundamentering av tilbygg og garasje

Grunnarbeid for ny garasje og tilbygg med balkong

Dører Ytterdører

🧱 Tre

Antall: 5

Ytterdører fordelt på alle fasader

Ytterdører i tre til bolig og balkong

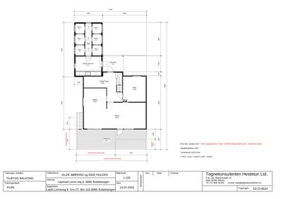
Plantegning

Enebolig 125.7 m²

Etasje 2 125.7 m²

Rom Areal Vinduer Dører
Rom 1 201 2.1 m² 1 1
Rom 2 202 2.1 m² 1 1
Rom 3 203 2.1 m² 1 1
Rom 4 204 2.1 m² 1 1
Rom 5 205 2.1 m² 1 1
Rom 6 206 2.1 m² 1 1
Gang 207 4.6 m² 0 6
Mottak/Stellerom 208 11.1 m² 1 1
Terrasse 209 7.4 m² 0 1

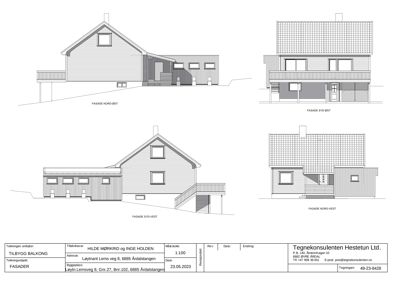
Fasader

Enebolig

Nord-Øst
Materiale
Tre
Taktype
Saltak
Vinduer
4
Dører
1
Balkonger
1
Synlige etasjer
2
Sør-Øst
Materiale
Tre
Taktype
Saltak
Takmat.
Tegl
Vinduer
5
Dører
1
Balkonger
1
Synlige etasjer
2
Sør-Vest
Materiale
Tre
Taktype
Saltak
Vinduer
5
Dører
1
Balkonger
1
Synlige etasjer
2
Nord-Vest
Materiale
Tre
Taktype
Saltak
Takmat.
Tegl
Vinduer
3
Dører
1
Synlige etasjer
2

Hendelser

20.04.2026 Søknad om ferdigattest - pipe rehabilitering
19.10.2025 Delegert vedtak 25/037 - Løyve til piperehabilitering på gnr 27 bnr 102, Løytnant Lems veg 8, 6885 Årdalstangen
03.10.2025 Søknad om tillatelse til tiltak - Piperehabilitering
20.09.2023 Vedtaksbrev - Søknad om dispensasjon for avstand til veg på gnr 27 bnr 102, Løytnant Lems veg 8, 6885 Årdalstangen
19.09.2023 Delegert vedtak 23/051 - Løyve til å føre opp balkong til bustad og ny frittliggande garasje på gnr 27 bnr 102, Løytnant Lems veg 8, 8665 Årdalstangen
29.08.2023 Ber om uttale - føre opp garasje mindre enn 15 meter til senterlinje i kommunal veg
28.08.2023 Søknad om dispensasjon for avstand til veg på gnr 27 bnr 102, Løytnant Lems veg 8, 6885 Årdalstangen
18.07.2023 Søknad om tillatelse til tak - balkong og ny frittliggande garasje
14.07.2023 Delegert vedtak 23/044 - Løyve til fasadeendring og tilbygg på gnr 27 bnr 102, Løytnant Lems veg 8, 6885 Årdalstangen
26.05.2023 Søknad om tillatelse i ett trinn - fasadeendring og tilbygg
15.03.2023 Melding om tiltak - ny garasje