Extension Soeknad Enebolig

Tilbygg hagestue på Melkevikvegen 12, Tysvær

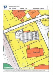
📍 Melkevikvegen 12 , 5565 TYSVÆRVÅG

Nøkkelinfo

Sakstype
Tilbygg
Bygningstype
Enebolig
Bruksareal
24 m²
Boenheter
1
Kommune
Tysvær
Fylke
Rogaland
Gnr / Bnr
59 / 106
Saksnummer
2026/1810
Fase
Søknad

Om byggesaken

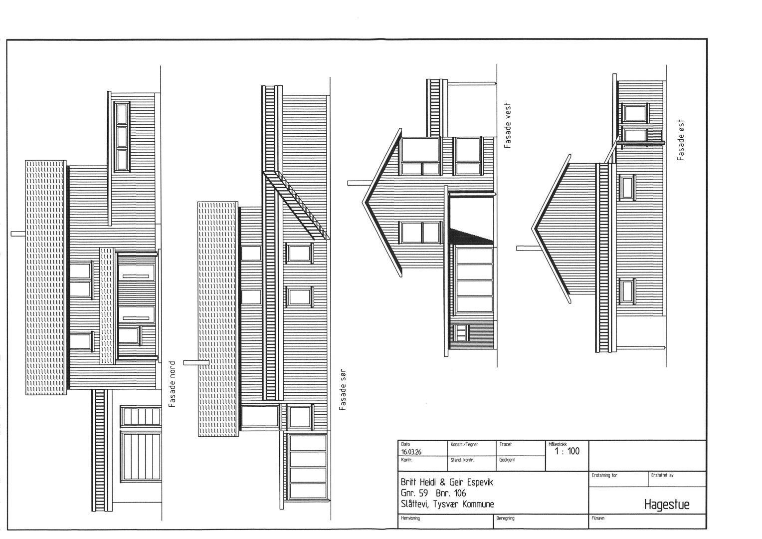
Ny hagestue som tilbygg på eksisterende enebolig på Melkevikvegen 12 i Tysvær. Tilbygget har et areal på 24 m² og er utført i trekonstruksjon med saltak. Hagestuen har flere vinduer og dører fordelt på alle fasader, og er plassert på eksisterende terrasse. Bygget har to etasjer og er tilknyttet offentlig vann- og avløpsnett. Arealet av tilbygg og eksisterende bebyggelse gir en samlet utnyttelsesgrad på 33,8 % av tomten.

Produkter og materialer

Tak Saltak

🧱 Tre og taktekking (ikke spesifisert)

Saltak på hagestue

Tak med saltak konstruksjon over hagestuen

Vinduer Fasadevindu

Antall: 10

3 vinduer på nordfasade, 3 på sørfasade, 2 på vestfasade, 2 på østfasade

Fasadevindu fordelt på alle sider av hagestuen

Grunnarbeid Terrassegrunn

Bygges for det meste på eksisterende terrasse

Grunnarbeid for tilbygg på eksisterende terrasse

Dører Ytterdør

Antall: 5

1 dør på hver fasade (nord, sør, vest, øst) og 1 dør i hagestue

Ytterdører til hagestuen på alle fasader

VVS Vann og avløp

Tilknyttet offentlig vann- og avløpsnett

Vann- og avløpsinstallasjoner til hagestuen

Tømrer Bygningskonstruksjon

🧱 Tre

Trekonstruksjon for hagestue

Tømrerarbeid for oppføring av hagestue i tre

Fasade Trekledning

🧱 Tre

Trekonstruksjon med saltak

Yttervegger i trekonstruksjon med trepanel som fasademateriale

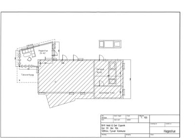
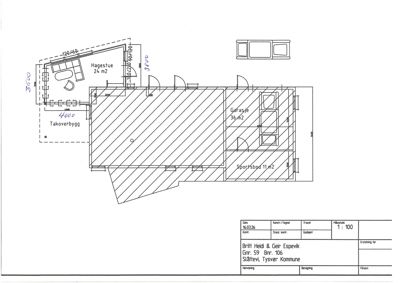
Plantegning

Takoverbygg 75.0 m²

Etasje 1 75.0 m²

Rom Areal Vinduer Dører
Hagestue 101 24.0 m² 3 1
Garasje 102 36.0 m² 1 1
Sportsbod 103 11.0 m² 1 1
Sportsbod 104 11.0 m² 0 1

Fasader

Hagestue

Nord
Materiale
Tre
Taktype
Saltak
Vinduer
3
Dører
1
Synlige etasjer
2
Sør
Materiale
Tre
Taktype
Saltak
Vinduer
3
Dører
1
Synlige etasjer
2
Vest
Materiale
Tre
Taktype
Saltak
Vinduer
2
Dører
1
Synlige etasjer
2
Øst
Materiale
Tre
Taktype
Saltak
Vinduer
2
Dører
1
Synlige etasjer
2

Hendelser

15.04.2026 Gbnr 59/106 - Søknad - tilbygg til bolig - hagestue - Melkevikvegen 12