Facade
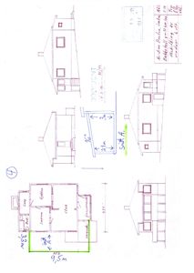
Bildet viser en håndtegnet fasadetekning av en bolig, inkludert et etasjeplan med romfordeling og mål.
1 / 10
Extension
Ferdigattest
Enebolig
Tak over utvendig platting/veranda på Mellomdammen 17
📍 Mellomdammen 17 , 3475 SÆTRE
Nøkkelinfo
- Sakstype
- Tilbygg
- Bygningstype
- Enebolig
- Boenheter
- 1
- Kommune
- Asker
- Fylke
- Akershus
- Gnr / Bnr
- 357 / 100
- Saksnummer
- 25/1415
- Fase
- Ferdigattest
Om byggesaken
Ny konstruksjon av tak over eksisterende utvendig platting/veranda på enebolig i Mellomdammen 17. Taket har en maksimal høyde på 3 meter, minste høyde på 2,1 meter og en takvinkel på 16 grader. Bygget er tilknyttet eneboligens trefasade med saltak og pipe, og skal gi værbeskyttelse over verandaen. Tiltaket krever sammenslåing av to eiendommer for korrekt arealberegning. Det er ikke registrert spesielle naturforhold som påvirker tiltaket, og det er ikke mottatt nabomerknader.
Produkter og materialer
Fasade
Treverk til takstøtte og tilslutning
🧱 Tre
Tilslutning til eksisterende trefasade med saltak
Materialer for tilslutning av tak til eksisterende fasade
Grunnarbeid
Fundamentering for takstøtter
Fundamentering for bærende konstruksjon til tak over veranda
Tømrer
Montering av tak og bærende konstruksjon
Tømrerarbeid for oppføring av tak over veranda
Tak
Tak over veranda
🧱 ukjent, men takvinkel 16°
Antall: 1
Maks høyde 3 meter, minste høyde 2,1 meter, takvinkel 16°
Tak over utvendig platting/veranda for værbeskyttelse
Plantegning
Enebolig 0.0 m²
Etasje 1 0.0 m²
| Rom | Areal | Vinduer | Dører |
|---|---|---|---|
| Stue 101 | 0.0 m² | 1 | 1 |
| Kjøkken 102 | 0.0 m² | 0 | 1 |
| Soverom 103 | 0.0 m² | 0 | 1 |
| Gang 104 | 0.0 m² | 0 | 1 |
| Bad 105 | 0.0 m² | 0 | 1 |
| Veranda 106 | 0.0 m² | 1 | 1 |
Fasader
Enebolig
Nord
- Materiale
- Tre
- Taktype
- Saltak
- Vinduer
- 4
- Dører
- 1
- Synlige etasjer
- 2
Sør
- Materiale
- Tre
- Taktype
- Saltak
- Vinduer
- 3
- Dører
- 1
- Synlige etasjer
- 2
Vest
- Materiale
- Tre
- Taktype
- Saltak
- Vinduer
- 3
- Dører
- 1
- Synlige etasjer
- 2
Øst
- Materiale
- Tre
- Taktype
- Saltak
- Vinduer
- 2
- Dører
- 1
- Synlige etasjer
- 2
Hendelser
10.04.2026
357/100 Mellomdammen 17 - Søknad om ferdigattest
16.05.2025
357/100 Mellomdammen 17 - Tillatelse til tiltak uten ansvarsrett for tak over utvendig platting/veranda
13.05.2025
357/100 Mellomdammen 17 - Bekreftelse på at vi har mottatt din søknad
25.04.2025
357/100, 357/291 Mellomdammen 17 - Søknad om tiltak uten ansvarsrett - Tak over utvendig platting/veranda