Extension UnderBehandling Enebolig

Tilbygg, garasje og uthus i Mildevegen 92, Bergen

📍 Mildevegen 92 , 5259 HJELLESTAD

Nøkkelinfo

Sakstype
Tilbygg
Bygningstype
Enebolig
Bruksareal
322 m²
Boenheter
1
Kommune
Bergen
Fylke
Vestland
Gnr / Bnr
105 / 230
Saksnummer
BYGG-2026/11633
Fase
Under behandling

Om byggesaken

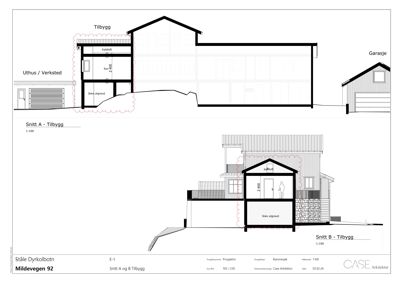
Ny tilbygg på 22 m² med arkitektonisk utforming tilpasset eksisterende enebolig, ny frittstående garasje på 46,8 m² med saltak, og nytt uthus/verksted på 44 m² med flatt tak. Terrengarbeider inkluderer fylling og terrengheving inntil 3 meter, med påfølgende terrasseplatting på 145,5 m². Garasjen har garasjeport og flere vinduer, uthuset har flere vinduer og en balkong. Tiltaket omfatter også delvis riving og retting av eksisterende altan, samt legalisering av allerede utførte tiltak. Bygningene er tilpasset terrenget og omkringliggende bebyggelse, med maksimal høyde på 7 meter for tilbygget, 5,25 meter for garasje og 2,9 meter for uthus. Eiendommens utnyttelsesgrad er 24 % av tomtearealet på 1349 m², i tråd med kommuneplanens bestemmelser.

Produkter og materialer

Tømrer Byggkonstruksjon

🧱 Tre

Tømrerarbeid for tilbygg, garasje og uthus

Konstruksjon og oppføring av bygninger i tre

Terrasse Terrasseplatting

🧱 Tre

Terrasseplatting på 145,5 m² på terrenghevet område

Utendørs terrasse på fylt og planert terreng

Maling Utvendig og innvendig maling

Maling av fasader og innvendige flater

Overflatebehandling for beskyttelse og estetikk

VVS Oppgradering slamavskiller

Oppgradering av slamavskiller til dagens krav

VVS-arbeid knyttet til avløpssystem på eiendommen

Fasade Trepanel fasade

🧱 Tre

Fasader i tre for tilbygg, garasje og uthus

Trepanel fasade tilpasset eksisterende enebolig og omkringliggende bebyggelse

Dører Ytterdør og garasjeport

🧱 Tre

Antall: 3

Ytterdør i uthus og garasje, samt garasjeport

Dører for adkomst til garasje og uthus

Grunnarbeid Terrengarbeid og fylling

Terrengheving inntil 3 meter, planering og fylling

Grunnarbeider for tilpasning av tomt og fundamentering

Betong Fundament og grunnmur

🧱 Betong

Fundamentering for tilbygg, garasje og uthus

Betongfundament og grunnmur for nye bygg

Vinduer Fasadevindu og balkongvindu

🧱 Tre/aluminium

Antall: 6

Vinduer i tilbygg, garasje og uthus, inkludert 1 balkongvindu på uthus

Vinduer tilpasset bygningenes arkitektur

Tak Saltak og flatt tak

🧱 Tegl takstein

Saltak på garasje og tilbygg, flatt tak med tegl på uthus

Taktekking med teglstein på saltak og flatt tak

Gulv Innvendige gulv

Innvendige gulv i tilbygg og uthus

Gulvbelegg og overflater i nye rom

Elektro Elektrisk installasjon

Elektriske installasjoner i tilbygg, garasje og uthus

El-installasjon for belysning og strøm i nye bygg

Fasader

Uthus

Vest
Materiale
Tre
Taktype
Flatt tak
Takmat.
Tegl
Høyde
5.3 m
Mønehøyde
18.2 m
Vinduer
1
Dører
0
Balkonger
1
Synlige etasjer
2
Øst
Materiale
Tre
Taktype
Flatt tak
Høyde
2.9 m
Vinduer
0
Dører
1
Synlige etasjer
1
Sør
Materiale
Tre
Taktype
Saltak
Takmat.
Tegl
Høyde
2.9 m
Mønehøyde
20.7 m
Vinduer
2
Dører
0
Synlige etasjer
1

Garasje

Øst
Materiale
Tre
Taktype
Saltak
Høyde
5.2 m
Mønehøyde
15.8 m
Vinduer
1
Dører
1
Synlige etasjer
1
Nord
Materiale
Tre
Taktype
Saltak
Høyde
4.8 m
Mønehøyde
15.8 m
Vinduer
2
Dører
0
Synlige etasjer
1

Hendelser

30.03.2026 Behov for tilleggsopplysninger, 105/230, Mildevegen 92
27.03.2026 Mildevegen 92 Supplering av søknad 105/230
16.03.2026 Bekreftelse på mottatt søknad - Behov for tilleggsopplysninger, 105/230, Mildevegen 92
10.03.2026 Bekreftelse på mottatt søknad
06.03.2026 Mildevegen 92 Søknad om rammetillatelse 105/230