Extension Rammetillatelse Enebolig

Utvidelse av terrasse og utvendige trapper på Morildveien 2

📍 Morildveien 2 , 9414 HARSTAD

Nøkkelinfo

Sakstype
Tilbygg
Bygningstype
Enebolig
Bruksareal
16 m²
Boenheter
1
Kommune
Harstad - Hárstták
Fylke
Troms - Romsa - Tromssa
Gnr / Bnr
51 / 947
Saksnummer
2025/5288
Fase
Rammetillatelse

Om byggesaken

Prosjektet omfatter utvidelse av eksisterende terrasse og oppføring av nye utvendige trapper til enebolig på Morildveien 2, Harstad. Terrassen utvides med et areal på ca. 16,25 m², og det bygges flere nye trapper i tre som gir adkomst til inngangspartiet utendørs. Bygningen er en trebygget enebolig med saltak, totalt ca. 227 m² fordelt på tre etasjer. Tiltaket er tilpasset eksisterende bygg og terreng, og følger reguleringsplan og kommuneplanens bestemmelser. Det er lagt vekt på god arkitektonisk helhetsvirkning og universell utforming der mulig. Tiltakshaver er selvbygger med lang erfaring som snekker og ansvarlig for alle funksjoner i prosjektet.

Produkter og materialer

Trapper Utvendig trapp i tre

🧱 Tre

Antall: 2

Nye utvendige trapper med høyde ca. 2,0-2,5 m, tilpasset eksisterende inngangsparti

Trapper for adkomst til terrasse og inngang, i tre med rekkverk

Fasade Tre kledning

🧱 Tre

Eksisterende trefasade med saltak, tilpasning ved terrasseutvidelse

Materialer for eventuell tilpasning av fasade ved terrasseutvidelse

Terrasse Utvidet terrasse i tre

🧱 Tre

Terrasseutvidelse på ca. 16,25 m², tilpasset eksisterende terrasse og terreng

Materialer og konstruksjon for utvidelse av terrasse i tre, inkludert fundamentering og overflatebehandling

Tømrer Montering av terrasse og trapper

Utførelse av terrasseutvidelse og trapper av tiltakshaver selvbygger med snekkererfaring

Tømrerarbeid for montering av terrasse og trapper

Grunnarbeid Fundamentering for terrasse og trapper

Fundamentering iht. gjeldende byggtekniske krav og NVE veileder for kvikkleiresikring

Grunnarbeid for å sikre stabilitet for terrasse og trapper

Plantegning

Enebolig 227.1 m²

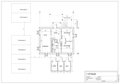
Etasje 1 108.5 m²

Rom Areal Vinduer Dører
STUE STUE 22.4 m² 1 1
KJØKKEN KJØKKEN 10.5 m² 1 1
GANG GANG 6.8 m² 0 2
BAD BAD 5.8 m² 0 1
SOVEROM SOVEROM 9.3 m² 1 1
SOVEROM SOVEROM 7.1 m² 1 1
BOD BOD 2.6 m² 0 1
BOD BOD 2.7 m² 0 1
BOD BOD 2.7 m² 0 1

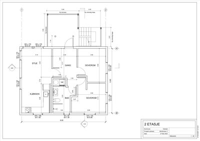
Etasje 2 52.8 m²

Rom Areal Vinduer Dører
STUE 201 10.0 m² 2 1
KJØKKEN 202 11.0 m² 1 1
GANG 203 7.0 m² 0 2
BAD 204 5.0 m² 0 1
SOVEROM 205 9.0 m² 1 1
SOVEROM 206 10.8 m² 1 1

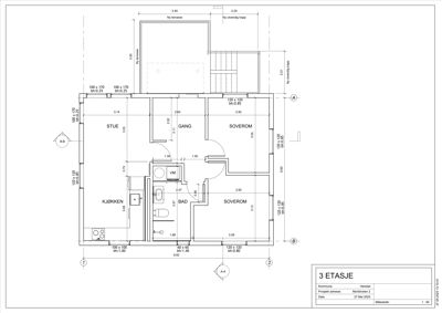
Etasje 3 65.8 m²

Rom Areal Vinduer Dører
STUE 301 9.4 m² 2 1
KJØKKEN 302 10.5 m² 1 1
GANG 303 7.6 m² 0 2
BAD 304 8.7 m² 0 1
SOVEROM 305 9.5 m² 1 1
SOVEROM 306 9.5 m² 1 1

Fasader

Eksisterende bygg

Nord
Materiale
Tre
Høyde
4.8 m
Mønehøyde
9.0 m
Vinduer
4
Dører
1
Balkonger
2
Synlige etasjer
3
Vest
Materiale
Tre
Taktype
Saltak
Høyde
4.8 m
Mønehøyde
9.0 m
Vinduer
5
Dører
0
Synlige etasjer
3
Øst
Materiale
Tre
Taktype
Saltak
Høyde
4.8 m
Mønehøyde
9.0 m
Vinduer
4
Dører
0
Synlige etasjer
3

Ukjent

Øst
Materiale
Tre
Taktype
Pulttak
Høyde
2.7 m
Vinduer
0
Dører
0
Synlige etasjer
1

Hendelser

21.04.2026 Gbnr. 51/947 Morildveien 2 - Klage på dobbelt gebyr - Svarbrev
09.04.2026 Klage på dobbelt gebyr
03.10.2025 Gbnr. 51/947 Morildveien 2 - Tillatelse til tiltak - Utvidelse av terrasse og oppføring av utvendige trapper
22.09.2025 Oversendelse av tilleggsinformasjon
22.09.2025 Gbnr. 51/947 Morildveien 2 - Anmodning om tilleggsinformasjon
15.07.2025 Gbnr 51/947 Morildveien 2 - Foreløpig svar - Melding om saksbehandlingstid
30.05.2025 Søknad om utvidelse av terrasse og bygging av utvendige trapper