Extension Soeknad Enebolig

Tilbygg og rehabilitering av enebolig på Muusøya 36, Drammen

📍 Muusøya 36 , 3023 DRAMMEN

Nøkkelinfo

Sakstype
Tilbygg
Bygningstype
Enebolig
Bruksareal
185 m²
Boenheter
2
Kommune
Drammen
Fylke
Buskerud
Gnr / Bnr
116 / 431
Saksnummer
26/02158
Fase
Søknad

Om byggesaken

Ny moderne tilbygg på 47 m² erstatter eldre tilbygg/anneks som rives, og hovedhuset fra 1882 med tilbygg fra 1956 bevares og moderniseres. Tilbygget trekkes inn fra eiendomsgrensen for bedre lys og luft, og har hevet gulvhøyde for flomsikring. Totalt areal etter tiltak er ca. 185 m² BYA med 2 boenheter. Fasadeendringer gir et estetisk løft med klassisk uttrykk mot vei og moderne tilbygg i bakgrunnen. Det planlegges også ombygging av innvendig trapp og bad, samt etterisolering og kledningsbytte. Tiltaket inkluderer også terrasser og opparbeidet uteareal med god grønn overflatefaktor for overvannshåndtering.

Arbeidsomfang

- Tilbygg (ny lbygg) i enebolig - Rehabilitering av hoveddel av bygningen - Opparbeidelse av uteoppholdsareal (MUA) i to plan - Justering av situasjonsplan for å sikre overholdelse av byggegrense mot vassdrag - Fasadeendring og ombygning av terrasse i byggegrensen for vassdrag er trukket fra denne søknaden

Produkter og materialer

Dører Ytterdører og terrassedører

🧱 Tre

Antall: 7

Ytterdører og terrassedører i tre, inkludert inngangsdør og dør til terrasse

Nye ytterdører og terrassedører i tilbygg og eksisterende bygg

Terrasse Terrasse i to plan

🧱 Tre

Antall: 1

Terrasse på 14.5 m² i 1. etasje, delvis innglasset, med takreduksjon i 2. etasje

Oppgradering og ombygging av terrasse i tilknytning til bolig

Tak Saltak og flatt tak

🧱 Taktekking ikke spesifisert

Saltak på hovedhus og tilbygg, flatt tak på deler av eksisterende bygg

Taktekking og takarbeid i forbindelse med tilbygg og rehabilitering

Isolasjon Etterisolering av vegger

Etterisolering av eksisterende vegger i mellombygget og tilbygg

Bedre termisk standard og energieffektivitet

Fasade Trepanel kledning

🧱 Tre

Ny kledning og etterisolering i tre, tilpasset eksisterende fasade og nytt tilbygg

Fasadeoppgradering med ny kledning og isolasjon

Grunnarbeid Fundamentering og drenering

Støpt dekke i nytt tilbygg hevet 20 cm for flomsikring

Grunnarbeid for nytt tilbygg med flomsikringstiltak

VVS Sanitær og drenering

Drenering av takvann og overvann på egen tomt, ikke tilkobling til kommunalt nett

Overvannshåndtering og drenering i tråd med kommunale krav

Vinduer Fasadevindu

🧱 Tre

Antall: 14

Nye vinduer i tilbygg og fasadeendringer, trevinduer i moderne og klassisk stil

Nye fasadevinduer i tilbygg og rehabiliterte deler for bedre lysinnslipp og estetikk

Bad Bad med sanitærutstyr

Antall: 2

Oppgradering og flytting av bad i mellombygget og 2. etasje

Modernisering av bad med nytt utstyr og planløsning

Trapper Innvendig trapp i L-form

🧱 Tre

Antall: 2

Ny trapp i mellombygget, bredere og med bedre stigning enn eksisterende smal og bratt trapp

Ombygging av innvendig trapp for bedre tilgjengelighet og sikkerhet

Maling Utvendig maling

Maling av fasade i klassisk hvit på gammel del og mørkere farger på tilbygg

Fasadebehandling for estetisk løft og vern av bygning

Kjøkken Kjøkkeninnredning

Antall: 2

Bevaring av to kjøkken i henhold til eksisterende boenheter

Oppgradering av kjøkkeninnredning i begge boenheter

Gulv Innvendige gulv

🧱 Ikke spesifisert

Heving av gulv i mellombygget for flomsikring og bedre termisk evne

Gulvoppgradering og isolasjon i eksisterende og nytt bygg

Elektro Bygningsinstallasjoner

Oppgradering av elektriske installasjoner i tilbygg og rehabiliterte deler

Elektrisk anlegg i henhold til gjeldende forskrifter

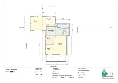
Plantegning

Enebolig 326.6 m²

Etasje 1 146.6 m²

Rom Areal Vinduer Dører
Dagligrom 101 25.6 m² 2 1
Soverom 102 10.4 m² 1 1
Mottakelsesrom 103 16.8 m² 0 2
Bad 104 5.6 m² 0 1
Kjøkken 105 8.7 m² 0 1
Soverom 106 10.0 m² 1 1
Dagligrom 107 28.1 m² 1 1
Terrasse 108 14.5 m² 0 1
Stue 0 0.0 m² 0 2

Etasje 2 120.0 m²

Rom Areal Vinduer Dører
Oppholdsrom 201 25.6 m² 3 1
Soverom 202 10.4 m² 1 1
Dagligrom 203 16.2 m² 0 2
Bad 204 6.0 m² 0 1
Kjøkken 205 8.7 m² 0 1
Oppholdsrom 206 38.6 m² 2 1

Etasje 0 60.0 m²

Rom Areal Vinduer Dører
Teknisk rom 001 15.0 m² 0 1
Vaskerom 002 10.0 m² 0 1
Gang 003 10.0 m² 0 2
Teknisk rom 004 25.0 m² 0 1

Fasader

Enebolig

Nordvest
Materiale
Tre
Taktype
Saltak
Høyde
2.5 m
Vinduer
0
Dører
0
Synlige etasjer
2
Mot vei
Materiale
Tre
Taktype
Saltak
Vinduer
4
Dører
1
Synlige etasjer
2
Mot gårdsplass
Materiale
Tre
Taktype
Saltak
Vinduer
4
Dører
1
Synlige etasjer
2
Vest
Materiale
Tre
Taktype
Saltak
Vinduer
6
Dører
1
Balkonger
1
Synlige etasjer
2
Øst
Materiale
Tre
Taktype
Saltak
Vinduer
2
Dører
0
Balkonger
1
Synlige etasjer
2
Nord
Materiale
Tre
Taktype
Flatt tak
Høyde
2.5 m
Vinduer
5
Dører
2
Synlige etasjer
2
Sør
Materiale
Tre
Taktype
Flatt tak
Vinduer
10
Dører
2
Balkonger
2
Synlige etasjer
2
Nordøst
Materiale
Tre
Taktype
Saltak
Vinduer
4
Dører
1
Synlige etasjer
2

Høel's Hus

Ukjent
Materiale
Tre
Taktype
Saltak
Vinduer
6
Dører
2
Balkonger
1
Synlige etasjer
2

Hendelser

31.03.2026 Muusøya 36, tidligere oversendte nabomerknader
23.03.2026 Muusøya 36 Supplering av søknad 116/431 søknad
24.02.2026 Muusøya 36, vi trenger flere opplysninger for å behandle søknaden din søknad
09.02.2026 Muusøya 36, merknad til nabovarsel nabovarsel
23.01.2026 Muusøya 36, melding om mottatt søknad søknad
22.01.2026 Muusøya 36 Søknad om rammetillatelse 116/431 rammetillatelse