Extension UnderBehandling Enebolig

Tilbygg og påbygg til enebolig i Myraledbakken 3, Ålesund

📍 Myraledbakken 3 , 6009 ÅLESUND

Nøkkelinfo

Sakstype
Tilbygg
Bygningstype
Enebolig
Bruksareal
282 m²
Boenheter
1
Kommune
Ålesund
Fylke
Møre og Romsdal
Gnr / Bnr
139 / 136
Saksnummer
2025/13711
Fase
Under behandling

Om byggesaken

Ny tilbygg og påbygg til eksisterende enebolig på Myraledbakken 3 i Ålesund. Prosjektet inkluderer et tilbygg mot nord med nytt inngangsparti og entré, heving og utvidelse av garasjetak for høyere bil, samt utvidelse av garasje mot vest. Det bygges også en hagebod mot sør og kjørearealet på gårdsplassen utvides. Bygningens bruksareal økes med 106 m² fra 176 til 282 m². Tilbygget har flatt tak, mens eksisterende saltak videreføres. Fasaden er i tre med dobbelfalset panel, og eksisterende trekledning og farge videreføres. Det er én trapp i bygget, og utebod på 7,7 m². Overvann håndteres med utkast til terreng, og tiltaket inkluderer dispensasjoner for utnyttelsesgrad, byggegrense mot veg og antall etasjer.

Produkter og materialer

Vinduer Fasadevindu

🧱 Tre/aluminium, 3-lags energiglass

Antall: 27

Vinduer i fasade, inkludert nye vinduer i tilbygg og påbygg

Nye og eksisterende vinduer i fasade, energiglass for isolasjon

Tak Saltak og flatt tak

🧱 Stålplatetak og flatt takkonstruksjon

Eksisterende stålplatetak videreføres, nytt flatt tak på påbygg

Tak med kombinasjon av eksisterende saltak og nytt flatt tak på påbygg

Bad Baderomsinnredning

Antall: 2

To bad i huset, oppgradering kan forventes i tilbygg/påbygg

Baderomsinnredning og sanitærutstyr i bad

Garasjeport Garasjeport

Antall: 1

Garasjeport i eksisterende garasje som utvides og takheves

Garasjeport tilpasset utvidet og hevet garasje

Gulv Innvendige gulv

Ikke spesifisert, men vanlig med parkett eller fliser i bolig

Innvendige gulv i tilbygg og påbygg

Dører Ytterdører og boddør

🧱 Tre med glassfelt

Antall: 7

Hovedinngangsdør, boddør og dører til utebod og garasje

Ytterdører i tre med glassfelt for lysinnslipp

Grunnarbeid Drenering og overvannshåndtering

Overvann føres til terreng, redegjørelse for overvannshåndtering er utarbeidet

Tiltak for håndtering av overvann og drenering på tomt

Trapper Innvendig trapp

🧱 Tre

Antall: 1

Innvendig trapp mellom etasjer

Innvendig trapp i L-form eller rettløp, ikke detaljert

Betong Grunnmur og fundament

🧱 Plasstøpt betong

Fundament og grunnmur for tilbygg og påbygg

Plasstøpte betongkonstruksjoner for fundament og grunnmur

Rekkverk Rekkverk til terrasse og trapper

Rekkverk til trapper og eventuelle terrasser, ikke detaljert i dokumenter

Sikkerhetsrekkverk for trapper og uteområder

Annet Utebod

🧱 Tre

Antall: 1

Utebod på 7,7 m² i tilknytning til bolig

Utebod for lagring og hageutstyr

Terrasse Terrassegulv

Terrasse er vist på situasjonsplan, materiale ikke spesifisert

Terrassegulv i tilknytning til bolig

Tømrer Trekonstruksjoner

🧱 Tre

Montering av trekonstruksjoner for tilbygg og påbygg

Tømrerarbeid for trekonstruksjoner i tilbygg og påbygg

Fasade Trekledning

🧱 Dobbelfalset panel i tre

Eksisterende trekledning og farge videreføres

Fasade i tre med dobbelfalset panel som matcher eksisterende kledning

VVS Sanitæranlegg

Eksisterende sanitæranlegg beholdes, ingen nye vann- eller avløpsinstallasjoner i tilbygg

Ingen nye vann- eller avløpsinstallasjoner planlagt i tilbygg

Elektro Elektrisk installasjon

Elektriske installasjoner i tilbygg og påbygg, ikke detaljert i dokumenter

Elektriske installasjoner for nytt tilbygg og påbygg

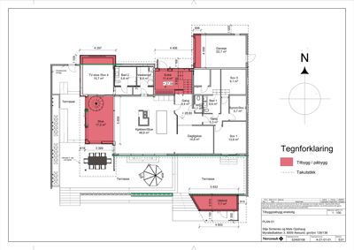
Plantegning

Enebolig 408.3 m²

Etasje 1 270.6 m²

Rom Areal Vinduer Dører
Entré 101 11.4 m² 0 2
Gang 102 9.4 m² 0 2
Gang 103 5.3 m² 0 1
WC 104 1.7 m² 0 1
Bad 1 105 9.6 m² 0 1
Sov 1 106 13.8 m² 1 1
Syrom/Sov 2 107 5.7 m² 1 1
Sov 3 108 9.1 m² 1 1
Kjøkken/Stue 109 48.6 m² 2 1
Stue 110 17.2 m² 1 0
TV-stue/Sov 4 111 15.7 m² 1 1
Bad 2 112 5.6 m² 0 1
Vaskerom 113 6.6 m² 0 1
Dagligstue 114 14.6 m² 1 1
Garasje 115 22.7 m² 1 1
Utebod 116 7.7 m² 0 1

Etasje 2 137.7 m²

Rom Areal Vinduer Dører
Sov 5 Sov 5 13.6 m² 1 1
Lesekrok Lesekrok 14.5 m² 1 1
Musikk / Sov 6 Musikk / Sov 6 109.6 m² 1 1

Fasader

Enebolig

Nord
Materiale
Tre
Taktype
Saltak
Vinduer
5
Dører
2
Synlige etasjer
2
Sør
Materiale
Tre
Taktype
Saltak
Vinduer
6
Dører
2
Synlige etasjer
2
Øst
Materiale
Tre
Taktype
Saltak
Vinduer
4
Dører
1
Synlige etasjer
2
Vest
Materiale
Tre
Taktype
Saltak
Vinduer
4
Dører
1
Synlige etasjer
2

Hendelser

17.04.2026 Gbnr. 139/136 - Tilbakemelding til spørsmål om status - Myraledbakken 3 - Tilbygg og påbygg
19.03.2026 Gbnr. 139/136 - Uttalelse - Myraledbakken 3 - Tilbygg og påbygg
16.03.2026 Gbnr. 139/136 - Oversender søknad til uttalelse - Myraledbakken 3 - Tilbygg og påbygg
06.03.2026 Gbnr. 139/136 - Kopi - Myraledbakken 3 - Svar på nabovarsel for tilbygg og påbygg til eksisterende enebolig
03.03.2026 Gbnr. 139/136 - Supplering av søknad - Myraledbakken 3 - Tilbygg og påbygg
03.02.2026 Gbnr. 139/136 - Korrespondanse - Myraledbakken 3 - Tilbygg og påbygg
30.01.2026 Gbnr. 139/136 - Tilbakemelding om mangler - Myraledbakken 3 - Tilbygg og påbygg
30.01.2026 Gbnr. 139/136 - Spørmål om referanse - Myraledbakken 3 - Tilbygg og påbygg
20.01.2026 Gbnr. 139/136 - Supplering av søknad - Myraledbakken 3 - Tilbygg og påbygg
19.01.2026 Gbnr. 136/139 - Søknad om rammetillatelse - Myraledbakken 3 - Tilbygg og påbygg
19.09.2025 Gbnr. 139/136 - Merknad til kommunen - Svar på nabovarsel - Myraledbakken 3 - Tilbygg og påbygg