Extension UnderBehandling Enebolig

Tilbygg, bruksendring og ny garasje på Myrberget 8, Ålesund

📍 Myrberget 8 , 6020 ÅLESUND

Nøkkelinfo

Sakstype
Tilbygg
Bygningstype
Enebolig
Bruksareal
225 m²
Boenheter
1
Kommune
Ålesund
Fylke
Møre og Romsdal
Gnr / Bnr
17 / 269
Saksnummer
2025/8151
Fase
Under behandling

Om byggesaken

Prosjektet omfatter riving av eksisterende garasje på østsiden av eneboligen og oppføring av et nytt tilbygg med to soverom på hovedplan og lagringsplass i underetasjen. På vestsiden bygges et tilbygg med ny garasje og hagestue på hovedplan. Kjelleren i eksisterende bolig gjennomgår bruksendring fra bod/blindkjeller til oppholdsrom, bad og vaskerom. Ny garasje oppføres med flatt tak og garasjeport, og det etableres ny avkjørsel med utvidet bredde mot kommunal vei. Fasadeendringer inkluderer nye fasader i tre med saltak og flatt tak på garasje. Totalt areal for eneboligen er ca. 183 m², med tilbygg på ca. 108 m² og parkeringsareal på 18 m². Prosjektet inkluderer også utomhus biloppstillingsplass og tilpasning av overvannshåndtering.

Produkter og materialer

Fasade Trepanel fasade med saltak og flatt tak

🧱 Tre

Fasade sør, øst, vest og nord i tre med saltak; garasje med flatt tak

Trepanel fasade på enebolig og garasje med saltak og flatt tak

Maling Innvendig og utvendig maling

Maling av fasader i tre og innvendige overflater

Maling av trefasader og innvendige flater

Betong Ringmur og støttemur

🧱 Betong

Ringmur til garasje og hagestue, støttemur iht. tegninger

Betong ringmur og støttemur for tilbygg og garasje

Elektro Elektrisk installasjon

Elektrisk installasjon i tilbygg og garasje iht. gjeldende krav

Elektroinstallasjon for nytt tilbygg og garasje

Garasjeport Port til ny garasje

Antall: 1

Garasjeport trukket inn i fasadelivet med 6m avstand til veg

Garasjeport til ny garasje

Bad Bad med membran og støp

Antall: 2

Bad i kjeller og 1. etasje med membran og støp

Bad med membran og støp i kjeller og 1. etasje

Trapper Innvendig trapp

Antall: 1

Innvendig trapp i enebolig

Eksisterende innvendig trapp i enebolig

VVS Innvendig sanitærinstallasjon

Bruksendring i kjeller fra bod til bad, vask og oppholdsrom, ingen endring i sanitærinstallasjon

VVS-arbeider for bad, vaskerom og oppholdsrom i kjeller

Grunnarbeid Drenering og overvannshåndtering

Overvann håndteres via infiltrasjon/fordrøyning på egen grunn, grunnarbeid omfatter dette

Grunnarbeid med drenering og overvannshåndtering iht. plan- og bygningsloven § 28-10

Terrasse Hagestue og uteplass

🧱 Tre

Hagestue på hovedplan i tilbygg på vestsiden

Terrasse/hagestue i tilbygg

Dører Ytterdører og garasjeport

🧱 Tre og metall

Antall: 9

Ytterdører i tre til bolig og garasjeport til ny garasje

Ytterdører til bolig og garasjeport til ny garasje

Vinduer Fasadevindu i tre

🧱 Tre

Antall: 18

Vinduer fordelt på eneboligens etasjer og garasje, inkludert 2 vinduer på garasje

Nye vinduer i tre i enebolig og garasje

Gulv Innvendige gulvflater

Gulv i tilbygg og eksisterende bolig, inkludert vaskerom og bad

Innvendige gulvflater i bolig og tilbygg

Tømrer Bygging av tilbygg og garasje

🧱 Tre

Tilbygg med soverom, lagringsplass, hagestue og ny garasje

Tømrerarbeid for tilbygg og ny garasje

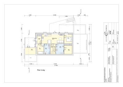
Plantegning

Enebolig 183.0 m²

Etasje 0 120.5 m²

Rom Areal Vinduer Dører
Bod U01 8.1 m² 0 1
Sov U02 7.8 m² 1 1
Bad U03 6.8 m² 0 1
Gang U04 4.4 m² 0 1
Kjøkken/Stue U05 22.8 m² 2 1
Sov U06 9.7 m² 1 1
Gang/Trapp U07 6.1 m² 0 1
Vask U08 9.3 m² 1 1
Bod U09 7.8 m² 1 1
Bod 001 15.0 m² 0 1
Bod 002 15.0 m² 0 1
M.Bod 003 10.0 m² 0 1
Disp. 004 12.5 m² 0 1
Disp. 005 12.5 m² 0 1
EV. Vask 006 2.0 m² 0 1
EV. Vifte 007 2.0 m² 0 1

Etasje 1 62.5 m²

Rom Areal Vinduer Dører
Stue 101 28.0 m² 3 1
Kjøkken 102 9.0 m² 1 1
Soverom 103 10.5 m² 1 1
Soverom 104 7.1 m² 1 1
Soverom 105 10.5 m² 1 1
Bad 106 6.0 m² 0 1
WC 107 2.0 m² 0 1
Entre 108 2.0 m² 0 0
Vindfang 109 2.0 m² 1 1

Fasader

Garasje

Nord
Taktype
Flatt tak
Vinduer
2
Dører
1
Synlige etasjer
1

Enebolig

Sør
Materiale
Tre
Taktype
Flatt tak
Høyde
3.9 m
Mønehøyde
6.4 m
Vinduer
6
Dører
1
Balkonger
1
Synlige etasjer
2
Øst
Materiale
Tre
Taktype
Saltak
Høyde
3.9 m
Mønehøyde
6.4 m
Vinduer
2
Dører
1
Balkonger
1
Synlige etasjer
2
Vest
Materiale
Tre
Taktype
Saltak
Høyde
3.9 m
Mønehøyde
6.4 m
Vinduer
2
Dører
1
Synlige etasjer
2
Nord
Materiale
Tre
Taktype
Saltak
Høyde
3.9 m
Mønehøyde
6.4 m
Vinduer
3
Dører
1
Synlige etasjer
2

Carport

Øst
Materiale
Tre
Taktype
Saltak
Høyde
2.0 m
Vinduer
2
Dører
1
Balkonger
1
Synlige etasjer
2

Hendelser

17.04.2026 Gbnr. 17/269 - Supplering av søknad - Myrberget 8 - Fasade- og bruksendring
17.04.2026 Gbnr. 17/269 - Supplering av søknad - Myrberget 8 - Fasade- og bruksendring
17.04.2026 Gbnr. 17/269 - Supplering nabosamtykke - Myrberget 8 - Fasade- og bruksendring
14.04.2026 Kopi - Gbnr. 17/269 - Myrberget 8 - Dispensasjon fra byggegrense mot veg og flytting av avkjørsel - Underretning om vedtak fra kommunens klagenemnd
17.07.2025 Gbnr. 17/269 - Avklaring sak - Bruks - og fasadeendring
17.07.2025 Gbnr. 17/269 - Oversender søknad om avkjørsel og dispensasjon til behandling - Myrberget 8 - Fasade- og bruksendring
10.07.2025 Gbnr. 17/269 - Myrberget 8 - Tilbygg/avkjørsel - Vedtak om dispensasjon fra veglovas byggegrense mot veg og flytting av avkjørsel - Avslag
30.06.2025 Gbnr. 17/269 - Mangelbrev - Myrberget 8 - Fasade- og bruksendring
17.06.2025 Gbnr. 17/269 - Supplering av søknad - Myrberget 8 - Fasade- og bruksendring, riving og oppføring av ny garasje med ny avkjørsel . Bruksendring i kjeller fra bod til oppholdsrom og bad/vask
11.06.2025 Gbnr. 17/269 - Søknad om rammetillatelse - Myrberget 8 - Fasade- og bruksendring, riving og oppføring av ny garasje med ny avkjørsel . Bruksendring i kjeller fra bod til oppholdsrom og bad/vask