Extension UnderBehandling Enebolig

Ombygging og tilbygg med garasje i Myrlandsvegen 8A, Ålesund

📍 Myrlandsvegen 8A , 6020 ÅLESUND

Nøkkelinfo

Sakstype
Tilbygg
Bygningstype
Enebolig
Bruksareal
214 m²
Boenheter
1
Kommune
Ålesund
Fylke
Møre og Romsdal
Gnr / Bnr
15 / 97
Saksnummer
2025/3017
Fase
Under behandling

Om byggesaken

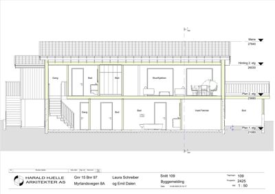
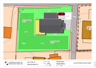
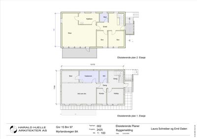
Prosjektet omfatter omfattende ombygging av en eksisterende enebolig fra 1969 på Myrlandsvegen 8A i Ålesund. Det bygges et tilbygg med ny garasje på 34 m² på nordsiden av boligen, ny terrasse på 42 m² mot vest, samt en utvendig trapp på 8 m². Det oppføres også et nytt gjerde langs veien med høyde 1,2 meter. Ombyggingen inkluderer fasadeendringer med utskifting og forstørrelse av vinduer for bedre isolasjon og dagslys, samt bruksendring av rom i underetasjen fra tilleggsdel til hoveddel. Totalt bebygd areal etter utbygging blir 214 m², med en grad av utnytting på 21 % av tomten på 1014 m². Garasjen og trappen er delvis avvist i dispensasjonssøknad, men senere klage har ført til omgjøring av avslaget for garasjen. Bygningen har to etasjer med flatt tak på nordfasaden og saltak på øvrige fasader, og fasadene er i tre med moderne arkitektonisk uttrykk.

Produkter og materialer

Fasade Dører

🧱 Tre eller tilsvarende

Antall: 5

Ytterdører i fasade, inkludert dør til garasje

Nye ytterdører i fasaden og garasjeport

Fasade Gjerde

🧱 Tre eller metall, høyde 1,2 m over vei

Antall: 1

Nytt gjerde langs vei, 28 m og 14 m lengde, midlertidig godkjent

Oppføring av gjerde for skjerming mot trafikk, må tåle vedlikehold og snøbrøyting

Fasade Vinduer

🧱 Tre/aluminium med 3-lags energiglass

Antall: 11

Større vinduer med bedre isolasjon, proporsjonert for fasadens høyde og bredde

Utskifting og forstørrelse av eksisterende vinduer for bedre dagslys og isolasjon

Terrasse Ny terrasse i tre

🧱 Treverk

Antall: 1

Ny terrasse på 42 m² vest for eksisterende bolig

Oppføring av ny terrasse med tilhørende utvendig trapp

Isolasjon Isolasjon i vegger og tak

Isolasjon i nye vegger og tak for å oppnå dagens energikrav

Isolasjon i tilbygg og ombygde deler av boligen

Tømrer Bygningskonstruksjoner i tre

🧱 Treverk

Oppføring av tilbygg, terrasse, trapp og gjerde i tre

Tømrerarbeid for tilbygg, terrasse, trapp og gjerde

VVS Vannledning

Nytt vannrør legges vest for ny garasje, eksisterende vanninntak flyttes

Oppgradering og flytting av vanninntak i forbindelse med garasje

Grunnarbeid Terrengarbeid og fundamentering

Terrenginngrep for garasje, terrasse og trapp, inkl. heving av garasjegulv 30 cm

Grunnarbeid for tilbygg, terrasse og trapp, inkl. fundamentering

Garasjeport Garasjeport i tre/aluminium

Antall: 1

Garasjeport til ny garasje på 34 m²

Port til ny garasje som tilbygg på nordsiden

Maling Utvendig og innvendig maling

Maling av fasader, vinduskarmer og innvendige flater

Overflatebehandling av nye og ombygde flater

Elektro Elektrisk anlegg

Oppgradering av elektrisk anlegg i forbindelse med ombygging og tilbygg

Elektrisk installasjon i ny garasje, terrasse og bolig

Tak Saltak og flatt tak

🧱 Taktekking i henhold til eksisterende og ny plan

Saltak på øst, sør og vestfasade, flatt tak på nordfasade

Nytt tak på tilbygg og ombygging av eksisterende takflater

Trapper Utvendig trapp i tre

🧱 Treverk

Antall: 1

Utvendig trapp på 8 m² til terrasse, delvis avvist i dispensasjon

Ny utvendig trapp til terrasse, plassering under vurdering

Gulv Innvendige gulvflater

🧱 Eikeparkett eller tilsvarende

Oppgradering av gulv i ombygde rom, inkludert bad og vaskerom

Nye gulvflater i ombygde og tilbyggede rom

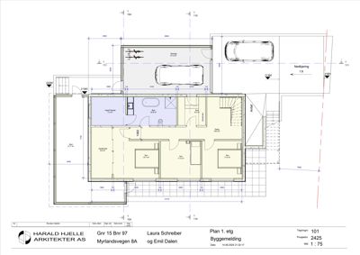
Plantegning

Enebolig 399.7 m²

Etasje 1 203.6 m²

Rom Areal Vinduer Dører
Gang 101 18.5 m² 0 3
Sov 102 14.7 m² 0 1
Sov 103 11.5 m² 0 1
Sov 104 11.5 m² 0 1
Garderobe 105 8.0 m² 0 1
Garderobe 106 6.0 m² 0 1
Bod 107 31.7 m² 0 1
Vask/Teknisk 108 7.4 m² 0 1
Bad 109 10.8 m² 0 1
Bod 110 31.4 m² 0 1

Etasje 2 196.1 m²

Rom Areal Vinduer Dører
Stue/Kjøkken 201 49.2 m² 3 1
TV-stue 202 11.2 m² 1 1
Kontor 203 8.8 m² 1 1
Gang 204 10.9 m² 0 2
Entré 205 4.5 m² 0 1
Kjølerom 206 1.9 m² 0 1
Bad 207 6.2 m² 0 1
Bod 208 2.6 m² 0 1

Fasader

Enebolig

Nord
Materiale
Tre
Taktype
Flatt tak
Høyde
6.0 m
Mønehøyde
7.8 m
Vinduer
2
Dører
1
Balkonger
1
Synlige etasjer
2
Øst
Materiale
Tre
Taktype
Saltak
Høyde
6.0 m
Mønehøyde
7.8 m
Vinduer
0
Dører
2
Balkonger
1
Synlige etasjer
2
Sør
Materiale
Tre
Taktype
Saltak
Høyde
6.5 m
Mønehøyde
8.2 m
Vinduer
5
Dører
1
Balkonger
1
Synlige etasjer
2
Vest
Materiale
Tre
Taktype
Saltak
Høyde
6.5 m
Mønehøyde
8.2 m
Vinduer
2
Dører
0
Balkonger
1
Synlige etasjer
2

Hendelser

17.04.2026 Gbnr. 15/97 - Tilbakemelding - Myrlandsvegen 8A - Ombygging av enebolig, ny terrasse og utvendig trapp samt tilbygg med garasje og nytt gjerde
14.04.2026 Kopi - Gbnr. 15/97 - Myrlandsvegen 8A - Dispensasjon fra byggegrense - Underretning om vedtak fra kommunens klagenemnd
07.01.2026 Gbnr. 15/97 - Klage på vedtak - REF 2517638, 25144604
23.12.2025 Kopi - Gbnr. 15/97 - Vedtak om dispensasjon frå byggegrense mot veg - Myrlandsvegen 8A - Garasje, gjerde og terrasse
03.09.2025 Gbnr. 15/97 - Fortsatt mangler ved søknad - Myrlandsvegen 8A - Ombygging av enebolig, ny terrasse og utvendig trapp samt tilbygg med garasje og nytt gjerde
03.09.2025 Gbnr. 15/97 - KV 7650 - Myrlandsvegen 8A - Søknad om dispensasjon fra byggegrense - tilbygg
03.09.2025 Gbnr. 15/97 - KV 7650 - Myrlandsvegen 8A - Søknad om dispensasjon fra byggegrense - tilbygg
22.08.2025 Gbnr. 15/97 - Svar på status - Myrlandsvegen 8A
21.08.2025 Gbnr. 15/97 - Spørsmål om status - Myrlandsvegen 8A
16.06.2025 Gbnr. 15/97 - Supplering av søknad - Myrlandsvegen 8A
27.05.2025 Gbnr. 15/97 - Tilbakemelding om mangler - Myrlandsvegen 8A - Ombygging av enebolig, ny terrasse og utvendig trapp samt tilbygg med garasje og nytt gjerde
14.03.2025 Gbnr. 15/97 - Søknad om rammetillatelse - Myrlandsvegen 8A - Ombygging av enebolig, ny terrasse og utvendig trapp samt tilbygg med garasje og nytt gjerde