Extension UnderBehandling Enebolig

Tilbygg, påbygg og bruksendring på enebolig i Nadderudveien 73

📍 Nadderudveien 73B , 1362 HOSLE

Nøkkelinfo

Sakstype
Tilbygg
Bygningstype
Enebolig
Bruksareal
81 m²
Boenheter
1
Kommune
Bærum
Fylke
Akershus
Gnr / Bnr
20 / 734
Saksnummer
2024/19380
Fase
Under behandling

Om byggesaken

Prosjektet omfatter tilbygg og påbygg til eksisterende enebolig i Nadderudveien 73, samt bruksendring i kjeller og oppføring av en underjordisk garasje. Tilbygget er plassert mot sørøst som en forlengelse av eksisterende bolig med saltak, og påbygget mot nordvest med saltak og trekledning. Garasjen er plassert under terreng mot nordøst med adkomst via rampe, og det etableres terrasse på terrengnivå. Bygget har to etasjer over bakken og kjeller med flere rom som stue, kjøkken, soverom og bad. Gesimshøyden er under 8 meter, og mønehøyden under 9 meter. Det er gitt dispensasjon for plassering nærmere vei og nabogrense enn normalt, med nabosamtykke. Terrengendringer er minimale, og vann- og avløpsledninger er hensyntatt i planleggingen.

Produkter og materialer

Gulv Innvendige gulvflater

Gulv i stue, kjøkken, soverom og bad

Innvendige gulvflater i tilbygg og påbygg

Garasjeport Underjordisk garasjeport

Antall: 1

Garasje under terreng med port og rampe

Underjordisk garasje med port og adkomst via rampe

Trapper Innvendig trapp

Antall: 1

Innvendig trapp mellom etasjer i eneboligen

Innvendig trapp i eneboligen for etasjeadkomst

Maling Innvendig og utvendig maling

Maling av fasader og innvendige overflater

Maling av trekledning og innvendige vegger

Ventilasjon Mekanisk ventilasjon

Ventilasjonsanlegg for bolig

Ventilasjonssystem for inneklima i tilbygg og påbygg

VVS Sanitærinstallasjoner

Innvendig sanitærinstallasjoner i kjeller og øvrige etasjer

VVS-installasjoner for bad, kjøkken og tekniske rom

Tømrer Bygningskonstruksjon

🧱 Tre

Tømrerarbeid for tilbygg og påbygg, inkludert takstoler og vegger

Tømrerarbeid for oppføring av tilbygg og påbygg

Elektro Elektriske installasjoner

Elektriske installasjoner i hele bygget

El-installasjoner for belysning, strøm og sikkerhet

Tak Saltak

Saltak med gesimshøyde under 8 meter og mønehøyde under 9 meter

Saltak på eksisterende bolig, tilbygg og påbygg

Grunnarbeid Terrengjustering og fundamentering

Terrengendringer mindre enn 1,5 meter, fundamentering for tilbygg og garasje

Grunnarbeid for tilbygg, påbygg og underjordisk garasje, inkl. terrengjustering

Vinduer Fasadevindu

🧱 Tre/Aluminium

Antall: 14

Vinduer i fasader nord-øst, sør-øst, sør-vest og nord-vest, antall 14

Fasadevinduer i ulike størrelser og plasseringer i tilbygget og påbygget

Betong Fundament og kjellervegger

🧱 Betong

Betongkonstruksjoner for kjeller, garasje og fundamenter

Betongarbeid for kjeller, underjordisk garasje og fundamenter

Rekkverk Terrasserekkverk

Rekkverk på terrasse

Sikkerhetsrekkverk på terrasse

Terrasse Terrasse på terrengnivå

Antall: 1

Terrasse/platting på terrengnivå mot sørvest

Terrasse på terrengnivå uten byggekonstruksjon under

Fasade Trekledning

🧱 Tre

Trekledning på tilbygg og påbygg, saltak

Trekledning som fasademateriale på tilbygget og påbygget med saltak

Dører Ytterdører og balkongdører

🧱 Tre/Glass

Antall: 4

Ytterdører og balkongdører i fasader, inkludert dør til terrasse

Ytterdører og balkongdører i tilbygget og påbygget

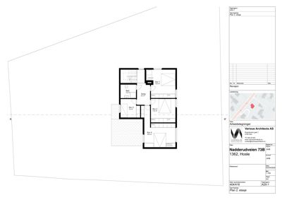
Plantegning

Enebolig 81.0 m²

Etasje 2 81.0 m²

Rom Areal Vinduer Dører
Sov 1 Sov 1 16.5 m² 0 1
Sov 2 Sov 2 13.0 m² 0 1
Sov 3 Sov 3 7.6 m² 0 1
Sov 4 Sov 4 19.9 m² 0 1
Gang Gang 6.2 m² 0 4
Bad Bad 4.8 m² 0 1
Sofakrok Sofakrok 0.0 m² 0 0

Fasader

Enebolig

Nord-Øst
Materiale
Tre
Taktype
Saltak
Høyde
8.2 m
Mønehøyde
119.5 m
Vinduer
4
Dører
1
Synlige etasjer
2
Sør-Øst
Materiale
Tre
Taktype
Saltak
Høyde
8.2 m
Mønehøyde
119.5 m
Vinduer
2
Dører
0
Synlige etasjer
1
Sør-Vest
Materiale
Tre
Taktype
Saltak
Høyde
6.5 m
Mønehøyde
8.2 m
Vinduer
4
Dører
1
Balkonger
1
Synlige etasjer
2
Nord-Vest
Materiale
Tre
Taktype
Saltak
Høyde
6.5 m
Mønehøyde
8.2 m
Vinduer
4
Dører
1
Synlige etasjer
2

Hovedbygg

Ukjent
Taktype
Saltak
Vinduer
0
Dører
0
Synlige etasjer
0

Hendelser

15.04.2026 Supplering av søknad - Nadderudveien 73 B - tilbygg - påbygg - bruksendring
14.04.2026 Supplering av søknad - Nadderudveien 73 B - tilbygg - påbygg - bruksendring
09.04.2026 Foreløpig svar på søknad om igangsetting - Nadderudveien 73 B - tilbygg - påbygg - bruksendring
25.03.2026 Igangsettingssøknad 1 - Nadderudveien 73 B - tilbygg - påbygg - bruksendring
25.03.2026 Supplering av søknad - Nadderudveien 73 B - tilbygg - påbygg - bruksendring
22.08.2025 Rammetillatelse med dispensasjon - Nadderudveien 73 B - tilbygg - påbygg - bruksendring
12.08.2025 Komplettering - Nadderudveien 73 B - påbygg og tilbygg
12.08.2025 Komplettering - Nadderudveien 73 B - påbygg og tilbygg
01.07.2025 Bekreftelse på mottatt søknad - behov for komplettering - Nadderudveien 73 B - påbygg og tilbygg
23.06.2025 Komplettering - Nadderudveien 73 B - påbygg og tilbygg
16.06.2025 Supplering av søknad - Nadderudveien 73 B - påbygg og tilbygg
10.06.2025 Komplettering - Nadderudveien 73 B - påbygg og tilbygg
05.06.2025 Komplettering - Nadderudveien 73 B - påbygg og tilbygg
02.05.2025 Tilbakemelding nr. 2 om behov for komplettering - Nadderudveien 73 B - påbygg og tilbygg
22.04.2025 Komplettering - Nadderudveien 73 B - påbygg og tilbygg