Extension Soeknad Enebolig

Oppgradering og modernisering av enebolig i Nedrevegen 21

📍 Nedrevegen 21 , 6710 RAUDEBERG

Nøkkelinfo

Sakstype
Tilbygg
Bygningstype
Enebolig
Bruksareal
150 m²
Boenheter
1
Kommune
Kinn
Fylke
Vestland
Gnr / Bnr
319 / 131
Saksnummer
2026/3901
Fase
Søknad

Om byggesaken

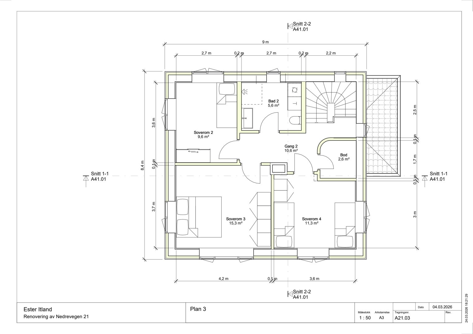
Oppgradering og modernisering av enebolig fra 1950-tallet i Nedrevegen 21. Tiltaket inkluderer endringer i planløsning, oppgradering av bad i alle etasjer, bruksendring i kjeller hvor bod omgjøres til soverom og bad, etterisolering og utskifting av vinduer med mindre fasadeendringer. Eksisterende terrasse oppgraderes og det etableres tak over inngangspartiet. Bygningens karakter og volum endres ikke vesentlig, og bærende konstruksjoner berøres kun i liten grad.

Produkter og materialer

Grunnarbeid Terrasse og uteområder

Oppgradering av terrasse og tilhørende grunnarbeid

Tak Tak over inngangsparti

Antall: 1

Etablering av tak over eksisterende inngangsparti

Isolasjon Etterisolering

Etterisolering av bygningskroppen for bedre energieffektivitet

Gulv Nye gulv i bad og soverom

Oppgradering av gulv i bad og nye soverom i kjeller

Bad Oppgradering bad i alle etasjer

Antall: 3

Oppgradering av bad i alle etasjer inkludert nytt bad i kjeller ved bruksendring

Vinduer Utskifting av vinduer

Vinduer skal byttes ut med mindre fasadeendringer

Nye vinduer for bedre isolasjon og energieffektivitet

Bruksendring Bod til soverom og bad i kjeller

Antall: 1

Ombygging av bod til soverom og bad i kjeller

Tømrer Montering av trekonstruksjoner

🧱 Trekonstruksjoner

Tømrerarbeid utført av fagperson med godkjenning i tiltaksklasse 1

Tømrerarbeid for tak over inngangsparti og øvrige bygningsarbeider

Elektro Elektrisk arbeid

Alt elektroarbeid utføres av autoriserte firma

Elektriske installasjoner i forbindelse med oppgradering

VVS Rørarbeid

Alt rørarbeid utføres av autoriserte firma

VVS-installasjoner i forbindelse med oppgradering av bad og kjeller

Fasade Mindre fasadeendringer

Mindre endringer i fasade i forbindelse med vindusutskifting og tak over inngangsparti

Oppgradering av fasade med mindre endringer

Terrasse Oppgradering av eksisterende terrasse

Antall: 1

Oppgradering og utgang til eksisterende terrasse

Hendelser

15.04.2026 Søknad om tillatelse i ett trinn gbnr 319/131
08.04.2026 Kopi av brev - Svar på nabovarsel - oppgradering bolig - gnr. 319/131 - Nedrevegen 21 - Kinn kommune