Extension UnderBehandling Enebolig

Tilbygg og fasadeendringer på enebolig i Nordmarkveien 19

📍 Nordmarkveien 19 , 8197 STORSELSØYA

Nøkkelinfo

Sakstype
Tilbygg
Bygningstype
Enebolig
Bruksareal
26 m²
Boenheter
1
Kommune
Rødøy
Fylke
Nordland - Nordlánnda
Gnr / Bnr
2 / 26
Saksnummer
2026/179
Fase
Under behandling

Om byggesaken

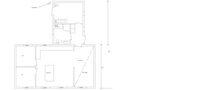
Ny tilbygg på 26,4 m² med gang, bad og vaskerom bygges på langsiden mot nord av en tidligere bedehusbygning som konverteres til fritidsbolig. Tilbygget har en bredde på 440 cm og en lengde på 600 cm, og det planlegges også en hems med tilhørende snittegninger. Eksisterende bygning får nye vinduer som tilsvarer de opprinnelige fra 1951, ny kledning på hele bygget, og fasadeendringer inkludert fjerning av toalettanlegg og nye vinduer i gavlveggen mot øst. Bygget har saltak og flatt tak i ulike fasader, og består av to etasjer med flere rom som stue, soverom, bad og hems. Prosjektet inkluderer også nødvendige tekniske installasjoner for bad og vaskerom.

Produkter og materialer

Trapper Innvendig trapp

Antall: 1

Trapp til hems

Innvendig trapp til hems i tilbygget

Dører Ytterdør

🧱 Tre

Antall: 3

Dører i fasadene øst, vest og bad

Ytterdører til eksisterende og nytt tilbygg

Bad Våtrom

Antall: 1

Bad og vaskerom i tilbygget med krav til rørleggerarbeid og våtromskompetanse

Bad og vaskerom med nødvendige VVS-installasjoner

Tak Saltak og flatt tak

Saltak på øst- og vestfasade, flatt tak på sørfasade og nordfasade (tilbygg)

Taktekking for eksisterende bygg og tilbygg

Vinduer Fasadevindu

🧱 Tre, tilsvarende opprinnelige fra 1951

Antall: 8

Nye vinduer lik de opprinnelige fra 1951, inkludert 5 vinduer på østfasade, 1 på vestfasade, 2 på nordfasade

Nye vinduer for fasadeendring og erstatning av toalettanlegg

VVS Avløps- og vanninstallasjon

Godkjent avløpsløsning for gråvann og svartvann må dokumenteres eller oppgraderes

Vann- og avløpsinstallasjoner for bad og vaskerom

Tømrer Bygging av tilbygg

🧱 Tre

Oppføring av tilbygg med gang, bad og vaskerom

Tømrerarbeid for tilbygg og fasadeendringer

Isolasjon Vegger og tak

Isolasjon i vegger og tak for tilbygget og eksisterende bygg

Isolasjon for energieffektivitet og komfort

Fasade Kledning

🧱 Tre

Ny kledning på hele bygget

Kledning til hele bygget for fasadeoppgradering

Grunnarbeid Fundamentering

Grunnarbeid for nytt tilbygg på 26,4 m²

Fundamentering og grunnarbeid for tilbygget

Maling Utvendig og innvendig

Maling av ny kledning og innvendige overflater

Maling for fasade og innvendige flater

Fasader

Enebolig

Vest
Taktype
Saltak
Vinduer
1
Dører
1
Synlige etasjer
2
Nord
Taktype
Flatt tak
Vinduer
2
Dører
0
Synlige etasjer
1
Øst
Materiale
Tre
Taktype
Saltak
Høyde
5.7 m
Vinduer
5
Dører
1
Balkonger
1
Synlige etasjer
2

Hovedbygg

Sør
Taktype
Flatt tak
Vinduer
4
Dører
0
Synlige etasjer
1

Hendelser

05.03.2026 Svar på byggesøknad for Nordmarkveien 19, gnr. 2, bnr. 26, 8197 Storselsøy i Rødøy
23.02.2026 Byggesøknad for Nordmarkveien 19, gnr. 2, bnr. 26, 8197 Storselsøy i Rødøy