Facade
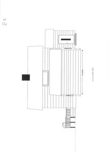
Fasadetegning (opprikk) av en bygning sett fra nord, med angitte mål for takhøyde og tomtegrenser.
1 / 12
Extension
UnderBehandling
Enebolig
Tilbygg med carport og terrasse på Ødegårdstoppen 13, Moelv
📍 Ødegårdstoppen 13 , 2390 MOELV
Nøkkelinfo
- Sakstype
- Tilbygg
- Bygningstype
- Enebolig
- Bruksareal
- 40 m²
- Boenheter
- 1
- Kommune
- Ringsaker
- Fylke
- Innlandet
- Gnr / Bnr
- 378 / 11
- Saksnummer
- 23/40381
- Fase
- Under behandling
Om byggesaken
Ny tilbygg til enebolig bestående av en carport med bebygd areal på 24 m² og en terrasse på 16 m². Tilbygget har trekledning og saltak, og er plassert inntil eksisterende bolig på eiendommen Ødegårdstoppen 13 i Moelv. Bygget har to etasjer på fasadene nord, sør og øst, og en etasje på vestfasaden. Fasaden har flere vinduer og dører, samt en balkong på sørsiden. Bygget skal oppføres i samsvar med godkjent situasjonsplan og gjeldende reguleringsplan.
Produkter og materialer
Grunnarbeid
Fundamentering og grunnarbeid
Grunnarbeid for carport og terrasse
Terrasse
Terrasse med tredekke
🧱 Tre
Antall: 1
Terrasse med bebygd areal 16 m²
Tak
Saltak
Saltak på tilbygget
Saltak på tilbyggets takflater
Tømrer
Bygging av carport og terrasse
🧱 Tre
Tømrerarbeid for oppføring av carport (24 m²) og terrasse (16 m²)
Vinduer
Fasadevindu
Antall: 8
Vinduer fordelt på fasadene nord (2), vest (1), sør (3) og øst (2)
Balkong
Balkong på sørfasade
Antall: 1
Balkong på sørfasaden i andre etasje
Dører
Ytterdør
Antall: 3
Dører fordelt på fasadene nord (1), vest (1) og øst (1)
Fasade
Trekledning
🧱 Tre
Trekledning på alle fasader
Yttervegger kledd med trepanel
Fasader
Tilbygg bolig
Nord
- Materiale
- Tre
- Taktype
- Saltak
- Vinduer
- 2
- Dører
- 1
- Synlige etasjer
- 2
Vest
- Materiale
- Tre
- Taktype
- Saltak
- Vinduer
- 1
- Dører
- 1
- Synlige etasjer
- 1
Sør
- Materiale
- Tre
- Taktype
- Saltak
- Høyde
- 7.7 m
- Mønehøyde
- 8.2 m
- Vinduer
- 3
- Dører
- 0
- Balkonger
- 1
- Synlige etasjer
- 2
Øst
- Materiale
- Tre
- Vinduer
- 2
- Dører
- 1
- Synlige etasjer
- 2
Hendelser
15.04.2026
Vedrørende søknad om endring av gitt tillatelse - Tilbygg bolig, gnr 378 bnr 11 fnr 4, Ødegårdstoppen 13, Moelv
08.04.2026
Søknad om endring av gitt tillatelse - Tilbygg bolig, gnr 378 bnr 11 fnr 4, Ødegårdstoppen 13, Moelv
26.09.2023
Vedtak - Tillatelse til tiltak uten ansvar - Gbnr. 378/11 - Tilbygg bolig
25.09.2023
Søknad om tillatelse til tiltak -Tilbygg bolig, gnr 378 bnr 11 fnr 4, Ødegårdstoppen 13, Moelv