Extension UnderBehandling Enebolig

Tilbygg og fasadeendring på enebolig i Øvre Bjørkåsen 10, Bergen

📍 Øvre Bjørkåsen 10 , 5228 NESTTUN

Nøkkelinfo

Sakstype
Tilbygg
Bygningstype
Enebolig
Bruksareal
47 m²
Boenheter
1
Kommune
Bergen
Fylke
Vestland
Gnr / Bnr
44 / 456
Saksnummer
BYGG-2026/12233
Fase
Under behandling

Om byggesaken

Prosjektet omfatter et tilbygg på underetasjen med balkong over mot sørvest, hvor eksisterende tørkerom og balkong rives og erstattes med en soveromsfløy med ny balkong. I tillegg bygges et tilbygg mot nordøst som erstatter eksisterende saltaksark med et takopplett. Underetasjen endres fra tilleggsdel til hoveddel med en integrert hybelleilighet uten selvstendig adkomst. Eksisterende balkong og tørkehuset fjernes, og det planlegges fasadeendringer i tre med saltak og flatt tak på deler av bygget. Totalt økes bruksarealet med ca. 46,8 m², og carporten er fjernet fra denne søknaden for senere behandling.

Produkter og materialer

Rekkverk Balkongrekkverk

🧱 Tre

Antall: 1

Rekkverk på ny balkong over tilbygg

Sikkerhetsrekkverk i tre på balkong

Tømrer Tømrerarbeid

🧱 Tre

Tømrerarbeid for tilbygg, fasade og innvendige konstruksjoner

Tømrerarbeid for oppføring av tilbygg og fasadeendringer

Trapper Innvendig trapp

Antall: 1

Eksisterende trapp beholdes, ingen ny trapp nevnt

Innvendig trapp i eneboligen

Gulv Innvendige gulv

Gulv i tilbygg og ombygde rom, type ikke spesifisert

Nye gulv i tilbygg og ombygde rom

Vinduer Fasadevindu

Antall: 14

Vinduer i fasade, kontrollmåles før bestilling

Nye og endrede vinduer i tilbygg og fasadeendringer

Balkong Balkong med rekkverk

🧱 Tre

Antall: 1

Ny balkong over tilbygg mot sørvest

Balkong med trerekkverk over tilbygg

Dører Ytterdører og balkongdører

Antall: 8

Dører i fasade og balkong, kontrollmåles før bestilling

Nye ytterdører og balkongdører i tilbygg og fasadeendringer

Bad Bad og våtrom

Antall: 3

Nye bad med flis og våtromsstandard, bad i underetasje og 1. etasje

Oppgradering og nybygging av bad og vaskerom

Maling Innvendig og utvendig maling

Maling av nye og eksisterende flater etter ombygging

Innvendig og utvendig maling av fasade og interiør

VVS Rørinstallasjoner vann og avløp

Oppdatering av vann- og avløpsinstallasjoner i tilbygg og bruksendring

VVS-installasjoner for nytt bad, vaskerom og bruksendring

Betong Betongarbeid

Betongarbeid for fundament og bærende konstruksjoner

Betongarbeid i tilbygg og underetasje

Elektro Elektriske installasjoner

Elektriske installasjoner i tilbygg og ombygde rom

Ny og oppdatert elektrisk anlegg i tilbygg og bruksendring

Grunnarbeid Fundamentering og grunnarbeid

Grunnarbeid for tilbygg og fasadeendring

Grunnarbeid for nytt tilbygg og endringer

Tak Saltak og flatt tak

🧱 Tegl på saltak, flatt tak på carport fjernet

Saltak med teglstein på hoveddelen, flatt tak på enkelte deler

Nytt saltak på tilbygg og takopplett, flatt tak på enkelte deler

Fasade Trepanel fasade

🧱 Tre

Fasadeendring med trepanel, saltak og flatt tak på deler av bygget

Ny trepanelkledning på tilbygg og fasadeendringer, inkludert balkonger

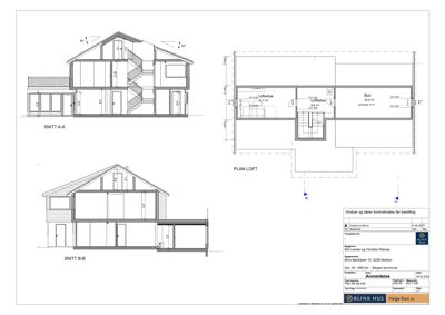
Plantegning

Enebolig 213.5 m²

Etasje 0 108.5 m²

Rom Areal Vinduer Dører
Tørkerom TØRKEROM 21.0 m² 0 1
Bod 1 BOD 1 7.0 m² 0 1
Bod 2 BOD 2 7.0 m² 0 1
Bod 3 BOD 3 7.0 m² 0 1
Entré ENTRÉ 12.0 m² 0 1
Hobbyrom HOBBYROM 18.0 m² 1 1
W.C. W.C. 3.0 m² 0 1
Redskap REDKAPER 10.0 m² 0 1
Garasje GARASJE 25.0 m² 1 1

Etasje 1 105.0 m²

Rom Areal Vinduer Dører
Stue 101 28.0 m² 1 1
Sov. 1 102 12.0 m² 1 1
Sov. 2 103 15.0 m² 1 1
Sov. 3 104 15.0 m² 1 1
Sov. 4 105 15.0 m² 1 1
Kjøkken 106 12.0 m² 1 1
Spisestue 107 15.0 m² 1 1
Gang 108 8.0 m² 0 0
Vaskerom 109 5.0 m² 1 1
Bad/WC 110 4.0 m² 0 1
Balkong 111 10.0 m² 0 1
Terrasse 112 20.0 m² 0 1

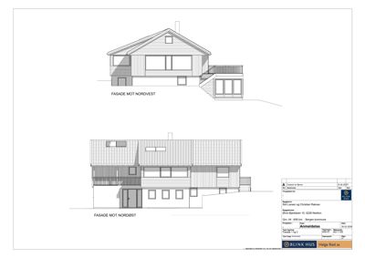
Fasader

Enebolig

Sørøst
Materiale
Tre
Taktype
Saltak
Vinduer
5
Dører
1
Balkonger
1
Synlige etasjer
2
Sørvest
Materiale
Tre
Taktype
Saltak
Takmat.
Tegl
Vinduer
8
Dører
1
Balkonger
1
Synlige etasjer
2
Nordvest
Materiale
Tre
Taktype
Saltak
Vinduer
4
Dører
1
Synlige etasjer
2
Nordøst
Materiale
Tre
Taktype
Saltak
Vinduer
8
Dører
1
Balkonger
1
Synlige etasjer
2
Sydvest
Materiale
Tre
Taktype
Flatt tak
Vinduer
6
Dører
1
Balkonger
1
Synlige etasjer
1

Hendelser

13.04.2026 Øvre Bjørkåsen 10 Supplering av søknad 44/456
07.04.2026 Bekreftelse på mottatt søknad
30.03.2026 Øvre Bjørkåsen 10 Søknad om tillatelse i ett trinn 44/456