Extension Rammetillatelse Enebolig

Tilbygg og ombygging av enebolig med garasje, Øvre Ustigbakken 13

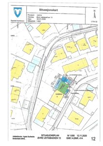
📍 Øvre Ustigbakken 13 , 4333 OLTEDAL

Nøkkelinfo

Sakstype
Tilbygg
Bygningstype
Enebolig
Bruksareal
331 m²
Boenheter
1
Kommune
Gjesdal
Fylke
Rogaland
Gnr / Bnr
14 / 414
Saksnummer
25/01865
Fase
Rammetillatelse

Om byggesaken

Prosjektet omfatter tilbygg og ombygging av en eksisterende enebolig med hybel på Øvre Ustigbakken 13 i Oltedal. Det bygges en glassoverdekket hagestue på ca. 37 m², utvidelse av stue med trapper på ca. 22 m², nytt inngangsparti med vindfang på ca. 5 m², og en balkong på ca. 3 m². Garasjen bygges om til tilbygg med boligdel over og carport i front, med gesimshøyde 3,9 m og mønehøyde 5,2 m. Loftet innredes til arbeidsrom og bod med et målbart bruksareal på 14,6 m², og takkonstruksjonen forsterkes. Det etableres innvendige trapper mellom underetasje, hovedetasje og loft, samt utvendige trapper til kjeller og inngangsparti. Fasader og situasjonsplan viser plassering i nabogrense mot sørvest og nordøst. Byggets totale areal etter tiltaket er ca. 331 m² fordelt på tre etasjer. Tiltaket inkluderer også bruksendring av rom i underetasjen og loftet fra tilleggsdel til hoveddel. Det er gitt dispensasjon fra reguleringsplanens begrensninger på antall etasjer, utnyttelsesgrad, byggegrenser og tekniske krav til trapper.

Produkter og materialer

Trapper innvendig trapp i L-form og utvendig trapp

🧱 tre og betong

Antall: 2

innvendige trapper mellom underetasje, hovedetasje og loft, utvendige trapper til kjeller og inngangsparti, bredde 80 cm, avvik fra TEK17 §12-14

Innvendige og utvendige trapper med rekkverk, tilpasset eksisterende konstruksjon

Betong fundament og grunnmur

🧱 betong

utgraving og fundamentering for trapper og tilbygget inngangsparti

Betongfundament for nye konstruksjoner

Maling utvendig og innvendig maling

🧱 akryl- eller oljebasert maling

maling av trepanel og innvendige flater

Overflatebehandling for fasade og innvendige vegger

Gulv parkett og fliser

🧱 eikeparkett og fliser

gulv i oppholdsrom og våtrom med eikeparkett og fliser

Innvendige gulvflater i bolig og tilbygg

Isolasjon termisk isolasjon

🧱 mineralull eller tilsvarende

isolasjon i vegger, tak og gulv i tilbygg og ombygde deler

Isolasjon for varme- og lydisolering

Dører ytterdør og balkongdør

🧱 tre/glasstett

Antall: 6

ytterdør i inngangsparti, dører til balkong og hagestue

Ytterdører og balkongdører i tre med glassfelt

Terrasse overdekket terrasse

🧱 tre og glass

Antall: 1

glassoverdekket hagestue med terrassefunksjon

Overdekket uteplass med glassvegger og tak

Vinduer fasadevindu

🧱 tre med 3-lags glass

Antall: 14

vinduer i fasader sørøst, nordøst, nordvest, inkludert store vinduer i hagestue og lysgrav

Fasadevindu i tre med energiglass for dagslys og rømningsmulighet

Tak saltak

🧱 tre, takstein

forsterket takkonstruksjon på loft, saltak over bolig og garasje

Saltak med forsterket konstruksjon for innredet loft

Rekkverk balkongrekkverk og trapperekkverk

🧱 tre eller metall

rekkverk på balkong og utvendige trapper

Sikkerhetsrekkverk for balkong og trapper

Fasade trepanel

🧱 tre

trepanel på fasader sørvest, nordøst, sørøst og nordvest

Trepanel som fasadekledning på bolig og garasje

Garasjeport port til garasje

🧱 tre eller metall

Antall: 1

garasjeport i ny garasje med boligdel over

Garasjeport tilpasset ombygd garasje

Elektro elektrisk anlegg

elektrisk anlegg oppgradert i forbindelse med ombygging

Elektrisk installasjon for bolig og tilbygg

VVS våtromsinstallasjoner

bad og vaskerom i bolig, oppgradering iht. TEK17

VVS-installasjoner for bad og vaskerom

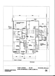
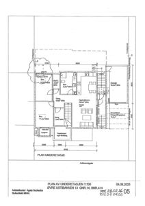
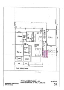
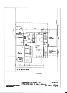
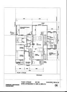
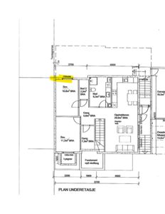
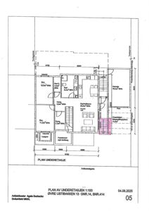
Plantegning

Enebolig 331.3 m²

Etasje 1 170.0 m²

Rom Areal Vinduer Dører
Stue 101 23.2 m² 0 1
Kjøkken 102 9.2 m² 0 1
Gang 103 12.9 m² 0 2
Sov 104 11.8 m² 1 1
Garderobe 105 5.7 m² 0 1
Vaskerom 106 8.7 m² 0 1
Bad 107 7.1 m² 0 1
Soverom 108 9.3 m² 0 1
Glassoverdekket hagestue 109 36.9 m² 1 1
Terrasse 110 17.5 m² 0 0
Overdekket biloppstillingsplass 111 13.8 m² 0 0
Nytt vindfang 112 5.1 m² 1 1
Ny balkong 113 2.1 m² 0 0

Etasje 0 120.5 m²

Rom Areal Vinduer Dører
Sov. 001 10.9 m² 0 1
Bod 2 002 2.5 m² 0 1
Bed 003 8.3 m² 0 1
Oppholdsrom 004 29.9 m² 0 1
Gang 005 5.8 m² 0 2
Gang 006 7.3 m² 0 1
Sov. 007 11.2 m² 0 1
Lysgrav 008 1.3 m² 0 0
Fundament 009 0.0 m² 0 0
Soverom Sov. 10.9 m² 0 1
Bod Bod 2 2.5 m² 0 1
Bad Bad 8.3 m² 0 1
Gang Gang 5.8 m² 0 2
Stue Oppholdsrom 29.9 m² 1 1
Garasje Garasje 18.5 m² 0 1
Biloppstilling Overdekket biloppstillingsplass 13.8 m² 0 0

Etasje 2 40.8 m²

Rom Areal Vinduer Dører
Loft U01 0.0 m² 0 0
Bod U02 8.1 m² 1 1
Arbeidsrom U03 15.2 m² 2 2
Soverom U04 9.3 m² 1 1

Fasader

Enebolig

Sørvest
Materiale
Tre
Taktype
Saltak
Vinduer
0
Dører
0
Synlige etasjer
2
Nordøst
Materiale
Tre
Taktype
Saltak
Høyde
4.9 m
Mønehøyde
6.2 m
Vinduer
3
Dører
1
Synlige etasjer
2
Sørøst
Materiale
Tre
Taktype
Saltak
Vinduer
4
Dører
1
Balkonger
2
Synlige etasjer
2
Nordvest
Materiale
Tre
Taktype
Saltak
Vinduer
2
Dører
1
Synlige etasjer
2

Garasje

Nordøst
Taktype
Saltak
Høyde
2.1 m
Vinduer
0
Dører
2
Synlige etasjer
1

Eksisterende bolig

Sørøst
Materiale
Tre
Taktype
Saltak
Vinduer
4
Dører
1
Balkonger
2
Synlige etasjer
1

Ny garasje

Sørøst
Materiale
Tre
Taktype
Saltak
Vinduer
3
Dører
0
Synlige etasjer
1

Hendelser

13.04.2026 25/01865-14 Revidert tegning og kart for endret balkong, gnr. 14, bnr. 414, Ustigbakken 13, Oltedal
13.04.2026 25/01865-9 GODKJENT - søknad fra Dorota Helena Molendys om dispensasjon fra reguleringsplan og div. byggetiltak, gnr. 14, bnr. 414, Øvre Ustigbakken 13, Oltedal
10.03.2026 25/01865-13 Reviderte tegninger og forklaring om krav i TEK knyttet til lys, utsyn og rømnigsvei, gnr. 14, bnr. 414, Ustigbakken 13, Oltedal
19.02.2026 25/01865-11 Svar på oppfølgingsspørsmål, div. byggetiltak, gnr. 14, bnr. 414, Øvre Ustigbakken 13, Oltedal
19.02.2026 25/01865-12 Spørsmål og svar om saksbehandlingstid - div. byggetiltak, gnr. 14, bnr. 414, Ustigbakken 13, Oltedal
30.01.2026 25/01865-10 Oppfølgingsspørsmål til søknad - div. byggetiltak, gnr. 14, bnr. 414, Øvre Ustigbakken 13, Oltedal
19.01.2026 25/01865-8 Spørsmål og svar om saksbehandlingstid, søknad om div. byggetiltak, gnr. 14, bnr. 414, Øvre Ustigbakken 13, Oltedal
05.12.2025 25/01865-7 Supplering av søknad fra Dorota Helena Molendys om dispensasjon fra reguleringsplan og div. byggetiltak, gnr. 14, bnr. 414, Øvre Ustigbakken 13, Oltedal
04.12.2025 25/01865-6 Bilder av utvendige trapper og rekkverk, innvendig trapp og loftsrom for søknad fra Dorota Helena Molendys om dispensasjon fra reguleringsplan og div. byggetiltak, gnr. 14, bnr. 414, Øvre Ustigbakken 13, Oltedal
03.12.2025 25/01865-5 Innsendt dokumentasjon etter behov for avklaringer - søknad om dispensasjon fra reguleringsplan og div. byggetiltak, gnr. 14, bnr. 414, Øvre Ustigbakken 13, Oltedal