Extension Soeknad Enebolig

Tilbygg og ny garasje på enebolig i Poppelveien 9, Svelvik

📍 Poppelveien 9 , 3060 SVELVIK

Nøkkelinfo

Sakstype
Tilbygg
Bygningstype
Enebolig
Bruksareal
220 m²
Boenheter
2
Kommune
Drammen
Fylke
Buskerud
Gnr / Bnr
324 / 7
Saksnummer
26/09990
Fase
Søknad

Om byggesaken

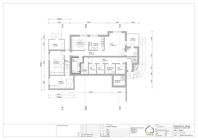
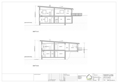
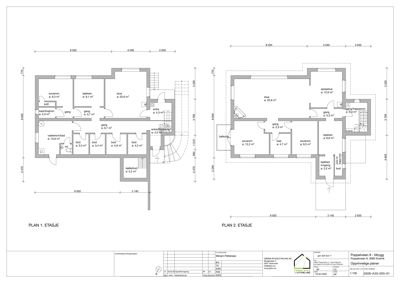
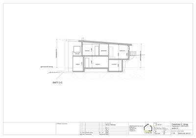
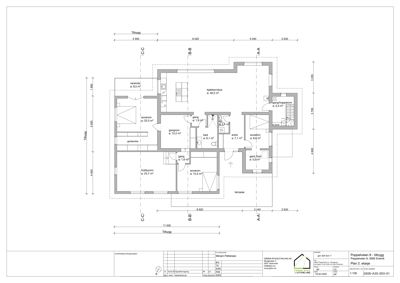
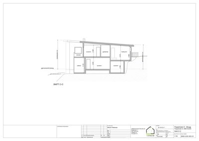
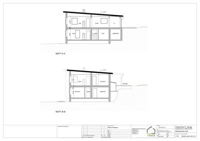
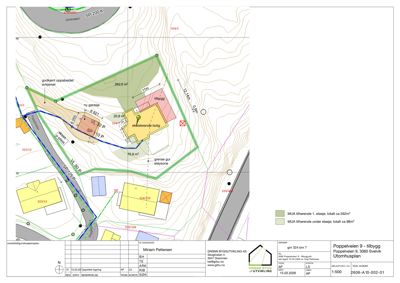
Ny tilbygg på eksisterende enebolig i Poppelveien 9, Svelvik, med utvidelse over både 1. og 2. etasje. Tilbygget er tilpasset terrenget og følger fjellets naturlige høyder, med en grunnflate på ca. 62,2 m². Det oppføres også en ny frittstående garasje på ca. 42 m² med pulttak og tilhørende bod. Eksisterende bolig er i mur med funksjonalistisk stil, mens tilbygget bygges i tre med liggende brun spaltekledning som kontrast. Tilbygget inneholder nye soverom, hobbyrom, veranda og utebod, og taket på eksisterende bolig skiftes ut og etterisoleres. Prosjektet inkluderer oppgradering av boligens tekniske standard med jordvarme og vannbåren gulvvarme. Eiendommen ligger i skrånende terreng med stor høydeforskjell til fylkesvei, og det søkes dispensasjon for byggegrense. Nytt tiltak endrer ikke vesentlig avstand til vei, og tiltaket er innenfor gjeldende utnyttelsesgrad og planbestemmelser.

Produkter og materialer

Vinduer Isolerglassvinduer med aluminiumsbeslag

🧱 Tre med aluminiumsbeslag

Antall: 14

Nye vinduer med tre lag isolerglass og aluminiumsbeslag, samme utførelse som eksisterende

Vinduer til tilbygget og oppgradering av eksisterende bolig

Rekkverk Verandarekkverk

Rekkverk på veranda i tilbygget

Sikkerhetsrekkverk på veranda

Elektro El-bil lader

Antall: 2

El-bil lader i eksisterende parkeringsplass og i ny garasje

Ladepunkt for el-bil

Dører Ytterdører og verandadører

Antall: 7

Dører i tilbygget og eksisterende bolig, inkludert verandadør

Dører til tilbygget og eksisterende bolig

Fasade Liggende spaltekledning

🧱 Tre, naturfarget brun

Tilbygg i treverk med liggende panel i naturfarget brun spaltekledning som kontrast til eksisterende pusset hvit mur

Fasademateriale for tilbygget

Grunnarbeid Opparbeidet parkeringsplass og grunn for garasje

🧱 Fjell og grusdekke

Opparbeidet terreng med sprengt fjell og permeabelt grusdekke for parkering og garasje

Grunnarbeid for garasje og innkjørsel

VVS Jordvarme og vannbåren gulvvarme

Boring etter jordvarme, vannbåren gulvvarme i alle rom

Oppvarming og energiløsning for bolig

Isolasjon Etterisolering av tak

Etterisolering av tak i eksisterende bolig og nytt tilbygg etter TEK17

Isolasjon for tak og vegger

Betong Fundament og murarbeider

Betongarbeider for fundamentering av tilbygget og garasje

Betongarbeid i byggeprosjektet

Garasjeport Dobbel garasjeport

Antall: 1

Garasje med plass til to biler, pulttak, tilhørende bod

Garasjeport for ny garasje

Tømrer Innvendige vegger og tak

🧱 Treverk

Innvendige konstruksjoner i tilbygget i treverk

Tømrerarbeid for tilbygget

Tak Pulttak

Nytt pulttak på tilbygget og garasje, taket på eksisterende bolig skiftes ut og etterisoleres, samme takvinkel som tidligere

Taktekking og isolasjon for tilbygget og garasje

Terrasse Veranda

Antall: 1

Veranda på tilbygget, ca. 7,1 m²

Utendørs oppholdsareal tilknyttet tilbygget

Gulv Vannbåren gulvvarme

Vannbåren gulvvarme i alle rom

Gulvvarme i bolig

Maling Utvendig og innvendig maling

Maling av fasade og innvendige flater i tilbygget

Overflatebehandling

Fasader

Enebolig

Vest
Materiale
Tre
Taktype
Flatt tak
Høyde
3.0 m
Vinduer
3
Dører
1
Balkonger
1
Synlige etasjer
2
Øst
Materiale
Tre
Taktype
Flatt tak
Høyde
3.0 m
Vinduer
4
Dører
1
Balkonger
2
Synlige etasjer
2
Nord
Materiale
Tre
Taktype
Flatt tak
Høyde
3.0 m
Vinduer
3
Dører
1
Synlige etasjer
1
Sør
Materiale
Tre
Taktype
Flatt tak
Høyde
3.0 m
Vinduer
5
Dører
1
Balkonger
1
Synlige etasjer
2

Hendelser

15.04.2026 Poppelveien 9, Kopi: Søknad om dispensasjon fra byggegrense - Uttalelse
15.04.2026 Poppelveien 9 Søknad om tillatelse i ett trinn 324/7