Extension UnderBehandling Enebolig

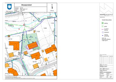
Tilbygg, ny garasje og støttemur på Ralph Tambs vei 1

📍 Ralph Tambs vei 1 , 1384 ASKER

Nøkkelinfo

Sakstype
Tilbygg
Bygningstype
Enebolig
Bruksareal
55 m²
Boenheter
1
Kommune
Asker
Fylke
Akershus
Gnr / Bnr
22 / 124
Saksnummer
26/722
Fase
Under behandling

Om byggesaken

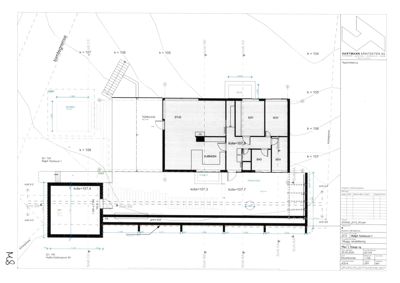
Prosjektet omfatter oppføring av et tilbygg til eksisterende enebolig, ny frittstående dobbelgarasje med underetasje, samt rehabilitering og oppføring av støttemurer på eiendommen Ralph Tambs vei 1. Garasjen har et bebygd areal på 36 m² og et bruksareal på 57,1 m², med saltak og gesimshøyde som overskrider kommuneplanens krav med 37 cm. Tilbygget inkluderer utvidet entre og lysgrop i sokkeletasjen. Støttemurene er prosjektert i betong og tilpasses terrenget med høyder innenfor gjeldende regulering. Bruksendring gjelder omdisponering av rom i sokkeletasjen fra tilleggsdel til hoveddel uten konstruksjonsendringer. Tomten er skrånende med utfordringer knyttet til plassering og avstand til vei, noe som medfører dispensasjoner for garasjeplassering og høyde. Prosjektet inkluderer også tiltak for overvannshåndtering og avfallsløsning integrert i støttemur.

Produkter og materialer

Dører Ytterdør i glass

🧱 Glass og tre

Antall: 3

Dører i bolig og garasje, inkludert dør i betongfasade garasje

Ytterdører for adkomst til bolig, garasje og bod

Betong Fundament og støttemur

🧱 Betong

Betongfundament for garasje og støttemur, inkludert mur med rom for avfall

Betongkonstruksjoner for stabilitet og funksjon

Fasade Trepanel fasade

🧱 Tre

Fasader i tre med saltak, flatt tak og pulttak på bolig og garasje

Fasade i tre som matcher eksisterende bolig og garasje, med nøktern fargepalett

Gulv Innvendige gulv

Gulv i tilbygg og eksisterende bolig, antatt parkett eller fliser

Innvendige gulvflater i bolig og tilbygg

Rekkverk Rekkverk på terrasse og trapper

Rekkverk for sikkerhet på terrasse og trapper i tilbygg

Sikkerhetsrekkverk i tilknytning til uteområder

Maling Innvendig og utvendig maling

Maling av fasader og innvendige flater i tilbygg og garasje

Overflatebehandling for estetikk og beskyttelse

Vinduer Garasje vinduer

🧱 Tre

Antall: 5

Vinduer i garasje, inkludert 1 på fasade SV og 4 på fasade SØ

Vinduer i garasje for lysinnslipp

Avfall Avfallssystem integrert i støttemur

Avfallsløsning i rehabilitert støttemur i henhold til kommunens norm

Integrert avfallshåndtering i uteområdet

Tak Saltak og flatt tak

Garasje med saltak, bolig med saltak, flatt tak og pulttak

Takformer tilpasset eksisterende bebyggelse og terreng

VVS Sanitær og varme

VVS-installasjoner i bolig, inkludert bad og vaskerom

VVS-arbeid for sanitær og oppvarming

Grunnarbeid Terrengarbeid og drenering

Terrengtilpasning med drenering, overvannshåndtering og planering i skrånende terreng

Grunnarbeid for tilpasning av bygg og uteområder, inkludert overvannshåndtering

Mur Støttemur i betong

🧱 Betong

Støttemur med høyde opptil 1,5 m i henhold til dispensasjon, erstatter eksisterende mur i dårlig forfatning

Nye støttemurer i betong for å sikre terreng og hindre utglidning mot vei

Tømrer Tilbygg og garasje konstruksjon

🧱 Tre

Tilbygg til bolig og ny garasje i tre, tilpasset eksisterende bygg

Tømrerarbeid for oppføring av tilbygg og garasje

Elektro Elektrisk installasjon

Elektriske installasjoner i bolig og garasje, inkludert belysning og strøm

Elektroarbeid for funksjonelle bygg

Garasjeport Dobbel garasjeport

🧱 ukjent

Antall: 1

Garasje med underetasje, BYA 36 m², BRA 57,1 m², saltak, gesimshøyde 4,37 m (37 cm over tillatt)

Dobbel garasje med underetasje og garasjeport, tilpasset bil med takboks, med saltak og noe høyere gesimshøyde enn planbestemmelse

Terrasse Terrasse og uteplass

Terrasse på ca. 55,7 m² mellom bolig og garasje, tilrettelagt for uteopphold

Uteplass for rekreasjon og sosialt bruk

Vinduer Fasadevindu

🧱 Tre/Aluminium

Antall: 5

Vinduer i boligfasader, varierende antall per fasade, 3-lags energiglass antatt

Vinduer i bolig for dagslys og utsyn, tilpasset eksisterende arkitektur

Hendelser

21.04.2026 22/124 Ralph Tambs vei 1 - Supplering av søknad
25.03.2026 22/124 Ralph Tambs vei 1 - Tilbakemelding vedrørende utsatt frist
24.03.2026 22/124 Ralph Tambs vei 1 - Tilbakemelding om videre oppfølging
12.03.2026 22/124 Ralph Tambs vei 1 - Mottakskontroll
12.03.2026 22/124 Ralph Tambs vei 1 - Bekreftelse på at vi har mottatt din søknad
06.03.2026 22/124 Ralph Tambs vei 1 - Søknad om rammetillatelse - Bruksendring, tilbygg, ny garasje og støttemur