Extension UnderBehandling Enebolig

Tilbygg og fasadeendring på enebolig i Rauds Gate 8, Bodø

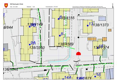
📍 Rauds gate 8 , 8007 BODØ

Nøkkelinfo

Sakstype
Tilbygg
Bygningstype
Enebolig
Bruksareal
245 m²
Boenheter
1
Kommune
Bodø
Fylke
Nordland - Nordlánnda
Gnr / Bnr
138 / 4589
Saksnummer
2026/9994
Fase
Under behandling

Om byggesaken

Prosjektet omfatter et tilbygg på eksisterende enebolig i Rauds Gate 8, Bodø, med en utvidelse av kjøkken, spisestue, bad og soverom mot øst. Kjellerstuen utvides også mot øst med større vindu og utvendig lysgrav. I tillegg bygges en ny garasje på 41 m² i sørøst, sammenbygd med huset. Bygningen har saltak med tegl som takmateriale og trekledning på fasadene. Det planlegges riving av deler av eksisterende tilbygg inntil 50 m². Totalt areal etter utbygging blir ca. 245 m² bebygd areal på en tomt på 759 m². Fasader mot sør, øst, nord og vest er i tre med saltak og tegl. Det er to trapper i bygget, og garasjen har garasjeport. Prosjektet inkluderer også endring av fasade og bruksendring i kjeller.

Produkter og materialer

Tømrer Bygging av tilbygg og garasje

🧱 Tre

Oppføring av tilbygg på ca. 95 m² og garasje på 41 m²

Tømrerarbeid for tilbygg og garasje

Grunnarbeid Fundamentering og lysgrav

Utvendig lysgrav ved kjellerstue, fundamentering for tilbygg og garasje

Grunnarbeid for tilbygget og garasje, inkludert lysgrav for kjellerstue

Trapper Innvendige trapper

Antall: 2

To trapper i bygget, inkludert kjellertrapp

Trapper mellom etasjer

VVS Sanitær og varme

Oppgradering av bad, vaskerom og kjøkken i tilbygget

VVS-installasjoner for bad, vaskerom og kjøkken i tilbygget

Dører Ytterdører og garasjeport

Antall: 4

Ytterdører i fasade øst og vest, samt garasjeport i garasje på 41 m²

Dører til inngang og garasjeport

Maling Innvendig og utvendig maling

Maling av fasader og innvendige overflater i tilbygget

Maling og overflatebehandling

Garasjeport Garasjeport til ny garasje

Antall: 1

Garasjeport i ny garasje på 41 m²

Port til garasje sammenbygd med huset

Betong Kjeller og fundament

Kjellerutvidelse og fundament for tilbygg og garasje

Betongarbeid for kjellerutvidelse og fundamentering

Gulv Innvendige gulvflater

Nye gulv i tilbygget og kjellerstue

Gulvbelegg og overflater i tilbygget og kjellerstue

Fasade Trekledning

🧱 Tre

Fasader i tre med saltak og tegl takmateriale

Trekledning til fasader på tilbygget og eksisterende bygg

Elektro Elektrisk anlegg

Elektriske installasjoner i tilbygget og garasje

Elektroarbeid for nytt tilbygg og garasje

Tak Saltak med tegl

🧱 Tegl

Saltak med tegl som takmateriale på tilbygget og eksisterende bygg

Taktekking med tegl på saltak

Vinduer Fasadevindu

Antall: 12

Større vindu i kjellerstue med utvendig lysgrav, totalt 12 vinduer på fasadene

Nye og større vinduer i tilbygget og kjellerstue

Plantegning

Enebolig 364.3 m²

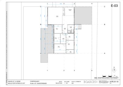
Etasje 1 238.7 m²

Rom Areal Vinduer Dører
Stue STUE 35.7 m² 0 1
Kjøkken KJØKKEN 8.7 m² 2 1
Spisestue SPISESTUE 6.6 m² 0 1
Entré ENTRE 3.1 m² 0 2
Vaskerom VF 5.9 m² 0 1
Bad BAD 5.8 m² 0 2
Gang GANG 5.0 m² 0 1
Sov rom 4 SOV 4 7.7 m² 0 2
Gang GANG 6.1 m² 0 3
Sov rom 3 SOV 3 7.1 m² 0 2
Sov rom 2 SOV 2 7.9 m² 0 1
Bod BOD 3.0 m² 0 1
Sov rom 1 SOV 1 12.2 m² 0 1
Bod BOD 6.3 m² 0 1
Bod BOD 9.7 m² 0 1
Garasje GARASJE 41.0 m² 0 1

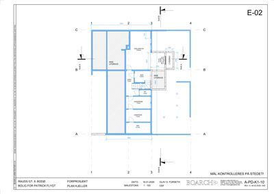
Etasje 0 125.6 m²

Rom Areal Vinduer Dører
Stue STUE 20.2 m² 3 1
Gang GANG 7.8 m² 0 2
Bod BOD 4.2 m² 0 1
WC WC 1.4 m² 0 1
Garderobe GARDEROBE 7.0 m² 0 1
Vaskerom VASKEROM 7.0 m² 0 1
Bad BAD 6.1 m² 0 1
Kjellerstue 001 25.8 m² 0 1
Gang 002 7.8 m² 0 2
Bod 003 4.2 m² 0 1
WC 004 1.4 m² 0 1
Garderobe 005 7.0 m² 0 1
Vaskerom 006 7.0 m² 0 1
Bad 007 6.1 m² 0 1

Fasader

Enebolig

Sør
Materiale
Tre
Taktype
Flatt tak
Takmat.
Tegl
Høyde
1.6 m
Mønehøyde
21.6 m
Vinduer
4
Dører
0
Synlige etasjer
1
Øst
Materiale
Tre
Taktype
Saltak
Takmat.
Tegl
Vinduer
4
Dører
1
Synlige etasjer
1
Nord
Materiale
Tre
Taktype
Saltak
Takmat.
Tegl
Vinduer
0
Dører
0
Synlige etasjer
1
Vest
Materiale
Tre
Taktype
Saltak
Takmat.
Tegl
Høyde
2.6 m
Mønehøyde
23.1 m
Vinduer
4
Dører
1
Synlige etasjer
1

Hovedbygg

Ukjent
Taktype
Saltak
Vinduer
0
Dører
0
Synlige etasjer
0

Hendelser

22.04.2026 Nabosamtykke - Rauds gt. 8.
22.04.2026 Ettersendte dokumenter
15.04.2026 Foreløpig svar - behov for tilleggsdokumentasjon
10.02.2026 Rammesøknad - Rauds Gate 8
10.02.2026 Bekreftelse på mottatt søknad - Rauds Gate 8