Extension UnderBehandling Enebolig

Tilbygg, påbygg og fasadeendring på enebolig i Rødsveien 15

📍 Rødsveien 15 , 3222 SANDEFJORD

Nøkkelinfo

Sakstype
Tilbygg
Bygningstype
Enebolig
Bruksareal
166 m²
Boenheter
1
Kommune
Sandefjord
Fylke
Vestfold
Gnr / Bnr
112 / 334
Saksnummer
2023/24081
Fase
Under behandling

Om byggesaken

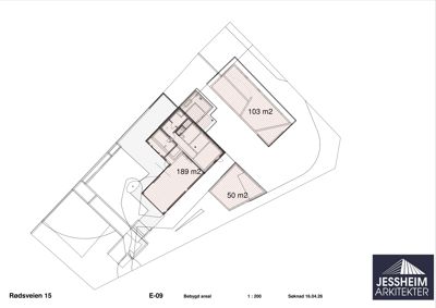
Omfattende byggeprosjekt på enebolig i Rødsveien 15 som inkluderer tilbygg på ca. 72 m², påbygg med ny takform, riving av eksisterende uthus på 11,8 m², fasadeendringer og bruksendring fra tilleggsdel til hoveddel. Bygget har flatt tak og trekledning, med flere fasader og balkonger. Prosjektet omfatter også opparbeidelse av utearealer med støttemurer og hagedam, samt utvidelse av garasje. Totalt bebygd areal etter tiltaket er ca. 166,5 m², med et samlet bruksareal på ca. 336 m². Det er én trapp og flere vinduer og dører i bygget. Tiltaket er planlagt og utføres med ansvarlige foretak innen arkitektur, tømrerarbeid, sanitær og kontroll. Det foreligger midlertidig brukstillatelse og pågående søknad om endringer og suppleringer.

Produkter og materialer

Garasjeport Garasjeport

Antall: 1

Garasje med port, utvidelse av eksisterende garasje

Garasjeport for biloppstilling

Vinduer Fasadevindu

🧱 Tre/Aluminium

Antall: 16

Vinduer i fasader, antall ca. 16 fordelt på flere fasader

Nye og endrede vinduer i fasader

Fasade Trekledning

🧱 Tre

Fasader i tre med flatt tak

Kledning av fasader i tre, flate takflater

Dører Ytterdører og balkongdører

🧱 Tre/Glass

Antall: 11

Ytterdører og balkongdører i fasader, totalt 11 stk

Nye ytterdører og balkongdører i fasader

Trapper Innvendig trapp

Antall: 1

En innvendig trapp i eneboligen

Trapp mellom etasjer i bolig

Elektro Elektriske installasjoner

Diverse elektriske arbeider i bygget og uteareal

Elektriske installasjoner og oppgraderinger

Tak Flatt tak

Flatt tak på alle fasader

Nytt flatt tak på tilbygg og påbygg

Maling Innvendig og utvendig maling

Maling av fasader og innvendige overflater

Overflatebehandling av treverk og innvendige flater

Betong Støttemurer

🧱 Betong

Støttemurer inntil 1 meter høyde, inkludert mur mot nabo med samtykke

Støttemurer i uteareal for terrengjustering

Gulv Innvendige gulvflater

Gulv i nye og ombygde rom, inkludert bad og stue

Innvendige gulvflater i bolig

Grunnarbeid Terrengarbeid og opparbeidelse

Terrengjustering, opparbeidelse av hage med beplantning og hagedam

Opparbeidelse av uteareal med beplantning, hagedam og terrengjustering

Terrasse Terrasse og uteplass

Terrasse med kledning og rekkverk, del av uteareal

Opparbeidelse av terrasse og uteplass

VVS Sanitærinstallasjoner

Sanitærinstallasjoner i bad i tilbygg og sokkeletasje

VVS-installasjoner for bad og våtrom

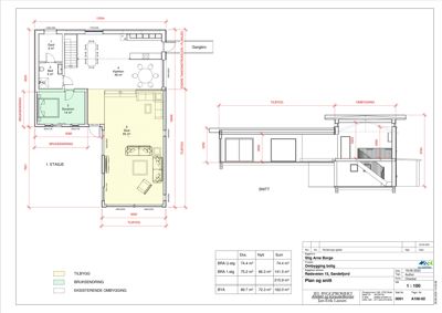
Plantegning

Enebolig 141.5 m²

Etasje 1 141.5 m²

Rom Areal Vinduer Dører
Gard 1 6.0 m² 0 1
Bad 2 5.0 m² 0 1
Soverom 3 14.0 m² 1 1
Kjøkken 4 49.0 m² 0 1
Stue 5 65.0 m² 2 1
Stue 101 60.4 m² 3 1
Stue/kjøkken 102 52.4 m² 1 1
Soverom 103 14.8 m² 1 1
Bad 104 5.0 m² 0 1
Garderobe 105 6.0 m² 0 1

Fasader

Enebolig

Sør-øst
Materiale
Tre
Taktype
Flatt tak
Vinduer
2
Dører
2
Synlige etasjer
1
Nord-øst
Materiale
Tre
Taktype
Flatt tak
Vinduer
4
Dører
0
Balkonger
1
Synlige etasjer
2
Nord-vest
Materiale
Tre
Taktype
Flatt tak
Vinduer
2
Dører
1
Synlige etasjer
1
Sør-vest
Materiale
Tre
Taktype
Flatt tak
Vinduer
2
Dører
2
Balkonger
1
Synlige etasjer
1
Sør
Materiale
Tre
Taktype
Flatt tak
Vinduer
2
Dører
1
Synlige etasjer
1
Øst
Materiale
Tre
Taktype
Flatt tak
Vinduer
3
Dører
1
Balkonger
1
Synlige etasjer
2
Nord
Vinduer
0
Dører
0
Synlige etasjer
1

Hovedbygg

Nord
Taktype
Flatt tak
Vinduer
4
Dører
0
Synlige etasjer
1
Vest
Taktype
Flatt tak
Vinduer
5
Dører
1
Synlige etasjer
2

Hendelser

16.04.2026 Gbnr 112/334 - Rødsveien 15 - Søknad om endring av gitt tillatelse eller godkjenning
30.03.2026 Sak 23/24081 – Gbnr 112/334 - Rødsveien 15 - Supplering av søknad
20.03.2026 Gbnr 112/334 - Rødsveien 15 - Nabomerknader til nytt nabovarsel fra Rødsveien 15
19.03.2026 Gbnr 112/334 - Rødsveien 15 - Søknad om tilbygg, påbygg, bruksendring, riving og fasadeendring - Supplering av søknad
12.03.2026 Gbnr 112/334 - Rødsveien 15 - Søknad om tilbygg, påbygg, bruksendring, riving og fasadeendring - Tilbakemelding
03.03.2026 Gbnr 112/334 - Rødsveien 15 - Søknad om endring av gitt tillatelse eller godkjenning
15.01.2026 Gbnr 112/334 - Rødsveien 15 - Supplering av søknad
06.06.2024 Gbnr 112/334 - Rødsveien 15 - Tilbygg, påbygg, bruksendring, riving og fasadeendring - Midlertidig brukstillatelse
26.04.2024 Gbnr 112/334 - Rødsveien 15 Søknad om midlertidig brukstillatelse 112/334
12.07.2023 Gbnr 112/334 - Rødsveien 15 - Søknad om tilbygg, påbygg, fasadeendring, bruksendring og riving - Vedtak - Tillatelse til ett trinn
10.07.2023 Gbnr 112/334 - SV: 23/24081 - Rødsveien 15 - Oppdatert arealregnskap
30.06.2023 Gbnr 112/334 - Rødsveien 15 - Søknad om fasadeendringer, tilbygg og ombygging