Extension Soeknad Enebolig

Nye altaner og markterrasser på Røldalsvegen 58, Odda

📍 Røldalsvegen 58 , 5750 ODDA

Nøkkelinfo

Sakstype
Tilbygg
Bygningstype
Enebolig
Bruksareal
183 m²
Boenheter
1
Kommune
Ullensvang
Fylke
Vestland
Gnr / Bnr
60 / 135
Saksnummer
2026/1584
Fase
Søknad

Om byggesaken

Prosjektet omfatter oppføring av nye altaner på 3. etasje og markterrasser på 1. etasje på en eksisterende enebolig i Røldalsvegen 58, Odda. Bygget har betongfasader med flatt tak på deler av bygget og saltak med trekledning på andre fasader. De nye altanene og terrassene vil endre fasaden, særlig på sørfasaden, og inkluderer levegger for skjerming. Det er planlagt balkonger i flere etasjer, med tilhørende trapper og dører. Bygget har flere vinduer i ulike størrelser, og tiltaket innebærer også fasadeendringer for å tilpasse de nye utearealene. Grunnarbeidene er minimale, og det er redegjort for skred- og flomfare uten at tiltaket forverrer områdestabiliteten.

Produkter og materialer

Trapper Innvendig trapp

Antall: 1

Eksisterende trapp i bygget, ingen nye trapper nevnt

Eksisterende trapp i eneboligen

Maling Fasademaling

Maling av trefasader og eventuelle nye overflater på altaner

Overflatebehandling av nye og eksisterende fasader og altaner

Vinduer Balkongdører og fasadevinduer

Balkongdører 9x21 og vinduer 12x12, 12x8, 12x11 cm i ulike etasjer

Nye balkongdører og vinduer tilpasset altanene

Fasade Altaner og markterrasser

🧱 Tre og betong

Nye altaner på 3. etasje og markterrasser på 1. etasje med levegger for skjerming

Oppføring av nye altaner og markterrasser som endrer fasaden på sør- og øst-vest fasader

Grunnarbeid Minimal gravearbeid

Minimale gravearbeider i forbindelse med markterrasser

Grunnarbeid for markterrasser med minimal terrenginngrep

Isolasjon Isolasjon i konstruksjoner

Isolasjon i nye konstruksjoner for altaner og fasadeendringer

Isolasjon for å sikre varme- og lydisolering i nye bygningsdeler

Tømrer Altan- og terrassebygging

🧱 Treverk

Utførelse av nye balkonger og markterrasser i treverk

Tømrerarbeider for oppføring av nye altaner og markterrasser

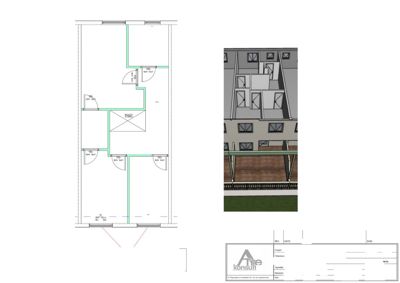
Plantegning

Enebolig 0.0 m²

Etasje 2 0.0 m²

Rom Areal Vinduer Dører
Sov 101 9.4 m² 1 1
Bad 102 0.0 m² 1 1
Gang 103 0.0 m² 0 0
Bod 104 0.0 m² 1 1
Sov 105 8.7 m² 1 1
Sov 106 6.7 m² 1 1

Fasader

Lofthus

Sør
Materiale
Betong
Taktype
Flatt tak
Vinduer
28
Dører
0
Balkonger
1
Synlige etasjer
3
Øst
Materiale
Betong
Taktype
Flatt tak
Vinduer
12
Dører
0
Synlige etasjer
2
Vest
Materiale
Betong
Taktype
Flatt tak
Vinduer
12
Dører
0
Synlige etasjer
2
Ukjent
Taktype
Saltak
Høyde
14.0 m
Mønehøyde
16.0 m
Vinduer
14
Dører
14
Synlige etasjer
4

Enebolig

Nord
Materiale
Tre
Taktype
Saltak
Høyde
6.5 m
Mønehøyde
8.2 m
Vinduer
5
Dører
1
Balkonger
1
Synlige etasjer
2
Sør
Materiale
Tre
Taktype
Saltak
Høyde
6.5 m
Mønehøyde
8.2 m
Vinduer
4
Dører
1
Synlige etasjer
2

Hovedbygg

Ukjent
Materiale
Glass
Vinduer
12
Dører
0
Synlige etasjer
0

Hendelser

17.04.2026 Gnr 60, bnr. 135 - Røldalsvegen 58, 5750 Odda - Søknad om tillatelse i ett trinn - Oppføring av nye altanar og markterrassar