Extension UnderBehandling Enebolig

Tilbygg og fasadeendring på enebolig i Rønningen 41, Asker

📍 Rønningen 41 , 1385 ASKER

Nøkkelinfo

Sakstype
Tilbygg
Bygningstype
Enebolig
Bruksareal
25 m²
Boenheter
1
Kommune
Asker
Fylke
Akershus
Gnr / Bnr
92 / 99
Saksnummer
20/2533
Fase
Under behandling

Om byggesaken

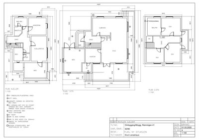
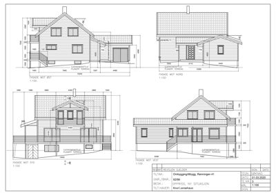
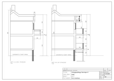
Ny utvidet veranda og tilbygg på 25 m² BYA på en eksisterende enebolig i Rønningen 41, Asker. Tilbygget består av utvendige arealer uten økning i boligens BRA. Det inkluderer økt takutstikk med saltak tekket med teglstein, nye vinduer med endrede dimensjoner, og utvendig rehabilitering av fasader i trekledning. Bygget har to etasjer med saltak og pipe, og fasadene har flere vinduer og dører i tre. Det planlegges også riving og oppbygging av et isolert tilbygg på vestside som del av videre tiltak.

Produkter og materialer

Vinduer Fasadevindu

Antall: 12

nye vinduer med nye dimensjoner i fasaden

Utskifting og endring av vinduer i fasaden

Isolasjon Fasade og takisolasjon

etterisolering i forbindelse med fasaderehabilitering og takbytte

Isolasjon av fasade og tak ved rehabilitering og tilbygg

Tømrer Takstoler og bjelker

🧱 tre

utvidelse av takkonstruksjon med økt takutstikk

Konstruksjonsarbeid for utvidelse av tak og takutstikk

Fasade Trekledning

🧱 tre

utvendig rehabilitering av fasader med trekledning

Rehabilitering og oppgradering av trekledning på fasader

Terrasse Veranda

Antall: 1

utvidet veranda med overbygget mur/betongdekke planlagt revet og erstattet med isolert tilbygg

Utvidelse og ombygging av veranda med betongdekke og isolert tilbygg

Tak Saltak med teglstein

🧱 teglstein

økt takutstikk, saltak tekket med teglstein

Utvidelse av takutstikk og bytte av taktekking til teglstein

Grunnarbeid Betongarbeid

🧱 betong

riving og oppbygging av overbygget mur/betong veranda på vestside

Riving av eksisterende betongdekke og oppbygging av nytt isolert tilbygg

Dører Ytterdør

Antall: 2

nye dører i fasaden i tråd med byggets uttrykk

Utskifting av ytterdører i fasaden

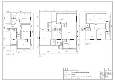
Plantegning

Enebolig 0.0 m²

Etasje 0 0.0 m²

Rom Areal Vinduer Dører
BOD 001 0.0 m² 0 1
BOD 002 0.0 m² 0 1
KJØLLERSTUE 003 0.0 m² 0 1
GANG 004 0.0 m² 0 0
BADSTUE 005 0.0 m² 0 1
BAD/WC 006 0.0 m² 0 1
VASKEROM 007 0.0 m² 0 1

Etasje 1 0.0 m²

Rom Areal Vinduer Dører
BOD 101 0.0 m² 0 1
WC 102 0.0 m² 0 1
KONTOR 103 0.0 m² 0 1
STUE 104 0.0 m² 0 1
KJØKKEN 105 0.0 m² 0 1
GANG 106 0.0 m² 0 0
VERANDA 107 0.0 m² 0 0

Etasje 2 0.0 m²

Rom Areal Vinduer Dører
SOV 201 0.0 m² 0 1
SOV 202 0.0 m² 0 1
GANG 203 0.0 m² 0 0
WC 204 0.0 m² 0 1
BAD/WC 205 0.0 m² 0 1

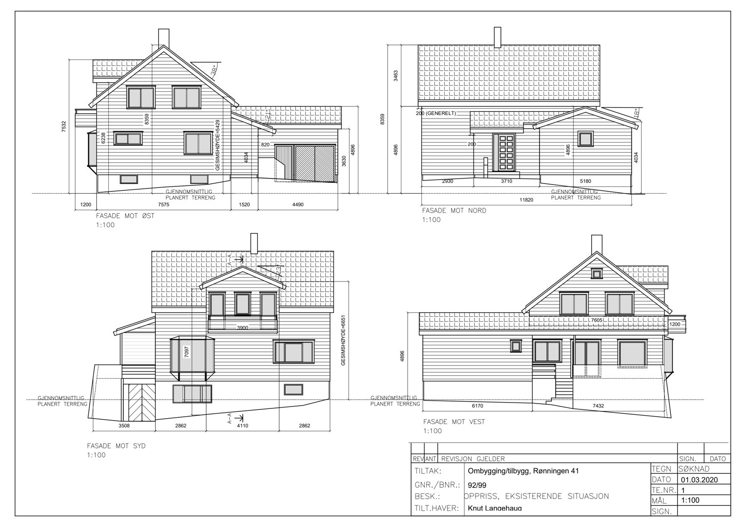
Fasader

Enebolig

Øst
Materiale
Tre
Taktype
Saltak
Takmat.
Tegl
Høyde
7.5 m
Mønehøyde
9.9 m
Vinduer
3
Dører
0
Synlige etasjer
2
Nord
Materiale
Tre
Taktype
Saltak
Takmat.
Tegl
Høyde
8.4 m
Mønehøyde
9.9 m
Vinduer
1
Dører
1
Synlige etasjer
2
Sør
Materiale
Tre
Taktype
Saltak
Takmat.
Tegl
Høyde
8.4 m
Mønehøyde
10.7 m
Vinduer
4
Dører
0
Balkonger
1
Synlige etasjer
2
Vest
Materiale
Tre
Taktype
Saltak
Takmat.
Tegl
Høyde
4.9 m
Mønehøyde
9.9 m
Vinduer
4
Dører
1
Synlige etasjer
1

Hendelser

21.04.2026 92/99 - Svar på forespørsel
17.04.2026 92/99 - Tilbakemelding angående varsel om manglende ferdigattest eller midlertidig brukstillatelse
25.03.2026 92/99 Tillatelse til tilbygg - Tilbygg bolig - Manglende ferdigattest eller midlertidig brukstillatelse
25.03.2020 92/99 Tillatelse til tiltak - Tilbygg bolig
18.03.2020 92/99 Kvitteringsbrev - Tilbygg bolig
18.03.2020 92/99 Søknad om tilbygg bolig