Extension Soeknad Enebolig

Påbygg, tilbygg og fasadeendring på enebolig i Røykenveien 189C

📍 Røykenveien 189C , 1386 ASKER

Nøkkelinfo

Sakstype
Tilbygg
Bygningstype
Enebolig
Bruksareal
345 m²
Boenheter
2
Kommune
Asker
Fylke
Akershus
Gnr / Bnr
61 / 140
Saksnummer
26/1073
Fase
Søknad

Om byggesaken

Prosjektet omfatter en omfattende oppgradering og utvidelse av en eksisterende enebolig fra 1960-tallet med tilbygg i sør og nord, påbygg med takterrasse i sørvest, samt etablering av en vinterhage på terrassen i nord. Totalt tilbygg og påbygg utgjør ca. 40,8 m² nytt bebygd areal, med en samlet BYA på 23,72 % av tomten på 1191,5 m². Påbygget inkluderer nye soverom, bad, garderobe og stue i 2. etasje, samt takterrasse med skjerming mot naboer. Det gjøres endringer i bærende konstruksjon for å bære nye laster, og fasadene endres med nye vinduer og dører i tre. Vinterhagen bygges med delvis tette vegger for lys og utsikt. Støyutredning viser at tiltaket tilfredsstiller krav til støy, med støyskjerming og lydisolerende vinduer. Prosjektet inkluderer også oppgradering av utearealer med støyskjermet uteoppholdsareal og biloppstillingsplass.

Arbeidsomfang

- Endring av bærende konstruksjoner i bygg (innvendig) - Fasadeendring - Påbygg med samlet areal mindre enn 50 m² - Innlegging av eksisterende terrasse i nordenden til vinterhage - Etablering av nytt påbygg/takterrasse i sørenden under eksisterende mønehøyde - Nytt inngangsparti til loftsetasjen (tillegg til hoveddelen) - Installasjon av rekkverk mot nabotomter for å skjerme utsikt

Produkter og materialer

Rekkverk Takterrasse rekkverk

🧱 Glass eller metallrekkverk

Rekkverk rundt takterrasse for sikkerhet og delvis innsynsskjerming

Sikkerhetsrekkverk på takterrasse

Ventilasjon Balansert ventilasjon

Balansert ventilasjon uten ventiler i fasade for å ivareta lydkrav

Ventilasjonsanlegg for å sikre god luftkvalitet og lydisolasjon

Tømrer Bygging av tilbygg, påbygg og vinterhage

🧱 Treverk til konstruksjon og kledning

Tømrerarbeid for nye konstruksjoner, fasadeendringer og vinterhage

Tømrerarbeid for hele byggeprosjektet

Trapper Innvendige trapper

🧱 Tre eller annet egnet materiale

Antall: 3

Trapper mellom sokkeletasje, 1. og 2. etasje

Innvendige trapper for adkomst mellom etasjer

Vinduer Åpningsbare soveromsvinduer

🧱 3-lags energiglass, lydisolerende Rw + Ctr ≥ 33 dB mot øst, sør og nord; 2-lags energiglass Rw + Ctr ≥ 25 dB mot vest

Antall: 14

Vinduer med lydisolasjon tilpasset støysoner, inkludert åpningsbare luftevinduer mot stille side

Vinduer til nye og eksisterende soverom og oppholdsrom med krav til lydisolasjon og ventilasjon

Elektro Elektriske installasjoner

Elektriske anlegg i nye og eksisterende rom, inkludert belysning og strømuttak

Elektriske installasjoner for bolig med påbygg og tilbygg

Terrasse Takterrasse og uteareal

Ny takterrasse på påbygg i 2. etasje, samt uteoppholdsareal med støyskjerming

Utearealer for rekreasjon med skjerming mot støy og innsyn

VVS Sanitærinstallasjoner

Oppgradering og nyinstallasjon av sanitær og vannbårne systemer i påbygg og tilbygg

VVS-installasjoner for nye bad og kjøkken, inkludert kontroll av sanitærinstallasjoner

Dører Ytterdører og verandadører

🧱 Tre eller tilsvarende, lydisolerende der det er nødvendig

Antall: 14

Dører til inngang, vinterhage, takterrasse og innvendige rom som stue, bad og garderobe

Dører tilpasset fasadeendringer og nye rom, inkludert dører til takterrasse og vinterhage

Gulv Innvendige gulvflater

🧱 Parkett, fliser og annet standard gulvbelegg

Gulv i nye og eksisterende rom, inkludert bad og stue

Innvendige gulvflater i bolig med standard materialvalg

Grunnarbeid Fundamentering og underbygg

Fundamentering for tilbygg og påbygg, inkludert underbygg under veranda

Grunnarbeid for nye konstruksjoner og tilbygg

Bad Sanitærutstyr og fliser

Antall: 4

Bad i sokkeletasje, 1. og 2. etasje med standard sanitærutstyr og fliser

Nye og oppgraderte bad med sanitærutstyr og flislagte overflater

Tak Valmtak, saltak og flatt tak

🧱 Taktekking og isolasjon iht. TEK17, inkludert takterrasse med rekkverk

Eksisterende tak med valmtak og saltak, nytt flatt tak på tilbygg og påbygg med takterrasse

Taktekking og isolasjon for påbygg, tilbygg og takterrasse, inkludert takterrasse med rekkverk

Betong Fundament og bærende konstruksjon

Endringer i bærende konstruksjon med nye laster, inkludert betongfundamenter

Betongarbeider for bærekonstruksjon og fundamentering

Fasade Tre kledning

🧱 Trepanel, malt eller beiset

Ny og eksisterende fasade i tre, med endringer i fasadeuttrykk og nye vinduer/dører

Fasadeendring med ny trepanelkledning og oppgradering av eksisterende fasade

Isolasjon Mineralull isolasjon

🧱 150 mm mineralull i yttervegger

Isolasjon i yttervegger og tak for å oppnå lyd- og varmeisolasjon iht. TEK17

Isolasjon for energieffektivitet og lydreduksjon

Maling Utvendig og innvendig maling

Maling av trepanel og innvendige overflater

Overflatebehandling for fasade og innvendige rom

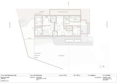
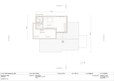
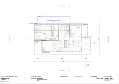
Plantegning

Enebolig 345.3 m²

Etasje 2 116.1 m²

Rom Areal Vinduer Dører
Soverom/stue 201 41.7 m² 3 2
Bad 202 5.4 m² 0 1
Garderobe 203 4.5 m² 0 1
Kjøkken 204 0.0 m² 0 1
Bad 205 0.0 m² 0 1
Gang 206 0.0 m² 0 0

Etasje 1 155.4 m²

Rom Areal Vinduer Dører
Stue 101 36.1 m² 1 2
Kjøkken 102 23.5 m² 1 1
Vinterhage 103 11.8 m² 3 1
Soverom 104 23.5 m² 1 2
Bad 105 5.5 m² 0 1
Soverom 106 16.5 m² 1 2
Bad 107 5.3 m² 0 1
Bod 108 10.4 m² 0 1
Gang 109 0.0 m² 0 0
Utvidet Takterrasse 110 0.0 m² 0 1

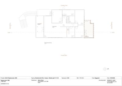
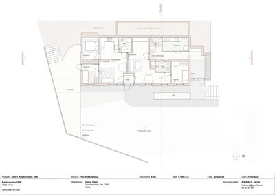
Etasje 0 73.8 m²

Rom Areal Vinduer Dører
Soverom 001 9.7 m² 0 2
Soverom 002 7.2 m² 0 2
Stue/kjøkken 003 24.4 m² 3 2
Bad 004 4.5 m² 0 1
Kjellerstue 005 25.2 m² 0 2
Gang med trapp 006 12.4 m² 0 2
Vaskerom 007 7.1 m² 0 1
Bad 008 3.5 m² 0 1
Soverom 009 8.6 m² 0 2
Entre 010 2.2 m² 0 2
Entre 011 11.2 m² 0 2

Fasader

Eksisterende bolig

Sør
Materiale
Tre
Taktype
Valmtak
Høyde
6.2 m
Mønehøyde
8.0 m
Vinduer
3
Dører
1
Balkonger
1
Synlige etasjer
2
Vest
Materiale
Tre
Taktype
Flatt tak
Høyde
5.9 m
Mønehøyde
5.2 m
Vinduer
5
Dører
1
Synlige etasjer
2
Øst
Materiale
Tre
Taktype
Saltak
Høyde
2.6 m
Mønehøyde
5.2 m
Vinduer
9
Dører
2
Synlige etasjer
2
Nord
Materiale
Tre
Taktype
Saltak
Høyde
2.6 m
Mønehøyde
5.2 m
Vinduer
3
Dører
1
Synlige etasjer
2

Tilbygg nord

Vest
Materiale
Tre
Taktype
Flatt tak
Høyde
3.0 m
Vinduer
0
Dører
1
Synlige etasjer
1

Hendelser

07.04.2026 61/140 Røykenveien 189C - Søknad om endring av bærende konstruksjon, fasadeendring, påbygg og tilbygg søknad