Extension Soeknad Enebolig

Tilbygg og løfteplattform på enebolig i Sædalsvegen 114, Bergen

📍 Sædalsvegen 114 , 5099 BERGEN

Nøkkelinfo

Sakstype
Tilbygg
Bygningstype
Enebolig
Bruksareal
30 m²
Boenheter
1
Kommune
Bergen
Fylke
Vestland
Gnr / Bnr
7 / 10
Saksnummer
BYGG-2026/12429
Fase
Søknad

Om byggesaken

Ny tilbygg på ca. 30,2 m² BRA til eksisterende enebolig i Sædalsvegen 114, bestående av to mindre tilbygg i 1. etasje: et soverom med gang og en forlengelse av eksisterende bod til inngangsparti. I tillegg etableres en løfteplattform som forbinder garasjeplan, 1. etasje og 2. etasje, innkapslet i isolerte vegger. I 2. etasje bygges en ny terrasse på ca. 23,7 m² over tilbygget, med et halvtak på ca. 14,1 m² som gir værbeskyttet adkomst fra løfteplattform til stue. Tilbyggene tilpasses eksisterende bygningsstruktur og materialbruk for å fremstå som en naturlig del av boligen. Prosjektet har fokus på universell utforming og forbedret tilgjengelighet.

Produkter og materialer

Grunnarbeid Fundamentering for tilbygg og løfteplattform

Fundamentering tilpasset eksisterende grunnforhold og bygg

Grunnarbeid for nye bygningsdeler og løfteplattform

Tømrer Bygging av tilbygg og sjakt

Tømrerarbeid for oppføring av tilbygg og isolert sjakt for løfteplattform

Maling Utvendig og innvendig maling

Maling og overflatebehandling tilpasset eksisterende bolig

Overflatebehandling av nye vegger, tak og detaljer

Trapper Løfteplattform (heis)

Antall: 1

Løfteplattform som forbinder garasjeplan, 1. og 2. etasje, innkapslet i isolerte vegger

Løfteplattform for universell tilgjengelighet mellom etasjer

Dører Terrassedør

Terrassedør fra terrasse til stue i 2. etasje

Adkomst fra terrasse til boligens stue

Elektro Elektrisk installasjon for løfteplattform

Antall: 1

Elektrisk installasjon og styring for løfteplattform

Terrasse Terrasse med halvtak

🧱 Tre eller tilsvarende materialer tilpasset eksisterende terrasse

Antall: 1

Ny terrasse på ca. 23,7 m² med halvtak på ca. 14,1 m² over tilbygg i 2. etasje

Forlengelse av eksisterende terrasse med værbeskyttet adkomst fra løfteplattform

Vinduer Fasadevindu

Vinduer i tilbygg og løfteplattform, tilpasset eksisterende bolig

Vinduer for naturlig lys i nye rom og sjakt

Tak Halvtak over terrasse

Antall: 1

Halvtak på ca. 14,1 m² over terrasse for værbeskyttelse

Tak over del av terrasse for beskyttelse mot vær og nedbør

Dører Ytterdør til inngangsparti

Antall: 1

Ny ytterdør i forlengelse av eksisterende bod til inngangsparti

Dør som gir innendørs tilgang til bod uten å gå utendørs

Fasade Tilbygg vegger

🧱 Isolerte vegger tilpasset eksisterende kledning

Isolerte vegger rundt løfteplattform og tilbygg, tilpasset eksisterende bolig og TEK17 krav

Vegger for to mindre tilbygg i 1. etasje og sjakt for løfteplattform i 2. etasje

Isolasjon Isolasjon i vegger og sjakt

Isolasjon i vegger rundt løfteplattform og tilbygg i henhold til TEK17

Isolasjon for varme- og lydisolering i nye bygningsdeler

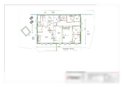
Plantegning

Enebolig 151.9 m²

Etasje 1 151.9 m²

Rom Areal Vinduer Dører
Kjeller stue 101 20.1 m² 1 1
Soverom 4 102 12.5 m² 1 1
Bad 103 5.5 m² 0 1
Bta 104 3.1 m² 0 1
Soverom 4 105 15.9 m² 1 1
Bad 106 6.0 m² 0 1
Soverom 2 107 7.3 m² 1 1
Soverom 3 108 7.1 m² 1 1
Wc 109 5.5 m² 0 1
Sports bod 110 4.8 m² 1 1

Fasader

Enebolig med hageleilighet

Øst
Vinduer
0
Dører
0
Balkonger
1
Synlige etasjer
1

Hendelser

10.04.2026 Sædalsvegen 114 Søknad om tillatelse i ett trinn 10/56