Extension Soeknad Enebolig

Ombygging og tilbygg av enebolig i Østsideveien 2313, Smøla

📍 Sætran, Østsideveien 2313 , 6570 SMØLA

Nøkkelinfo

Sakstype
Tilbygg
Bygningstype
Enebolig
Bruksareal
173 m²
Boenheter
1
Kommune
Smøla
Fylke
Møre og Romsdal
Gnr / Bnr
57 / 99
Saksnummer
26/00574
Fase
Søknad

Om byggesaken

Prosjektet omfatter ombygging og tilbygg av en eksisterende enebolig på 172,6 m² i Østsideveien 2313, Smøla. Bygget har to etasjer med flere soverom, bad, bod, stue, kjøkken og vaskerom. Tilbygget integreres i eksisterende bygningsstruktur og har et areal på ca. 15,8 m². Bygningen har trekledning og saltak, med flere vinduer og dører fordelt på fasadene. Tiltaket inkluderer utvendig etterisolering av yttervegger, utskifting av vinduer og ytterdører til energieffektive produkter, samt endringer i bærekonstruksjoner, fundamenter og våtrom. Prosjektet gir en betydelig teknisk og energimessig oppgradering av boligen, samtidig som det er tilpasset eksisterende konstruksjoner for å unngå omfattende inngrep.

Produkter og materialer

Maling Innvendig og utvendig maling

Overflatebehandling av nye og eksisterende flater

Maling og overflatebehandling som del av ferdigstilling

Fasade Yttervegger med trekledning

🧱 Tre

Utvendig etterisolering av yttervegger

Materialer og arbeid for utvendig etterisolering av trekledde yttervegger for å redusere varmetap

Grunnarbeid Fundamenter

Endringer i fundamenter som del av ombygging

Arbeid med fundamenter for å tilpasse tilbygg og ombygging

Dører Ytterdører

Antall: 6

Utskifting til nye energieffektive ytterdører

Nye ytterdører med forbedret isolasjon og tetting

Tak Saltak

🧱 Tre, taktekking ikke spesifisert

Eksisterende saltak beholdes, ingen endringer spesifisert

Saltak som taktype på eksisterende og tilbygg

Tømrer Bærekonstruksjoner

🧱 Tre

Endringer i bærekonstruksjoner innvendig og montering av trekonstruksjoner i tilbygg

Tømrerarbeid for ombygging og tilbygg, inkludert bærekonstruksjoner

Bad Våtromsarbeid

Antall: 2

Ombygging av bad og våtrom inkludert sanitærinstallasjoner

Oppgradering og ombygging av bad og vaskerom

Elektro Rådgivning og prosjektering

Rådgivning elektro er nevnt i tegninger, men ikke detaljert spesifisert

Elektroprosjektering og eventuelle installasjoner i ombygging og tilbygg

VVS Sanitærinstallasjoner

Sanitærinstallasjoner i våtrom og vaskerom

Oppgradering av sanitærinstallasjoner i forbindelse med ombygging

Vinduer Energieffektive vinduer

Antall: 20

Utskifting av eksisterende vinduer til nye energieffektive produkter

Nye vinduer med bedre isolasjon for å forbedre byggets energiytelse

Ventilasjon Ventilasjonssystem

Ventilasjon er nevnt i rådgivning, men ikke detaljert spesifisert

Ventilasjon for å sikre inneklima i ombygde og nye rom

Gulv Innvendige gulv

Ikke spesifisert, men nødvendig for ombygging og tilbygg

Materialer og arbeid for nye eller oppgraderte gulv i ombygde og nye rom

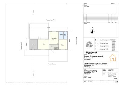
Plantegning

Enebolig 172.6 m²

Etasje 1 105.8 m²

Rom Areal Vinduer Dører
Stue 101 28.1 m² 1 1
Kjøkken/spis 102 22.6 m² 0 1
Entre 103 15.8 m² 0 1
Vaskerom 104 10.7 m² 1 1
Bad 105 8.6 m² 0 1
Bad 106 3.2 m² 0 1
Bod 107 8.8 m² 1 1

Etasje 2 66.8 m²

Rom Areal Vinduer Dører
Soverom 201 8.3 m² 1 1
Soverom 202 15.3 m² 1 1
Soverom 203 10.2 m² 1 1
Soverom 204 7.7 m² 1 1
Gang 205 12.3 m² 0 0
WC 206 1.3 m² 0 1
Bod 207 7.0 m² 1 1
Bod U01 8.8 m² 1 1
Soverom U02 12.8 m² 1 1
Gang U03 11.5 m² 0 2
Soverom U04 10.2 m² 1 1

Fasader

Enebolig

Nord
Materiale
Tre
Taktype
Saltak
Vinduer
5
Dører
1
Balkonger
1
Synlige etasjer
2
Sør
Materiale
Tre
Taktype
Saltak
Vinduer
5
Dører
2
Synlige etasjer
1
Vest
Materiale
Tre
Taktype
Saltak
Vinduer
1
Dører
0
Synlige etasjer
1
Øst
Materiale
Tre
Taktype
Saltak
Vinduer
1
Dører
0
Synlige etasjer
1

Hendelser

22.04.2026 26/00574-2 057/099 - Vedtak om tillatelse til oppføring av tilbygg
16.04.2026 26/00574-1 Østsideveien 2313 Søknad om tillatelse i ett trinn 57/99