Extension UnderBehandling Enebolig

Bruksendring, tilbygg og fasadeendring på Sandvikslien 27, Bergen

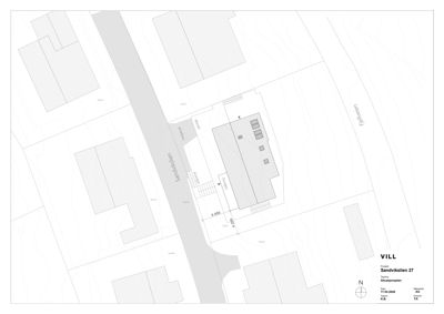
📍 Sandvikslien 27 , 5037 BERGEN

Nøkkelinfo

Sakstype
Tilbygg
Bygningstype
Enebolig
Bruksareal
209 m²
Boenheter
1
Kommune
Bergen
Fylke
Vestland
Gnr / Bnr
168 / 871
Saksnummer
BYGG-2025/16400
Fase
Under behandling

Om byggesaken

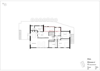
Prosjektet omfatter en omfattende oppgradering av en eksisterende enebolig fra 1960 på Sandvikslien 27 i Bergen. Det inkluderer legalisering av et tilbygg på 12 m² i 1. etasje mot nordøst, bruksendring av 34 m² kjellerareal fra tilleggsdel til hoveddel med nye romfunksjoner som soverom og kjellerstue, samt fasadeendringer med nye vinduer, dører og takvinduer. Det etableres en balkong på ca. 13 m² mot sørvest med tilhørende balkongdør. Det gjøres også inngrep i bærende konstruksjoner ved utskifting av takstoler med limtredragere og gulvløft i 2. etasje. Fasadematerialer inkluderer pusset hvitmalt murverk og trekledning, med murer og saltak i tegl. Balkongen får rekkverk i smijern. Byggets totale areal er ca. 209 m² over to etasjer pluss kjeller, med en grad av utnytting på ca. 25%.

Produkter og materialer

Isolasjon Fasadeisolering

Etterisolering av fasader i forbindelse med fasadeendringer

Isolasjon av fasader ved rehabilitering

Tømrer Bærekonstruksjoner og montering

🧱 Limtredragere

Utskifting av takstoler med limtredragere, gulvløft mellom 1. og 2. etasje, montering av balkong

Utførelse av bærende konstruksjonsendringer og montering av balkong

Gulv Gulvløft i 2. etasje

Løfting av gulv mellom 1. og 2. etasje for planløsning og sikkerhet

Endring av gulvkonstruksjon i 2. etasje

Vinduer Fasadevindu og takvindu

Antall: 14

Fasadevindu 1,13x1,38 m, 1,12x1,93 m, 0,97x0,97 m; takvinduer 660x1400 mm og 780x980 mm

Innsetting og utskifting av fasade- og takvinduer

Balkong Balkong med rekkverk i smijern

🧱 Smijern rekkverk

Antall: 1

Balkong ca. 12,9 m² mot sørvest, 5,1 m fra eiendomsgrense, med balkongdør

Oppføring av balkong med tilhørende dør og rekkverk

Elektro Ingen spesifikke elektroinstallasjoner nevnt

Ingen elektroinstallasjoner dokumentert i søknadstekstene

Mur Pusset murverk

🧱 Sementbasert fasadeplate

Tilbakeføring til opprinnelig materiale på murfasader, pusset og hvitmalt

Rehabilitering av murfasader med puss og maling

Tak Takvinduer

Antall: 5

Takvinduer i ulike størrelser, blant annet 660x1400 mm og 780x980 mm

Innsetting av takvinduer i takflaten mot nordøst

Dører Ytterdører og balkongdør

Antall: 4

Innsetting av ny ytterdør 1,03x2,11 m, utvidelse av dør 1,8x2,1 m, balkongdør 1,13x2,33 m

Innsetting og utvidelse av ytterdører og balkongdør

Fasade Fasadeendringer med vinduer og dører

🧱 Pusset hvitmalt murverk og trekledning

Nye fasadevindu 1,13x1,38 m, balkongdør 1,13x2,33 m, utvidelse av dører, 6 vinduer 0,97x0,97 m, 2 takvinduer mot nordøst

Innsetting og endring av fasadevinduer og dører, inkludert balkongdør og takvinduer

VVS Ingen spesifikke VVS-installasjoner nevnt

Ingen VVS-installasjoner dokumentert i søknadstekstene

Grunnarbeid Ingen spesifikke grunnarbeider nevnt

Ingen spesifikke grunnarbeider dokumentert i saken

Fasader

Enebolig

Nordøst
Materiale
Tre
Taktype
Saltak
Takmat.
Tegl
Vinduer
10
Dører
1
Synlige etasjer
2
Sørøst
Materiale
Mur
Taktype
Saltak
Vinduer
1
Dører
0
Balkonger
1
Synlige etasjer
2
Sørvest
Materiale
Tre
Taktype
Saltak
Vinduer
8
Dører
2
Balkonger
1
Synlige etasjer
2
Nordvest
Materiale
Mur
Taktype
Saltak
Vinduer
2
Dører
1
Synlige etasjer
1
Sydvest
Materiale
Tre
Taktype
Saltak
Vinduer
6
Dører
1
Balkonger
1
Synlige etasjer
2
Sydøst
Materiale
Tre
Taktype
Saltak
Vinduer
2
Dører
1
Synlige etasjer
1

Hendelser

28.03.2026 Sandvikslien Gjennomføringsplan 168/871
28.03.2026 Tilleggsopplysninger
25.03.2026 Behov for tilleggsopplysninger,168/871/0/0 Sandvikslien 27
17.03.2026 Søknad om endring av gitt tillatelse eller godkjenning 168/871
05.12.2025 Fakturagrunnlag
05.12.2025 ubw ordre 20683628
26.11.2025 Tillatelse til tiltak med ansvarsrett,168/871/0/0 Sandvikslien 27
20.11.2025 Byantikvarens tilbakemelding BYGG-2025/16400 168/871/0/0 Sandvikslien 27, bruksendring, tilbygg og fasadeendring bolig
23.10.2025 Intern høring,BYGG-2025/16400 168/871/0/0 Sandvikslien 27, bruksendring, tilbygg og fasadeendring bolig
23.10.2025 BEKREFTELSE PÅ UTVIDET SAKSBEHANDLINGSFRIST
20.10.2025 Tilleggsopplysninger - 168/871/0/0 Sandvikslien 27, bruksendring, tilbygg og fasadeendring bolig
17.10.2025 Behov for tilleggsopplysninger
16.10.2025 Supplering - 168/871/0/0 Sandvikslien 27, bruksendring, tilbygg og fasadeendring bolig
05.10.2025 Søknad om tillatelse i ett trinn 168/871