Extension Rammetillatelse Enebolig

Tilbygg og fasadeendring på enebolig, Skålevikstølen 15

📍 Skålevikstølen 15 , 5178 LODDEFJORD

Nøkkelinfo

Sakstype
Tilbygg
Bygningstype
Enebolig
Bruksareal
169 m²
Boenheter
1
Kommune
Bergen
Fylke
Vestland
Gnr / Bnr
143 / 119
Saksnummer
BYGG-2026/12300
Fase
Rammetillatelse

Om byggesaken

Ny altan på 68 m² med carport og sportsbod under oppføres på en eksisterende enebolig i Skålevikstølen 15. Tilbygget inkluderer fasadeendringer med innsetting av ny dør som utgang til altanen. Bygget har saltak og trekledning, og eksisterende ringmur suppleres med ny betongringmur for fundamentering av altan. Uthus med kjeller og sportsbod inngår i prosjektet. Altanens bærende konstruksjoner består av laminerte og trykkimpregnerte bjelker og søyler. Prosjektet omfatter også veg- og grunnarbeider, plasstøpte betongkonstruksjoner og tømrerarbeid.

Produkter og materialer

Garasjeport Carport

Antall: 1

Carport under altan

Carport integrert under ny altan

Fasade Trekledning

🧱 Tre

Trekledning på fasader med saltak

Kledning av ny altan og fasadeendringer på eksisterende enebolig

Annet Sportsbod

Antall: 1

Sportsbod under altan ved gavl

Sportsbod under altan for lagring

Grunnarbeid Veg- og grunnarbeider

Veg- og grunnarbeider for fundamentering av altan og carport

Grunnarbeider i forbindelse med ny altan og carport

Trapper Innvendig trapp

Antall: 1

Innvendig trapp i enebolig

Stål Laminert bjelke og søyler

🧱 Laminert trevirke, trykkimpregnert

Drager 140x225mm GL30c, søyler 198x198mm laminert og trykkimpregnert trevirke

Bærende konstruksjoner for altan og carport

Vinduer Fasadevindu

Antall: 14

Vinduer i fasade, totalt 14 stk fordelt på enebolig og uthus

Tak Saltak

🧱 Tre

Saltak på eksisterende og tilbygg

Taktekking med saltak på enebolig og tilbygg

Dører Ytterdører

Antall: 10

Ytterdører i enebolig og uthus, inkludert ny dør til altan

Betong Ringmur og fundament

🧱 Betong

Ny ringmur ved eksisterende natursteinsmur, plasstøpte betongkonstruksjoner for fundamentering av altan

Betongfundamenter og ringmur for altan og tilbygg

Tømrer Trekonstruksjoner altan og fasade

🧱 Tre

Tømrerarbeid og montering av trekonstruksjoner for altan og fasadeendring

Oppføring av altan, carport og fasadeendringer

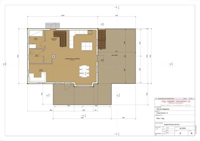
Plantegning

Enebolig 168.7 m²

Etasje 1 168.7 m²

Rom Areal Vinduer Dører
STUE 101 9.3 m² 1 1
KJØKKEN 102 47.3 m² 2 1
GANG/ENTRE 103 9.4 m² 0 1
SOV 104 6.2 m² 1 1
BAD 105 4.5 m² 0 1
ALTAN 106 68.0 m² 0 1

Uthus 104.5 m²

Etasje 0 104.5 m²

Rom Areal Vinduer Dører
Gang 001 5.6 m² 0 4
Vaskerom 002 12.2 m² 1 1
Bod 003 10.0 m² 1 1
Kjeller rom 004 19.0 m² 1 1
Kjellerom 005 13.4 m² 1 1
Bod 006 5.6 m² 0 0
Sportsbod 007 14.7 m² 1 1

Fasader

Enebolig

Aust
Materiale
Tre
Taktype
Saltak
Vinduer
1
Dører
1
Balkonger
1
Synlige etasjer
1
Nord
Materiale
Tre
Taktype
Saltak
Vinduer
4
Dører
0
Synlige etasjer
2
Vest
Materiale
Tre
Taktype
Saltak
Vinduer
4
Dører
1
Balkonger
1
Synlige etasjer
2
Sør
Materiale
Tre
Taktype
Saltak
Vinduer
4
Dører
1
Balkonger
1
Synlige etasjer
2

Hendelser

10.04.2026 Tillatelse til tiltak med ansvarsrett, 143/119, Skålevikstølen 15
07.04.2026 Skålevikstølen 15 Søknad om tillatelse i ett trinn 143/119