Extension UnderBehandling Enebolig

Tilbygg og fasadeendring på enebolig i Skanseveien 2, Drøbak

📍 Skanseveien 2 , 1445 DRØBAK

Nøkkelinfo

Sakstype
Tilbygg
Bygningstype
Enebolig
Bruksareal
14 m²
Boenheter
1
Kommune
Frogn
Fylke
Akershus
Gnr / Bnr
63 / 122
Saksnummer
26/10271
Fase
Under behandling

Om byggesaken

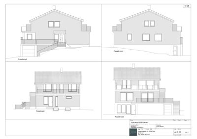
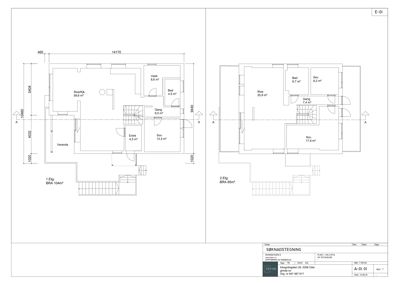
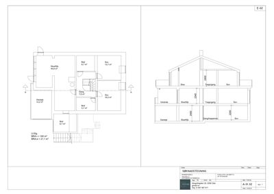
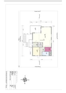
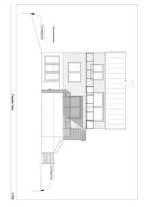
Ny frittstående bod på 13,5 m² oppføres mellom eneboligen og nabogrense i nord, med samtykke fra nabo. Det er også utført pigging av kjellerdekke for bedre takhøyde. Tilbygget har flatt tak og er i tre, mens hovedhuset har saltak og trekledning. Fasadeendringer omfatter oppdaterte fasader med nye vinduer og dører. Totalt areal for boligen er ca. 337,7 m² fordelt på flere etasjer, inkludert kjeller og garasje. Prosjektet inkluderer korrigering av tidligere feil i målsetting og oppdatering av situasjonsplan og snitt.

Produkter og materialer

Garasjeport Garasjeport til enebolig

Antall: 1

Garasjeport på fasade syd og vest

Garasjeport tilknyttet enebolig

Grunnarbeid Pigging av kjellerdekke

Pigging av kjellerdekke for økt takhøyde

Grunnarbeid i kjeller for å øke takhøyde

Tak Saltak og flatt tak

Saltak på hovedhus, flatt tak på tilbygg

Taktekking for hovedhus og tilbygg med ulik takform

Fasade Tre kledning

🧱 Tre

Fasader i tre med saltak på hovedhus, flatt tak på tilbygg

Tre kledning på hovedhus og tilbygg, med saltak på hovedhus og flatt tak på tilbygg

Dører Ytterdører og verandadører

Antall: 19

Dører fordelt på fasader og etasjer, inkludert verandadører

Ytterdører og verandadører til enebolig og tilbygg

Pipe Pipe i tre fasader

Antall: 1

Pipe på fasade syd, nord, øst og vest

Pipe tilknyttet enebolig

Tømrer Tilbygg og bod

🧱 Tre

Frittstående bod på 13,5 m² i tre, tilbygg på enebolig

Tømrerarbeid for oppføring av tilbygg og bod

Mur Grunnmur og fundament

Oppdatering av grunnmur i forbindelse med tilbygg og kjellerarbeid

Grunnmur og fundament for tilbygg og kjeller

Vinduer Fasadevindu

🧱 Tre eller aluminium (ikke spesifisert)

Antall: 29

Vinduer fordelt på fasader og etasjer, totalt ca. 29 vinduer

Vinduer til fasader og etasjer i eneboligen og tilbygg

Fasader

Enebolig

Sør
Materiale
Tre
Taktype
Saltak
Vinduer
5
Dører
1
Balkonger
1
Synlige etasjer
2
Syd
Materiale
Tre
Taktype
Saltak
Vinduer
3
Dører
1
Balkonger
2
Synlige etasjer
2
Nord
Materiale
Tre
Taktype
Saltak
Vinduer
4
Dører
1
Balkonger
2
Synlige etasjer
2
Øst
Materiale
Tre
Taktype
Saltak
Vinduer
5
Dører
1
Balkonger
1
Synlige etasjer
2
Vest
Materiale
Tre
Taktype
Saltak
Vinduer
8
Dører
1
Balkonger
2
Synlige etasjer
2

Tilbygg

Øst
Materiale
Tre
Taktype
Flatt tak
Vinduer
2
Dører
0
Synlige etasjer
1

Hendelser

14.04.2026 26/10271-5 63/122/0/0 - Skanseveien 2 - Endring - Fasade - Tilbygg - Enebolig - Ber om redegjørelse
14.04.2026 26/10271-4 63/122/0/0 - Skanseveien 2 - Endring - Fasade - Tilbygg - Enebolig - Behov for ytterligere opplysninger
14.04.2026 26/10271-2 63/122/0/0 - Skanseveien 2 - Endring - Fasade - Tilbygg - Enebolig - Behov for ytterligere opplysninger
16.03.2026 26/10271-1 Søknad om tillatelse til tiltak i ett trinn med ansvar - 3 uker - 63/122/0/0 - Skanseveien 2 - Endring - Fasade - Tilbygg - Enebolig