Extension Ferdigattest Enebolig

Bruksendring, fasadeendring og tilbygg på enebolig i Skraneskogen 76

📍 Skraneskogen 76 , 5252 SØREIDGREND

Nøkkelinfo

Sakstype
Tilbygg
Bygningstype
Enebolig
Bruksareal
257 m²
Boenheter
1
Kommune
Bergen
Fylke
Vestland
Gnr / Bnr
116 / 25
Saksnummer
BYGG-2025/14353
Fase
Ferdigattest

Om byggesaken

Prosjektet omfatter en bruksendring av loftet fra tilleggsdel til hoveddel, fasadeendring med utskifting og fjerning av sprosser på vinduer og dører, samt oppføring av et tilbygg vinterhage på 15,6 m². Eneboligen har et totalt BRA på 257,1 m² inkludert tilbygg på ca. 20 m². Det er foretatt innvendige endringer som flytting av bærevegg mellom kjøkken og soverom med ny drager, samt mindre planendringer i 1. etasje. Fasaden består av tre med saltak, og tilbygget har valmtak. Vinterhagen har 3 vinduer og 1 dør, og det er dokumentert at avstand til nabogrense er over 4 meter. Prosjektet er ferdigstilt med utstedt ferdigattest.

Produkter og materialer

Fasade Kledning i tre

🧱 Tre

Fasade i tre med utskifting av kledning der nødvendig, fjerning av sprosser

Oppgradering av fasade med ny kledning og vinduer

Tak Saltak og valmtak

🧱 Tre, taktekking ikke spesifisert

Eksisterende saltak på enebolig, valmtak på tilbygg vinterhage

Takstruktur for eksisterende bolig og tilbygg vinterhage

Dører Ytterdører uten sprosser

🧱 Tre/Aluminium

Antall: 4

Dører oppgradert/fjernet sprosser i fasadeendring

Utskifting av ytterdører i forbindelse med fasadeendring

Tilbygg Vinterhage

🧱 Tre, glassvinduer

Antall: 1

Tilbygg vinterhage på 15,6 m² med 3 vinduer og 1 dør

Oppføring av vinterhage som tilbygg til enebolig

VVS Rør-i-rør system

Ny rør-i-rør installasjon i våtrom

Oppgradering av vann- og avløpsinstallasjoner

Elektro Elektrisk anlegg

Full utskifting av elektrisk anlegg i loft, utført av OneCo elektro

Oppgradering av elektrisk installasjon i loft

Vinduer Fasadevindu uten sprosser

🧱 Tre/Aluminium

Antall: 14

Vinduer byttet til uten sprosser, 3-lags energiglass antatt

Utskifting av eksisterende vinduer til nye uten sprosser som del av fasadeendring

Gulv Innvendige gulv

Renovering av gulv i stue og kjøkken, detaljer ikke spesifisert

Oppgradering av gulvflater i 1. etasje

Bad Bad og vaskerom

Oppgradering og renovering av bad og vaskerom, inkludert nytt rør-i-rør system installert av Svanevik VVS

Oppgradering av våtrom i bolig

Grunnarbeid Understøping og fundamentering

Understøping av garasje og fundamentering av tilbygg vinterhage

Grunnarbeider for tilbygg og garasje

Tømrer Bærevegg og lettvegg

🧱 Tre, stål drager

Flytting av bærevegg mellom kjøkken og soverom med ny drager, oppsetting av ny lettvegg

Innvendige konstruksjonsendringer i 1. etasje

Dører Inngangsdør

🧱 Tre/Aluminium

Antall: 1

Ny inngangsdør i tilbygg inngangsparti

Oppgradering av inngangsparti med ny dør

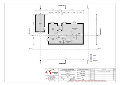
Plantegning

Garasje 0.0 m²

Etasje 1 0.0 m²

Rom Areal Vinduer Dører
Garasje 0 0.0 m² 0 0

Enebolig 168.5 m²

Etasje 0 120.5 m²

Rom Areal Vinduer Dører
Garasje Garasje 17.2 m² 1 1
Stue m/kjøkken 101 35.7 m² 2 1
Sov 102 9.8 m² 1 1
Vask 103 9.5 m² 0 1
Gang 104 9.6 m² 0 3
Bad 105 3.9 m² 0 1
Mat 106 2.7 m² 0 1
Vask / bod 107 3.0 m² 0 1
V.F. 108 2.8 m² 0 1
Gang 001 12.3 m² 0 2
Vaskerom 002 9.5 m² 1 1
Vask/bod 003 4.5 m² 0 1
Stue/kjøkken 004 35.0 m² 3 1
Sov 005 9.5 m² 1 1
TV-stue 006 6.4 m² 1 1
Kjøkken 007 11.4 m² 1 1
WC 008 3.0 m² 0 1

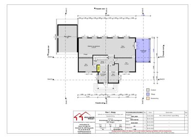
Etasje 1 48.0 m²

Rom Areal Vinduer Dører
Loft 101 48.0 m² 0 0
Stue 102 25.8 m² 3 1
Sov 103 9.8 m² 1 1
Sov 104 11.2 m² 1 1
Gang 105 9.2 m² 0 2
V.F./Entré 106 8.0 m² 1 1
Bad 107 8.2 m² 1 1
Vinterhage 108 15.6 m² 3 1

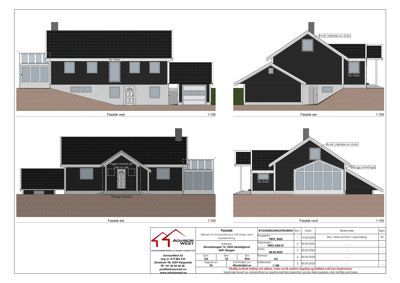
Fasader

Tilbygg

Ukjent
Materiale
Tre
Taktype
Valmtak
Høyde
2.4 m
Mønehøyde
3.4 m
Vinduer
2
Dører
1
Synlige etasjer
1

Enebolig

Vest
Materiale
Tre
Taktype
Saltak
Vinduer
5
Dører
1
Synlige etasjer
2
Sør
Materiale
Tre
Taktype
Saltak
Vinduer
2
Dører
1
Synlige etasjer
2
Øst
Materiale
Tre
Taktype
Saltak
Vinduer
2
Dører
1
Synlige etasjer
2
Nord
Materiale
Tre
Taktype
Saltak
Vinduer
1
Dører
0
Synlige etasjer
2

Hendelser

17.11.2025 Ferdigattest, 116/25, Skraneskogen 76
04.11.2025 Skraneskogen 76 Søknad om ferdigattest 116/25
11.08.2025 Fakturagrunnlag
11.08.2025 Ubw ordre 20674879
14.07.2025 Tillatelse, 116/25, Skraneskogen 76
11.07.2025 Tilbakemelding vedrørende behov for tilleggsopplysninger
11.07.2025 Skraneskogen 76 Supplering av søknad 116/25
09.07.2025 Behov for tilleggsopplysninger - 116/25/0/0 Skraneskogen 76, bruksendring, fasadeendring og tilbygg bolig
03.07.2025 Skraneskogen 76 Søknad om tillatelse i ett trinn 116/25