Extension Soeknad Enebolig

Tilbygg, fasadeendring og bruksendring i enebolig, Søvikhaugen 52

📍 Søvikhaugen 52 , 5251 SØREIDGREND

Nøkkelinfo

Sakstype
Tilbygg
Bygningstype
Enebolig
Bruksareal
308 m²
Boenheter
1
Kommune
Bergen
Fylke
Vestland
Gnr / Bnr
38 / 258
Saksnummer
BYGG-2026/12297
Fase
Søknad

Om byggesaken

Ny tilbygg på ca. 32 m² i to etasjer mot sør på eksisterende enebolig i Søvikhaugen 52. Tilbygget innebærer sanering av eksisterende karnapper, endring av planløsning med snuing av trappeløp, og bruksendring av 21,7 m² fra bod til boligformål i 1. etasje. Fasadeendringer omfatter ny kledning og nye vindusløsninger på alle fasader. Bygget har saltak på øst- og vestfasade og flatt tak på nord- og sørfasade, med tre som fasademateriale. Det er en balkong på 6,3 m² og terrasse på 53,1 m² i 2. etasje. Totalt areal etter tiltak er ca. 308 m².

Produkter og materialer

Grunnarbeid Fundamentering og grunnmur

Fundamentering for tilbygg og understøttelse av stålbjelke på eksisterende grunnmur

VVS Sanitærinstallasjoner

Oppdatering av VVS i forbindelse med bruksendring og tilbygg

Terrasse Terrasse og balkong

Antall: 2

Balkong på 6,3 m² og terrasse på 53,1 m² i 2. etasje

Utendørs balkong og terrasse som del av tilbygg

Tak Saltak og flatt tak

Saltak på øst- og vestfasade, flatt tak på nord- og sørfasade

Nytt tak på tilbygget og endring av eksisterende takflater

Vinduer Fasadevindu

Antall: 14

Nye vindusløsninger i alle fasader, totalt 14 vinduer

Nye fasadevinduer som del av fasadeendring og tilbygg

Dører Ytterdører og balkongdører

Antall: 11

Dører i fasader og balkongdør til balkong og terrasse

Nye ytterdører og balkongdører i forbindelse med tilbygg og fasadeendring

Trapper Innvendig trapp

Antall: 1

Trappeløp snus 180 grader i planløsning

Endring av innvendig trapp mellom 1. og 2. etasje

Stål Stålbjelke

🧱 Stål

Antall: 1

Dimensjonert stålbjelke understøttet på eksisterende grunnmur mot sør

Bærekonstruksjon for del av yttervegg i tilbygg

Gulv Innvendige gulv

Nye gulv i tilbygget og endrede rom i 1. etasje ved bruksendring

Elektro Elektriske installasjoner

Elektriske installasjoner i nytt tilbygg og endrede rom

Tømrer Bygningskonstruksjoner

🧱 Tre

Tømrerarbeid for tilbygg, endring av bæresystem og fasadeendringer

Fasade Tre kledning

🧱 Tre

Endring av kledning på alle fasader

Ny trepanelkledning på alle fasader som del av fasadeendring

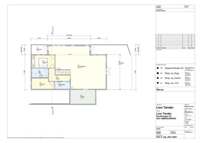
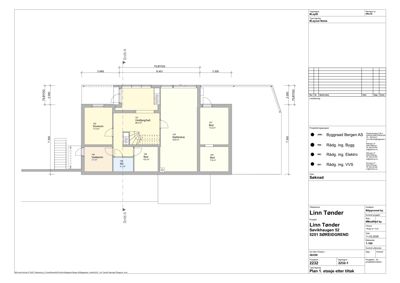
Plantegning

Enebolig 340.5 m²

Etasje 1 120.5 m²

Rom Areal Vinduer Dører
Vindfang/hall 101 28.2 m² 0 4
Soverom 102 11.5 m² 1 1
Kjellerstue 103 33.8 m² 1 1
Vaskerom 104 7.7 m² 0 1
Wc 105 3.1 m² 0 1
Bod 106 6.5 m² 0 1
Bod 107 11.8 m² 1 1
Bod 108 7.8 m² 0 0

Etasje 2 220.0 m²

Rom Areal Vinduer Dører
Stue/kjøkken 201 80.7 m² 3 2
Gang 202 7.1 m² 0 2
Garderobe 203 4.7 m² 0 1
Soverom 204 12.4 m² 1 1
Soverom 205 9.4 m² 1 1
Bad 206 6.5 m² 0 1
Balkong 207 6.3 m² 0 1
Terrasse 208 53.1 m² 0 1
Kontor 209 15.2 m² 1 1

Fasader

Enebolig

Nord
Materiale
Tre
Taktype
Flatt tak
Vinduer
4
Dører
1
Balkonger
1
Synlige etasjer
2
Sør
Materiale
Tre
Taktype
Flatt tak
Vinduer
4
Dører
1
Balkonger
1
Synlige etasjer
2
Øst
Materiale
Tre
Taktype
Saltak
Vinduer
3
Dører
1
Synlige etasjer
2
Vest
Materiale
Tre
Taktype
Saltak
Vinduer
4
Dører
1
Balkonger
1
Synlige etasjer
2

Hendelser

09.04.2026 38/258/0/0 Søvikhaugen 52, tilbygg, fasadeendring og bruksendring bolig
06.04.2026 Søvikhaugen 52 Søknad om rammetillatelse 38/258