Extension UnderBehandling Enebolig

Utvendig tilbygg på enebolig i Stabburshaugen 63, Bodø

📍 Stabburshaugen 63 , 8020 BODØ

Nøkkelinfo

Sakstype
Tilbygg
Bygningstype
Enebolig
Bruksareal
287 m²
Boenheter
1
Kommune
Bodø
Fylke
Nordland - Nordlánnda
Gnr / Bnr
42 / 943
Saksnummer
2026/280
Fase
Under behandling

Om byggesaken

Ny utvendig tilbygg på eksisterende enebolig i Stabburshaugen 63, Bodø, med et samlet tilleggsareal på 65 m² fordelt på sokkeletasje, 1. og 2. etasje. Tilbygget plasseres over eksisterende carport og sportsbod, med samme takform og lavere gesimshøyde enn eksisterende bygg. Bygget har saltak og trekledning, og inkluderer blant annet utvidelse av oppholdsrom og balkong. Tilbygget er tilpasset eksisterende bebyggelse og terreng, og har gode solforhold uten vesentlig skygge på naboeiendommer. Det er to trapper i bygget, og fasadene har flere vinduer og dører i tre med saltak. Prosjektet inkluderer også carport på 28,4 m².

Produkter og materialer

Carport Carport

🧱 Tre og taktekking

Antall: 1

Eksisterende carport på 28,4 m² under tilbygget

Carport under tilbygget

Tak Saltak

🧱 Taktekking ikke spesifisert

Saltak med lavere gesimshøyde enn eksisterende bygg

Taktekking for tilbygget med saltak

Elektro Elektrisk installasjon

Elektriske installasjoner må oppgraderes i tilbygget

Elektrisk anlegg for nytt tilbygg

Isolasjon Bygningsisolasjon

Isolasjon iht TEK for yttervegger, tak og gulv i tilbygget

Isolasjon for energieffektivitet og komfort

Gulv Innvendige gulvflater

Innvendige gulv i tilbygget, materialvalg ikke spesifisert

Gulv i tilbygget, sannsynligvis parkett eller fliser i våtrom

Betong Fundament og sokkel

Tilbygg i sokkeletasje, fundamentert iht tegninger

Betongfundament og sokkel for tilbygget

Dører Ytterdører og balkongdør

🧱 Tre

Antall: 3

Dører i tilbygget inkludert balkongdør

Ytterdører og balkongdør i tilbygget

Maling Innvendig og utvendig maling

Maling av fasade og innvendige flater i tilbygget

Overflatebehandling for beskyttelse og estetikk

VVS Vann og avløp

Bad og vaskerom i tilbygget krever VVS-installasjoner

VVS-installasjoner for bad og vaskerom i tilbygget

Fasade Trekledning

🧱 Tre

Tilbygg med samme takform og gesims som eksisterende bygg, trekledning i fasader

Fasadebekledning i tre for tilbygget

Trapper Innvendige trapper

Antall: 2

To trapper i bygget, iht plantegninger

Innvendige trapper for etasjeadkomst

Grunnarbeid Fundamentering og terrengtilpasning

Terrengsnitt viser at eksisterende terreng ikke endres vesentlig

Grunnarbeid for tilbygg og carport, tilpasning til eksisterende terreng

Vinduer Fasadevindu

🧱 Tre

Antall: 8

Vinduer i fasader, antall og plassering iht tegninger

Nye vinduer i tilbygget for dagslys og utsyn

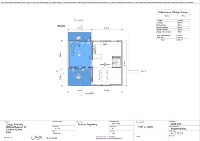
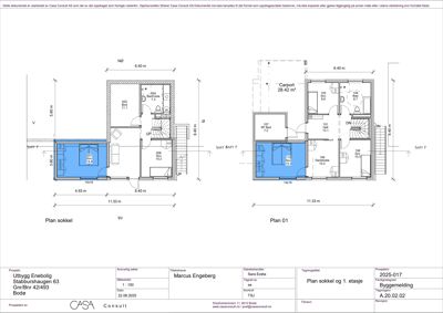
Plantegning

Enebolig 213.1 m²

Etasje 0 45.1 m²

Rom Areal Vinduer Dører
Bod 003 11.1 m² 0 1
Bad/Vask 004 7.3 m² 0 1
Sov 006 10.2 m² 1 1
Sov 007 14.9 m² 1 1

Etasje 1 107.0 m²

Rom Areal Vinduer Dører
Hall 101 13.1 m² 0 4
Sov 103 8.6 m² 1 1
Bad 104 8.7 m² 0 1
Sov 106 10.3 m² 1 1
SP Bod 107 7.2 m² 0 1
Garderobe 108 10.2 m² 0 1
Sov 110 15.3 m² 1 1
Carport Carport 28.4 m² 0 0

Etasje 2 61.0 m²

Rom Areal Vinduer Dører
Balkong 205 8.2 m² 0 1
Stue 202 25.4 m² 3 1
Terrasse 203 16.4 m² 0 0
Kjøkken/Opphold 201 48.5 m² 0 1

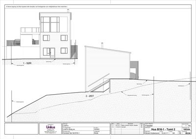
Fasader

Enebolig

Nordøst
Materiale
Tre
Taktype
Saltak
Vinduer
4
Dører
1
Synlige etasjer
2
Øst
Materiale
Tre
Taktype
Saltak
Vinduer
0
Dører
1
Synlige etasjer
2
Vest
Materiale
Tre
Taktype
Saltak
Vinduer
1
Dører
0
Synlige etasjer
2
Sørvest
Materiale
Tre
Taktype
Saltak
Vinduer
8
Dører
1
Balkonger
1
Synlige etasjer
3

Hus B16-1

Sør
Materiale
Tre
Taktype
Saltak
Vinduer
4
Dører
1
Balkonger
1
Synlige etasjer
2
Øst
Materiale
Tre
Taktype
Saltak
Vinduer
0
Dører
0
Synlige etasjer
1

Hendelser

09.04.2026 Etterspurt status i saken
09.02.2026 Stabburshaugen 63 Supplering av søknad 42/943
02.02.2026 Stabburshaugen 63 Supplering av søknad 42/943
22.01.2026 Foreløpig svar - behov for tilleggsdokumentasjon
05.01.2026 Ett-trinns søknad - Stabburshaugen 63
05.01.2026 Bekreftelse mottatt søknad - Stabburshaugen 63