Facade
Fasadetegning som viser bygningens utseende fra sør-vest og sør-øst.
1 / 7
Extension
Soeknad
Enebolig
Tilbygg med hagestue på Steinaldervegen 30, Bryne
📍 Steinaldervegen 30 , 4345 BRYNE
Nøkkelinfo
- Sakstype
- Tilbygg
- Bygningstype
- Enebolig
- Bruksareal
- 33 m²
- Boenheter
- 1
- Kommune
- Time
- Fylke
- Rogaland
- Gnr / Bnr
- 19 / 435
- Saksnummer
- 2026/1887
- Fase
- Søknad
Om byggesaken
Ny tilbygg på 32,85 m² bestående av en hagestue med overbygget uteoppholdsareal og utebod for lagring, tilknyttet eksisterende enebolig på Steinaldervegen 30. Tilbygget har saltak og er tilpasset eksisterende bolig og tomt, med tre som fasademateriale. Hagestuen har ett vindu og en dør, og det er en nedsenket platting med dør til utearealet. Bygget gir skjermet uteplass og lagringsmulighet, og bidrar til bedre utnyttelse av utearealet uten vesentlige ulemper for naboer.
Produkter og materialer
Grunnarbeid
Fundamentering og grunnmur
Grunnmur under plen, tilpasset eksisterende terreng
Fundamentering og grunnmur for tilbygg
Dører
Ytterdør
Antall: 2
To dører, en til hagestue og en til nedsenket platting
Vinduer
Fasadevindu
Antall: 1
Ett vindu i hagestue tilbygg
Maling
Utvendig maling
Maling av trefasade på tilbygg
Tak
Saltak
Saltak på tilbygg
Tak med saltak konstruksjon på tilbygg
Fasade
Tre kledning
🧱 Tre
Tilbygg tilpasset eksisterende trehusfasade
Trepanel til fasade på tilbygg for å matche eksisterende bolig
Terrasse
Nedsenket platting
Antall: 1
Nedsenket platting på 16,7 m²
Nedsenket platting som del av uteoppholdsareal tilbygg
Isolasjon
Vegger og tak
Isolasjon i vegger og tak for tilbygg
Tømrer
Bygningskonstruksjon
Tømrerarbeid for oppføring av tilbygg og hagestue
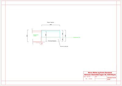
Plantegning
Hagestove 32.9 m²
Etasje 1 32.9 m²
| Rom | Areal | Vinduer | Dører |
|---|---|---|---|
| Utestove 101 | 16.1 m² | 1 | 1 |
| Nedsenket platting 102 | 16.7 m² | 0 | 1 |
Fasader
Enebolig
Sørvest
- Materiale
- Tre
- Taktype
- Saltak
- Vinduer
- 6
- Dører
- 1
- Balkonger
- 1
- Synlige etasjer
- 2
Søro
- Materiale
- Tre
- Taktype
- Saltak
- Vinduer
- 5
- Dører
- 1
- Balkonger
- 1
- Synlige etasjer
- 2
Hendelser
21.04.2026
Steinaldervegen 30 Søknad om tillatelse til tiltak uten ansvarsrett 19/435