Facade
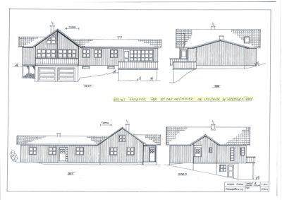
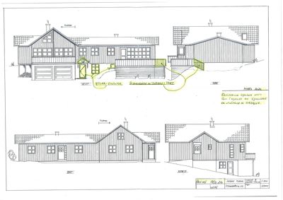
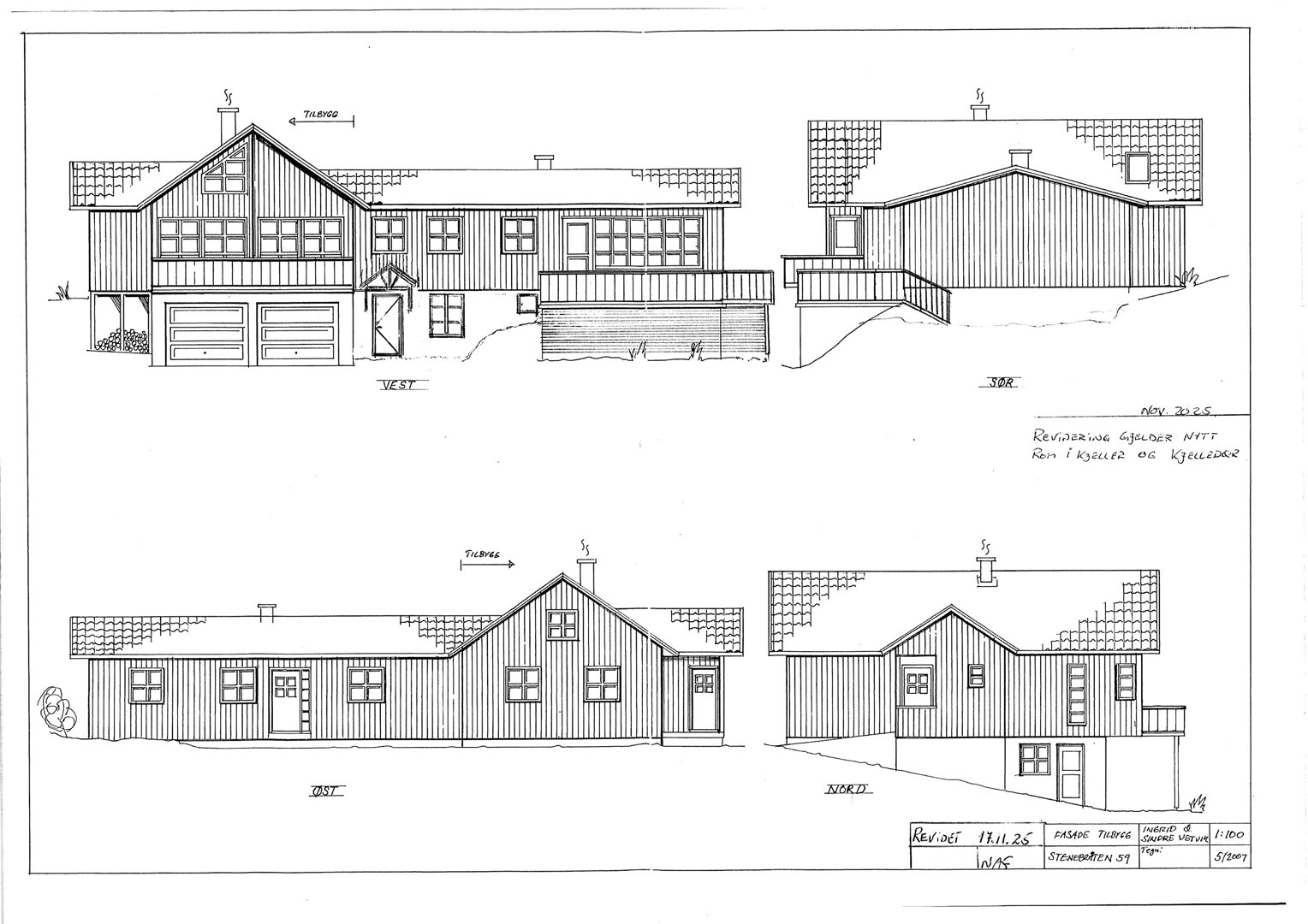
Fasadetegning som viser bygningens utseende fra fire ulike vinkler (vest, øst, nord og sør).
1 / 7
Extension
Unknown
Enebolig
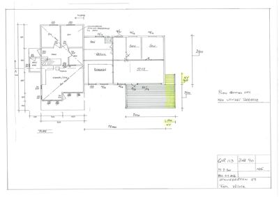
Oppføring av nytt rom i kjeller med utvidet bruksareal
📍 Stenebråten 59 , 1628 ENGELSVIKEN
Nøkkelinfo
- Sakstype
- Tilbygg
- Bygningstype
- Enebolig
- Kommune
- Fredrikstad
- Fylke
- Østfold
- Gnr / Bnr
- 113 / 90
- Saksnummer
- 2026/3708
- Fase
- Unknown
Om byggesaken
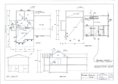
Saken gjelder søknad om å oppføre et nytt rom i kjelleren på enebolig ved Stenebråten 59, noe som gir utvidet totalt bruksareal.
Fasader
Enebolig
Vest
- Materiale
- Tre
- Taktype
- Saltak
- Vinduer
- 10
- Dører
- 2
- Balkonger
- 1
- Synlige etasjer
- 2
Sør
- Materiale
- Tre
- Taktype
- Saltak
- Vinduer
- 2
- Dører
- 1
- Balkonger
- 1
- Synlige etasjer
- 2
Øst
- Materiale
- Tre
- Taktype
- Saltak
- Vinduer
- 5
- Dører
- 2
- Synlige etasjer
- 1
Nord
- Materiale
- Tre
- Taktype
- Saltak
- Vinduer
- 4
- Dører
- 1
- Synlige etasjer
- 2
Hendelser
13.04.2026
Svar - Tilleggsopplysninger - 2026/80199 - Stenebråten 59 - Eiendom 113/90 - Nytt rom i kjeller - Utvidet bruksareal
13.04.2026
Oversendelse av tegninger - Stenebråten 59
09.04.2026
Tilleggsopplysninger - Stenebråten 59
06.02.2026
Svar på generell henvendelse - Stenebråten 59 - Eiendom 113/90 - Nytt rom i kjeller - Utvidet bruksareal
02.02.2026
Generell henvendelse - Stenebråten 59 - Eiendom 113/90 - Nytt rom i kjeller - Utvidet bruksareal
02.02.2026
Tilleggsdokumentasjon - Stenebråten 59 - Eiendom 113/90 - Nytt rom i kjeller - Utvidet bruksareal