Extension Soeknad Enebolig

Tilbygg med dispensasjon fra byggegrense på Stølen 14A, Fitjar

📍 Stølen 14A , 5419 FITJAR

Nøkkelinfo

Sakstype
Tilbygg
Bygningstype
Enebolig
Bruksareal
50 m²
Boenheter
1
Kommune
Fitjar
Fylke
Vestland
Gnr / Bnr
65 / 219
Saksnummer
2026/316
Fase
Søknad

Om byggesaken

Ny utvidelse av eksisterende balkonger på en enebolig på Stølen 14A og 14B i Fitjar, med en samlet tilleggsflate på under 50 m². Tilbygget plasseres nærmere kommunal vei enn gjeldende byggegrense på 15 meter, med ny avstand på ca. 11,65 meter. Bygget er i tre med saltak, og eksisterende bolig har ett til to etasjer med flere vinduer og dører. Balkongutvidelsen påvirker ikke sikt eller tilgjengelighet for brøytebil, utrykningskjøretøy eller gående. Tiltaket er søknadspliktig og krever dispensasjon fra byggegrense, som er innvilget.

Produkter og materialer

Grunnarbeid Fundamentering for balkongutvidelse

Fundamentering må tilpasses for balkongutvidelsen nær byggegrense

Grunnarbeid og fundamentering for nytt balkongareal

Maling Utvendig maling

🧱 Trebeskyttelse/maling

Maling og behandling av ny balkong og fasade i tre

Overflatebehandling av balkong og fasade etter utvidelse

Tak Saltak

🧱 Tre, takstein

Eksisterende saltak må vurderes i forhold til balkongutvidelse

Takarbeid for tilpasning til balkongutvidelse

Fasade Balkongutvidelse

🧱 Tre

Antall: 2

Utvidelse av eksisterende balkonger på Stølen 14A og 14B, mot vest, nær kommunal vei

Materialer og konstruksjon for utvidelse av to eksisterende balkonger i tre, tilpasset eksisterende fasade og byggestil

Tømrer Bygging av tilbygg/balkong

🧱 Tre

Tømrerarbeid for oppføring av balkongutvidelse i tre

Vinduer Fasadevindu

🧱 Tre/Aluminium

Eksisterende fasade har flere vinduer i tre, tilpasset saltak og trefasade

Eventuell justering eller tilpasning av vinduer i forbindelse med balkongutvidelse

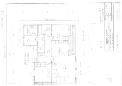
Plantegning

Enebolig 100.8 m²

Etasje 1 100.8 m²

Rom Areal Vinduer Dører
Stue 101 18.0 m² 1 1
Sov 1 102 9.6 m² 1 1
Kjøkken 103 7.7 m² 0 1
Sov 11 104 7.3 m² 1 1
Gang 105 6.8 m² 0 2
Bod 106 3.0 m² 0 1
Vaskerom 107 3.8 m² 0 1
Bod 108 3.8 m² 0 1
Bad 109 3.6 m² 0 1
Vaskerom VASKEROM 0.0 m² 0 1
Bod BOD 0.0 m² 0 1
Bad BAD 0.0 m² 0 1
Gang GANG 0.0 m² 0 2
Sov.1 SOV.1 0.0 m² 0 1
Sov.II SOV.II 0.0 m² 0 1
Kjøkken KJØKKEN 0.0 m² 0 1
Stova STOVA 0.0 m² 0 1
Balkong 110 0.0 m² 0 0
Stue STOYA 18.0 m² 3 1
Sov rom 1 SOV 1 9.6 m² 2 1
Kjøkken KJOKKEN 7.7 m² 1 1
Sov rom 11 SOV 11 7.3 m² 1 1
Sov rom 1 SOV1 7.3 m² 2 1

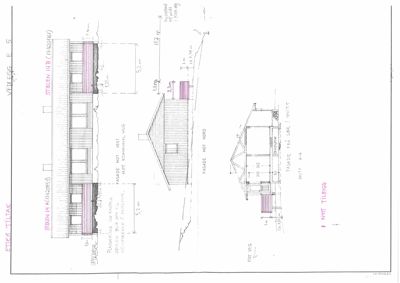
Fasader

Enebolig

Aust
Materiale
Tre
Taktype
Saltak
Høyde
4.7 m
Mønehøyde
5.8 m
Vinduer
6
Dører
1
Synlige etasjer
1
Sør
Materiale
Tre
Taktype
Saltak
Høyde
2.3 m
Mønehøyde
3.4 m
Vinduer
1
Dører
0
Synlige etasjer
1
Nord
Materiale
Tre
Taktype
Saltak
Høyde
2.3 m
Mønehøyde
4.6 m
Vinduer
1
Dører
0
Synlige etasjer
1
Vest
Materiale
Tre
Taktype
Saltak
Høyde
5.2 m
Mønehøyde
7.9 m
Vinduer
6
Dører
0
Synlige etasjer
2

Hendelser

10.04.2026 Stadfesting på motteken søknad - 65/219 Søknad om løyve til tiltak utan ansvarsrett - dispensasjon - oppføring av tilbygg
09.04.2026 65/219 Søknad om løyve til tiltak utan ansvarsrett - dispensasjon - oppføring av tilbygg
08.04.2026 65/219 Stadfesting på mottatt søknad - Dispensasjon frå byggegrense
24.03.2026 65/219 KV 1235 - Søknad om dispensasjon fra byggegrense - tilbygg