Extension Soeknad Enebolig

Tilbygg, påbygg og nybygg på enebolig i Stølsbakken 27

📍 Stølsbakken 27 , 5542 KARMSUND

Nøkkelinfo

Sakstype
Tilbygg
Bygningstype
Enebolig
Bruksareal
105 m²
Boenheter
1
Kommune
Karmøy
Fylke
Rogaland
Gnr / Bnr
149 / 10
Saksnummer
2026/3092
Fase
Søknad

Om byggesaken

Prosjektet omfatter omfattende endringer på eneboligen i Stølsbakken 27, inkludert riving av et eksisterende tilbygg, oppføring av et nytt tilbygg og påbygg over tre plan, samt oppføring av to nye uthus (hagestue og studio/gjestehus). Tilbygget er utformet som en smal, stram trekonstruksjon med glassflater som kontrasterer hovedhuset, og inneholder vaskerom i kjeller, inngangsparti med wc i hovedetasje og bad på loft. Uthusene erstatter to falleferdige bygg og plasseres vinkelrett på boligen med samme takform som hovedhuset, men uten takutstikk. Eiendommen utvides ved sammenslåing med nabotomten for å inkludere adkomstvei. Bygget har saltak og trekledning, og fasadene er tilpasset eksisterende bebyggelse og terreng. Prosjektet inkluderer også fasadeendringer og oppgradering av utearealer.

Produkter og materialer

Tak Saltak

🧱 Takstein eller tilsvarende

Saltak på hovedhus og tilbygg, pulttak på uthus

Taktekking for bolig og uthus

Fasade Trekledning

🧱 Tre

Trekledning som matcher eksisterende bolig, men i strammere form på tilbygget

Fasadebekledning i tre for hovedhus og tilbygg

Terrasse Uteplass

🧱 Tre

Antall: 1

Uteplass mot bolig, vist i 3D illustrasjoner

Terrasse/uteplass i tilknytning til bolig

Vinduer Fasadevindu og glassflater

🧱 Glass med trekarmer

Antall: 12

Glassflater i tilbygget som kontrast til hovedhus, vinduer i fasader sør, nord og øst

Vinduer og glassflater for lys og estetikk

Grunnarbeid Tomtearbeid og drenering

Grunnarbeid for tilbygg og nybygg, inkludert drenering

Grunnarbeid og drenering rundt bygg

VVS Sanitærinstallasjoner

Vaskerom i kjeller, wc i hovedetasje, bad på loft, utført av godkjente fagforetak

VVS-installasjoner for sanitærrom

Betong Grunnmur og fundament

🧱 Betong

Fundament og grunnmur for tilbygg og nybygg

Betongarbeid for fundamentering

Gulv Innvendige gulv

Gulv i bolig og tilbygg, inkludert vaskerom og bad

Innvendige gulvflater

Elektro Elektriske installasjoner

Elektriske installasjoner utført av godkjente fagforetak

Elektroarbeid for bolig og tilbygg

Dører Ytterdører

🧱 Tre og glass

Antall: 5

Ny inngangsdør mot nord, dører til uthus og fasadeendringer

Ytterdører til bolig og uthus

Trapper Innvendig trapp

Antall: 1

Trapp mellom etasjer i bolig

Innvendig trapp i enebolig

Isolasjon Isolasjon i vegger og tak

Isolasjon i nye konstruksjoner for å tilfredsstille dagens krav

Isolasjon for varme og lyd

Maling Utvendig og innvendig maling

Maling av fasader og innvendige flater

Overflatebehandling av treverk og vegger

Tømrer Bygningskonstruksjon

🧱 Tre

Trekonstruksjoner for tilbygg, påbygg og uthus

Tømrerarbeid for bygging av tilbygg og uthus

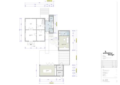
Plantegning

Enebolig 105.0 m²

Etasje 1 105.0 m²

Rom Areal Vinduer Dører
STUE 101 34.3 m² 1 1
SPISESTUE 102 34.2 m² 1 1
KJØKKEN 103 10.5 m² 1 1
HALL 104 10.5 m² 0 2
V.F. 105 8.1 m² 0 1
WC 106 1.8 m² 0 1
GARD 107 3.1 m² 0 1
BAD 108 5.0 m² 0 1
STUDIO/GJEST 109 13.5 m² 1 1

Fasader

Enebolig

Sør
Materiale
Tre
Taktype
Saltak
Høyde
6.4 m
Mønehøyde
7.4 m
Vinduer
4
Dører
1
Synlige etasjer
2
Nord
Materiale
Tre
Taktype
Saltak
Høyde
6.3 m
Mønehøyde
7.4 m
Vinduer
4
Dører
1
Synlige etasjer
2
Øst
Materiale
Tre
Taktype
Saltak
Høyde
6.3 m
Mønehøyde
7.4 m
Vinduer
2
Dører
1
Synlige etasjer
2

Garasje

Sør
Materiale
Tre
Taktype
Pulttak
Høyde
4.9 m
Mønehøyde
4.9 m
Vinduer
0
Dører
0
Synlige etasjer
1
Vest
Materiale
Tre
Taktype
Pulttak
Høyde
4.9 m
Mønehøyde
4.9 m
Vinduer
0
Dører
0
Synlige etasjer
1

Uthus

Vest
Materiale
Tre
Taktype
Pulttak
Høyde
6.9 m
Mønehøyde
7.9 m
Vinduer
0
Dører
0
Synlige etasjer
1

Hendelser

20.04.2026 Gnr. 149, bnr. 10 - Supplering av søknad
17.04.2026 Gnr. 149, bnr. 10 - tilbygg, påbygg, nybygg og rivning - Stølsbakken 27