Extension UnderBehandling Enebolig

Tilbygg, fasadeendring og våtromsoppgradering i enebolig, Stordalsveien 18, Bodø

📍 Stordalsveien 18 , 8011 BODØ

Nøkkelinfo

Sakstype
Tilbygg
Bygningstype
Enebolig
Bruksareal
505 m²
Boenheter
1
Kommune
Bodø
Fylke
Nordland - Nordlánnda
Gnr / Bnr
30 / 172
Saksnummer
2026/367
Fase
Under behandling

Om byggesaken

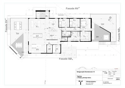
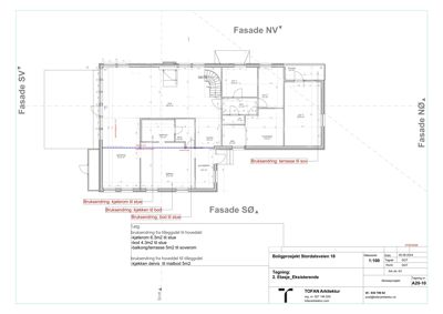
Prosjektet omfatter totalrenovering av en eksisterende enebolig med tilbygg av ny garasje på ca 67,3 m², ny trapp på 25,1 m², terrasse på ca 49,3 m² og to pergolaer med samlet areal på ca 57,9 m². Det utføres påbygg/utvidelse av soverom på altan i 2. etasje over eksisterende garasje. Innvendig skjer bruksendringer hvor garasje omgjøres til soverom og bod, bod omgjøres til vaskerom og kinorom, kjølerom til stue, og deler av kjøkken til bod. Fasaden endres med nye vinduer, dører, pergolaer og rekkverk, og eksisterende pipe fjernes. Byggets gesims- og mønehøyde beholdes uendret. Totalt bebygd areal (BYA) blir 435 m² på en tomt på 2234 m². Det er 1 boenhet i bygget. Prosjektet inkluderer også miljøsanering, avfallshåndtering og uavhengig kontroll av våtrom.

Produkter og materialer

Annet Miljøsanering og avfallshåndtering

Miljøsanering og avfallshåndtering utføres av tiltakshaver som selvbygger, dokumentasjon og sluttrapport kreves

Miljøsanering og avfallshåndtering i henhold til TEK17

Trapper Innvendig trapp og utvendig trapp

🧱 Treløsning

Antall: 2

Ny innvendig trapp til garderobe ca 5,6 m², ny trapp på 25,1 m², eksisterende trapp rives

Trapper for tilbygg og ombygging

Garasjeport Garasjeport til ny garasje

Antall: 1

Ny garasje på 67,3 m² med garasjeport

Garasjeport til ny garasje

Elektro Elektriske installasjoner

Elektroinstallasjoner i tilbygg og ombygde rom, utføres av NBT BYGG AS

Elektriske installasjoner

Tømrer Tømrerarbeid og montering av trekonstruksjoner

🧱 Tre

Tømrerarbeid for tilbygg, montering av trekonstruksjoner, utføres av NBT BYGG AS

Tømrerarbeid for tilbygg og fasadeendringer

Betong Plasstøpte betongkonstruksjoner

🧱 Betong

Plasstøpte betongkonstruksjoner for fundamenter og bærende konstruksjoner, utføres av NBT BYGG AS

Betongkonstruksjoner for tilbygg og garasje

Fasade Vinduer og dører

🧱 Tre/aluminium

Antall: 20

Nye vinduer og skyvedører med lik høyde, bredde og karmstørrelse, inkludert ID-vinduer 1. etasje

Nye fasadevinduer og dører i tre/aluminium for fasadeendring

VVS Våtromsmembraner

Våtromsmembraner i våtrom, utføres av Nilsen Flis og Håndverkservice AS

Membraner for våtrom

Isolasjon Etterisolering

Etterisolering av eksisterende bolig for energieffektivisering

Isolasjon i vegger og tak

Terrasse Terrasse og pergola

🧱 Tre

Antall: 3

Terrasse ca 49,3 m², 2 pergolaer samlet 57,9 m², utekjøkken pergola tett 34,4 m²

Terrasse og pergola med utekjøkken

VVS Sanitærinstallasjoner

Sanitærinstallasjoner i våtrom og bruksendringer, utføres av Rørleggermester Stian Larsen AS

Sanitærinstallasjoner for våtrom og bruksendringer

Grunnarbeid Veg- og grunnarbeider

Grunnarbeider for tilbygg og garasje, utføres av Fjell og Maskin AS

Grunnarbeider og vegarbeider

Brannvern Brannkonsept

Brannkonsept prosjektert av TROMSØ BRANNKONSULT AS

Brannvern og brannsikkerhetsprosjektering

Tak Saltak med taktekking

🧱 Ikke spesifisert, men takmateriale skiftes

Eksisterende tak beholdes i høyde, men takmateriale skiftes

Taktekking for eksisterende og nye takflater

Maling Fasadebehandling

🧱 Trekledning og fasadeplater

Fasadebehandling med trekledning og mindre fasadeplater, materialvalg ikke endelig fastsatt

Maling og overflatebehandling av fasade

Fasader

Enebolig

Sør
Materiale
Tre
Taktype
Saltak
Høyde
6.3 m
Mønehøyde
6.6 m
Vinduer
0
Dører
1
Synlige etasjer
1
Nordvest
Materiale
Tre
Taktype
Saltak
Høyde
6.7 m
Mønehøyde
6.6 m
Vinduer
6
Dører
1
Synlige etasjer
2
Nordøst
Materiale
Tre
Taktype
Saltak
Høyde
6.3 m
Mønehøyde
6.6 m
Vinduer
2
Dører
1
Synlige etasjer
1
Sørvest
Materiale
Tre
Taktype
Saltak
Høyde
6.7 m
Mønehøyde
6.6 m
Vinduer
5
Dører
1
Synlige etasjer
1
Nord
Vinduer
0
Dører
0
Synlige etasjer
1
Materiale
Tre
Taktype
Saltak
Høyde
6.7 m
Mønehøyde
66.0 m
Vinduer
0
Dører
1
Synlige etasjer
1
Materiale
Tre
Taktype
Saltak
Høyde
6.7 m
Mønehøyde
66.0 m
Vinduer
4
Dører
1
Synlige etasjer
1

Hendelser

10.04.2026 Søknad om igangsettingstillatelse - Stordalsveien 18
08.04.2026 Avfallshåndtering ved IG - Stordalsveien 18
06.03.2026 Rammetillatelse - Stordalsveien 18
02.03.2026 Supplering - behov for tilleggsdokumentasjon - Stordalsveien 18
18.02.2026 Foreløpig svar - behov for tilleggsdokumentasjon
09.02.2026 Spørsmål vedrørende søknad og saksbehsndlingstid
05.01.2026 Rammesøknad - Stordalsveien 18
05.01.2026 Bekreftelse på mottatt søknad - Stordalsveien 18