Extension Soeknad Enebolig

Tilbygg på enebolig i Stordalsveien 434, Åfjord

📍 Stordalsveien 434 , 7170 ÅFJORD

Nøkkelinfo

Sakstype
Tilbygg
Bygningstype
Enebolig
Bruksareal
46 m²
Boenheter
1
Kommune
Åfjord
Fylke
Trøndelag - Trööndelage
Gnr / Bnr
36 / 2
Saksnummer
2026/868
Fase
Søknad

Om byggesaken

Ny tilbygg på eksisterende enebolig i Stordalsveien 434, Åfjord, med et bruttoareal på ca. 45,9 m². Tilbygget består av 20,3 m² i grunnflate og 23 m² oppvarmet areal, med saltak tekket med tegl. Bygget har trekledning og inkluderer våtrom og tømrerarbeider. Tilbygget utvider boligens funksjonelle areal og er integrert med eksisterende konstruksjon. Fasadene er i tre med flere vinduer og dører, og det er etablert ny balkong og garasjeport i tilknytning til tilbygget.

Produkter og materialer

Bad Våtromsinnredning

Våtrom i tilbygget med nødvendige installasjoner

Innredning og tekniske installasjoner for våtrom

Fasade Trekledning

🧱 Tre

Trekledning på fasader Øst, Vest, Nord og Sør

Utvendig trekledning for tilbyggets fasader

Dører Ytterdør i tre

🧱 Tre

Antall: 1

Ytterdør i tilbyggets fasade

Ny ytterdør i tre til tilbygget

Tømrer Trekonstruksjoner

🧱 Tre

Trekonstruksjoner for tilbygg og våtrom

Tømrerarbeid for trekonstruksjoner i tilbygg

Gulv Innvendig gulvbelegg

Innvendige gulv i tilbygget, type ikke spesifisert

Elektro Elektrisk installasjon

Elektriske installasjoner i tilbygg

VVS Vann og avløp til våtrom

VVS-installasjoner for våtrom i tilbygget

Vinduer Fasadevindu i tre

🧱 Tre

Antall: 3

Vinduer i tilbyggets fasader, trevinduer

Nye fasadevinduer i tre for tilbygg

Grunnarbeid Fundamentering og grunnmur

Grunnarbeid og fundamentering for tilbygg

Tak Saltak med teglstein

🧱 Tegl

Saltak tekket med teglstein på tilbygget

Taktekking med teglstein på saltak

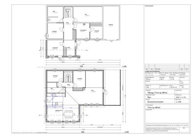
Plantegning

Enebolig 203.6 m²

Etasje 0 109.5 m²

Rom Areal Vinduer Dører
Kjellerstue 001 10.5 m² 0 1
Soverom 002 8.9 m² 2 1
Bod 003 20.8 m² 0 1
Gang 004 13.9 m² 0 3
Bad 005 10.7 m² 0 1
Soverom 006 11.4 m² 0 1
Vaskerom 007 11.7 m² 0 1
Gang 008 8.1 m² 0 2
Garasje 009 24.1 m² 1 1

Etasje 1 94.1 m²

Rom Areal Vinduer Dører
Stue 101 33.9 m² 3 1
Kjøkken/spis 102 37.7 m² 4 1
Bad 103 6.7 m² 0 1
Gang 104 6.5 m² 0 2
Soverom 105 8.2 m² 1 1
Soverom 106 10.6 m² 1 1

Fasader

Enebolig

Øst
Materiale
Tre
Taktype
Saltak
Takmat.
Tegl
Vinduer
3
Dører
0
Balkonger
1
Synlige etasjer
1
Vest
Materiale
Tre
Taktype
Saltak
Takmat.
Tegl
Vinduer
6
Dører
1
Balkonger
1
Synlige etasjer
2
Nord
Materiale
Tre
Taktype
Saltak
Takmat.
Tegl
Vinduer
2
Dører
0
Synlige etasjer
2
Sør
Materiale
Tre
Taktype
Saltak
Takmat.
Tegl
Vinduer
2
Dører
1
Balkonger
1
Synlige etasjer
2

Hendelser

21.04.2026 Gnr 36 bnr 2 - Stordalsveien 434 Søknad om tillatelse i ett trinn