Extension Ferdigattest Enebolig

Etablering av kjellerleilighet og parkeringsplasser i Storgata 74, Svolvær

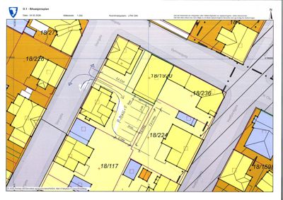
📍 Storgata 74 , 8300 SVOLVÆR

Nøkkelinfo

Sakstype
Tilbygg
Bygningstype
Enebolig
Bruksareal
156 m²
Boenheter
2
Kommune
Vågan
Fylke
Nordland - Nordlánnda
Gnr / Bnr
18 / 252
Saksnummer
19/3254
Fase
Ferdigattest

Om byggesaken

Etablering av en kjellerleilighet i underetasjen av en eksisterende enebolig på eiendommen Storgata 74, Svolvær. I tillegg opparbeides to nye parkeringsplasser på eiendommens uteareal, med et parkeringsareal på 36 m². Totalt bebygd areal etter tiltaket blir 155,5 m², med en utnyttelsesgrad på ca. 39,4 % BYA. Tiltaket inkluderer grunn- og veiarbeider for parkeringsplassene, og oppfyller krav til uteoppholdsareal og parkeringsnorm i henhold til kommunedelplanen. Det foreligger gjennomføringsplan og ansvarsrett for prosjektering og utførelse.

Produkter og materialer

Elektro Elektrisk installasjon kjellerleilighet

Elektriske installasjoner i kjellerleilighet iht. TEK17

Elektrisk anlegg for ny boenhet

Mur Fundament og grunnmur

Fundamentering og grunnmur for parkeringsplass og kjellerleilighet

Bygningsmessige grunnarbeider for tiltaket

Grunnarbeid Opparbeidelse av parkeringsplass

Antall: 2

Opparbeidelse av to parkeringsplasser på 36 m² totalt, inkl. grunn- og veiarbeider iht. tegninger

Grunnarbeid og opparbeidelse av to parkeringsplasser på eiendommen

Maling Innvendig maling kjellerleilighet

Innvendig maling og overflatebehandling i kjellerleilighet

Gulv Innvendige gulv i kjellerleilighet

Gulvbelegg eller parkett i kjellerleilighet

Tømrer Innredning kjellerleilighet

Antall: 1

Etablering av kjellerleilighet i underetasjen av eksisterende enebolig

Innvendige arbeider for å etablere kjellerleilighet, inkludert vegger, gulv og tak

Fasade Ingen endring

Tiltaket berører ikke eksisterende fasader eller snitt

Ingen fasadeendringer i forbindelse med tiltaket

VVS Sanitærinstallasjon kjellerleilighet

VVS-installasjoner for kjellerleilighet iht. gjeldende forskrifter

Vann, avløp og sanitærinstallasjoner for ny boenhet

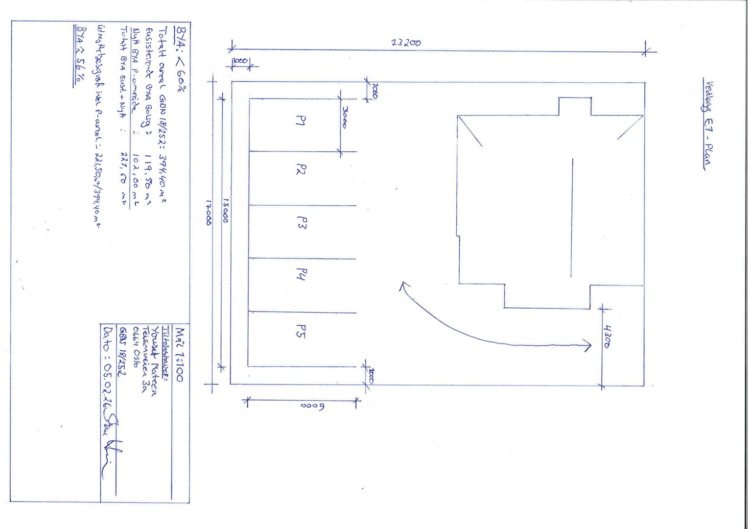
Plantegning

Enebolig 394.4 m²

Etasje 1 394.4 m²

Rom Areal Vinduer Dører
P1 P1 0.0 m² 0 0
P2 P2 0.0 m² 0 0
P3 P3 0.0 m² 0 0
P4 P4 0.0 m² 0 0
P5 P5 0.0 m² 0 0

Hendelser

17.04.2026 Storgata 74 Søknad om ferdigattest 18/252
26.03.2026 Tillatelse til tiltak – etablering av to parkeringsplasser - gbn 18/252 Storgata 74
20.03.2026 Tilleggsopplysninger – søknad om parkeringsplasser gbn 18/252
10.03.2026 Storgata 74 Søknad om tillatelse i ett trinn 18/252
06.01.2026 Situasjonsoppdatering - gbnr. 18/252, Svolvær – Parkeringskrav
13.06.2025 Dialog - Vedrørende: Ulovlighetsoppfølging – etablert kjellerleilighet, gbnr. 18/252, Svolvær – Frikjøp av parkeringskrav