Extension Soeknad Enebolig

Tilbygg til enebolig i Sundbyveien 32, Nærsnes

📍 Sundbyveien 32 , 3478 NÆRSNES

Nøkkelinfo

Sakstype
Tilbygg
Bygningstype
Enebolig
Bruksareal
23 m²
Boenheter
1
Kommune
Asker
Fylke
Akershus
Gnr / Bnr
243 / 94
Saksnummer
26/1120
Fase
Søknad

Om byggesaken

Ny tilbygg på ca. 22,8 m² til eksisterende enebolig i Sundbyveien 32, Nærsnes, med formål å utvide kjøkken og etablere nytt soverom. Tilbygget er plassert på nord-vest siden av huset og innebærer en oppgradering av teknisk standard på yttervegger. Bygget har saltak med teglstein og trekledning som eksisterende bolig. Prosjektet inkluderer endringer i planløsning i 1. og 2. etasje, med nye romfunksjoner og forbedret isolasjon. Arealet for tilbygg er under 50 m², og tiltaket medfører ingen endring i terrengnivå. Det søkes dispensasjon for en mindre del av tilbygget som ligger innenfor 100-metersbeltet mot sjø.

Produkter og materialer

Dører Ytterdør

Antall: 1

Ny ytterdør i tilbygget

Vinduer Fasadevindu

Antall: 2

Nye fasadevindu i tilbygget for kjøkken og soverom

Grunnarbeid Fundamentering og grunnmur

Grunnarbeid for nytt tilbygg, inkludert fundamentering og eventuell grunnmur

VVS Vann og avløp

VVS-installasjoner for kjøkken og eventuelt nytt bad i tilbygget

Gulv Innvendig gulvbelegg

Nytt gulv i tilbygget, tilpasset eksisterende gulvstandard

Elektro Elektrisk installasjon

Elektriske installasjoner i tilbygget, inkludert belysning og stikkontakter

Tømrer Bygging av tilbygg

Tømrerarbeid for oppføring av tilbygget

Tak Saltak med teglstein

🧱 Teglstein

Saltak med teglstein som eksisterende bolig

Nytt saltak med teglstein på tilbygget

Isolasjon Veggisolasjon

Oppgradering av teknisk standard på yttervegger med isolasjon

Isolasjon for yttervegger i tilbygget for bedre energistandard

Fasade Trekledning

🧱 Tre

Trekledning som eksisterende bolig

Fasadebekledning i tre for tilbygget, tilpasset eksisterende fasade

Maling Innvendig og utvendig maling

Maling av innvendige og utvendige flater i tilbygget

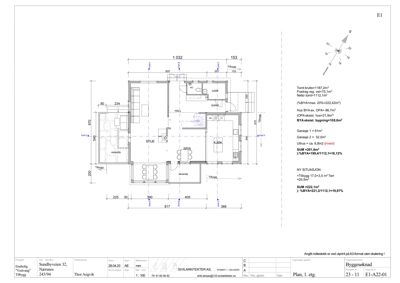
Plantegning

Enebolig 243.6 m²

Etasje 1 201.6 m²

Rom Areal Vinduer Dører
Stue 101 45.0 m² 1 2
Spisestue 102 12.0 m² 1 1
Kjøkken 103 15.0 m² 1 1
Gang 104 8.0 m² 0 3
Vaskerom 105 4.0 m² 0 1
WC 106 3.0 m² 0 1
Veranda 107 18.0 m² 1 1
Veranda 108 10.0 m² 1 1

Etasje 2 42.0 m²

Rom Areal Vinduer Dører
Sov 201 12.0 m² 1 1
Sov 202 10.5 m² 1 1
Sov 203 10.5 m² 1 1
Bad 204 6.0 m² 0 1
Gang 205 3.0 m² 0 2

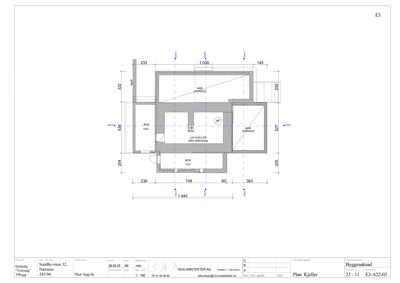
Etasje 0 0.0 m²

Rom Areal Vinduer Dører
Bod 001 10.0 m² 0 1
Bod 002 11.0 m² 0 1
Lav kjeller 003 0.0 m² 0 0

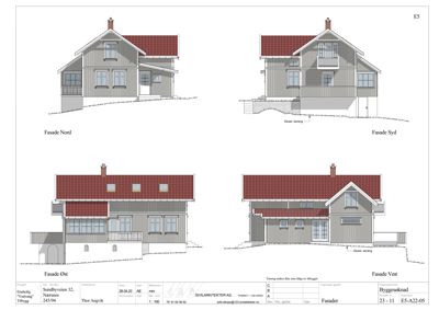
Fasader

Enebolig

Nord
Materiale
Tre
Taktype
Saltak
Takmat.
Tegl
Vinduer
5
Dører
1
Balkonger
1
Synlige etasjer
2
Sør
Materiale
Tre
Taktype
Saltak
Takmat.
Tegl
Vinduer
4
Dører
1
Balkonger
1
Synlige etasjer
2
Øst
Materiale
Tre
Taktype
Saltak
Takmat.
Tegl
Vinduer
6
Dører
1
Balkonger
1
Synlige etasjer
2
Vest
Materiale
Tre
Taktype
Saltak
Takmat.
Tegl
Vinduer
5
Dører
1
Balkonger
1
Synlige etasjer
2
Sørvest
Materiale
Tre
Taktype
Saltak
Takmat.
Tegl
Vinduer
7
Dører
2
Synlige etasjer
2

Hendelser

09.04.2026 243/94 Sundbyveien 32 - Søknad om tillatelse til tiltak uten ansvarsrett - Tilbygg til enebolig