Extension Ferdigattest Enebolig

Tilbygg til våningshus i Svidalsvegen 363

📍 Svidalsvegen 358 , 6847 VASSENDEN

Nøkkelinfo

Sakstype
Tilbygg
Bygningstype
Enebolig
Bruksareal
128 m²
Boenheter
1
Kommune
Sunnfjord
Fylke
Vestland
Gnr / Bnr
363 / 9
Saksnummer
2021/3915
Fase
Ferdigattest

Om byggesaken

Ny tilbygg på våningshus i Svidalsvegen 363 med totalt bruksareal på ca. 128 m² fordelt på to etasjer. Tilbygget har saltak og trekledning, og inneholder rom som stue/kjøkken, soverom, bad, bod, arbeidsrom og gang. Fasaden mot vest har 4 vinduer og 1 dør, og det er etablert pipe. Bygget er plassert øst for eksisterende våningshus og tilknyttet eksisterende vann- og avløpsanlegg. Bygget er to etasjer høyt med godkjent byggehøyde på 6,7 meter.

Produkter og materialer

Bad Bad og våtrom

Antall: 1

Bad i tilbygg med krav til uavhengig kontroll

Bad med sanitærutstyr og membran i tilbygg

Fasade Trekledning

🧱 Tre

Fasade vest og øvrige fasader med trekledning

Trekledning til yttervegger på tilbygg

Dører Ytterdør

Antall: 1

1 dør på fasade vest til tilbygg

Ytterdør til tilbygg

Tak Saltak

Saltak på tilbygg og eksisterende bygg

Saltak som takkonstruksjon på tilbygg

Vinduer Fasadevindu

Antall: 4

4 vinduer på fasade vest til tilbygg

Vinduer til fasade på tilbygg

VVS Innvendig sanitæranlegg

Ansvarsrett for innvendig sanitæranlegg av Dale Rør AS

VVS-installasjoner for bad og kjøkken i tilbygg

Gulv Innvendige gulv

Gulv i tilbygg, antatt parkett eller annet vanlig materiale

Elektro Elektrisk anlegg

Elektrisk installasjon i tilbygg

Tømrer Bærekonstruksjon og innvendige vegger

🧱 Tre

Tømrerarbeid for bærekonstruksjon og innvendige vegger i tilbygg

Pipe Pipe

Antall: 1

Pipe tilknyttet tilbygg og eksisterende bygg

Pipe for ildsted i tilbygg

Maling Innvendig og utvendig maling

Maling av innvendige og utvendige flater i tilbygg

Grunnarbeid Fundamentering og grunnmur

Grunnarbeid for tilbyggets fundament og grunnmur

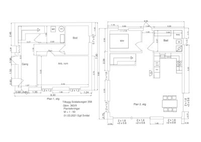
Plantegning

Enebolig 125.8 m²

Etasje 1 83.0 m²

Rom Areal Vinduer Dører
Stove 101 35.0 m² 1 1
Kammers 102 15.0 m² 1 1
Kjøken 103 15.0 m² 1 1
Gang 104 5.0 m² 0 3
Bad 105 4.0 m² 0 1
Bod 106 3.0 m² 0 1
Bod 107 3.0 m² 0 1
Arb. rom 108 26.0 m² 1 1
Bod 109 3.0 m² 0 1
WC 110 1.5 m² 0 1
VV 111 1.5 m² 0 0
Gang 112 5.0 m² 0 1
Gang Gang 10.5 m² 0 2
Arb. rom Arb. rom 18.7 m² 0 1
Bod Bod 10.3 m² 0 1
WC WC 2.0 m² 0 1
VV VV 1.0 m² 0 0

Etasje 2 42.8 m²

Rom Areal Vinduer Dører
SOV SOV 10.5 m² 0 1
Bad Bad 10.5 m² 0 1
Kjøkken Kjøkken 18.0 m² 0 0
Vaskerom Vaskerom 3.8 m² 0 0

Fasader

Tilbygg

Vest
Materiale
Tre
Taktype
Saltak
Vinduer
4
Dører
1
Synlige etasjer
2

Enebolig

Øst
Materiale
Tre
Taktype
Saltak
Vinduer
5
Dører
0
Synlige etasjer
2
Sør
Materiale
Tre
Taktype
Saltak
Vinduer
8
Dører
1
Balkonger
1
Synlige etasjer
2

Hendelser

22.04.2026 Søknad om ferdigattest gbnr. 363/9 - Svidalsvegen 363
04.05.2021 Vedtak om løyve til tilbygg våningshus på gbnr. 363/9
30.04.2021 Bruksareal, erklæring om ansvarsrett og gjennomføringsplan